Trouver...

Language: FR

Devise: EUR

Vente Appartement 2 pièces

Publié le 18 March 2026
Type
Bien immobilier
Tarif
280 000 €
Chambres
0
Salles de bain
0

Vente Appartement 2 pièces

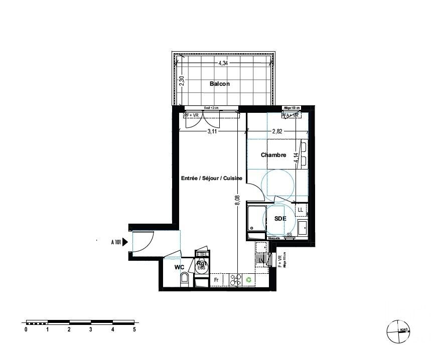
Iad France - Judicaelle Louis (07 43 56 89 76) vous propose : Appartement T2 à vendre à Cogolin – Résidence de standing avec piscine Découvrez une résidence d’exception à Cogolin, au cOEur du Golfe de Saint-Tropez, offrant des appartements haut de gamme avec grande terrasse, garage sécurisé et prestations modernes. Située dans un quartier résidentiel calme, à proximité du centre-ville, cette résidence RE 2020 conjugue confort, sécurité et performance énergétique. Appartements à vendre avec terrasse et garage Inspirée de l’architecture provençale, la résidence propose des logements lumineux, équipés de grandes baies vitrées et de terrasses exposées sud-ouest. Parfait pour une résidence principale, une résidence secondaire ou un investissement locatif dans le Var. Prestations haut de gamme et confort moderne •Chauffage et climatisation avec pompe à chaleur collective et thermostat individuel. •Grand carrelage 60 x 60 cm dans toutes les pièces. •Volets roulants électriques avec commande centralisée. •Placards aménagés selon les plans. •Salle de bain équipée avec faïence 60 x 20 cm autour de la douche ou baignoire. •Toilettes suspendues avec lave-mains selon plan. •Résidence sécurisée avec vidéophone et garages fermés en sous-sol. Un cadre de vie privilégié dans le Golfe de Saint-Tropez Idéalement située entre terre et mer, cette résidence offre un accès rapide aux plages de Saint-Tropez, Port Grimaud et Cavalaire-sur-Mer. Cogolin est un secteur recherché pour son cadre de vie agréable, son climat méditerranéen et son essor économique. Un investissement immobilier rentable et sécurisé •Résidence respectant la réglementation environnementale RE 2020. •Eligible au dispositif Pinel pour une réduction d’impôts. •Forte demande locative dans le secteur. •Construction conforme au Pacte 3B (Bas carbone, Biodiversité, Bien-vivre). Appartements disponibles avec grande terrasse T2 de 46.40 m² environ avec balcon de 10.01 m² environ et garage. Profitez d’une piscine privée La résidence dispose d’une piscine privée, accessible six mois par an, pour savourer pleinement le climat ensoleillé du Var. Honoraires d’agence à la charge du vendeur. Bien non soumis au DPE. Les informations sur les risques auxquels ce bien est exposé sont disponibles sur le site Géorisques : www.georisques.gouv.fr. La présente annonce immobilière a été rédigée sous la responsabilité éditoriale de Mlle Judicaelle Louis EI (ID 92421), mandataire indépendant en immobilier (sans détention de fonds), agent commercial de la SAS I@D France immatriculé au RSAC de DRAGUIGNAN sous le numéro 811245687, titulaire de la carte de démarchage immobilier pour le compte de la société I@D France SAS. Retrouvez tous nos biens sur notre site internet. www.iadfrance.fr.
Cette semaine Cette annonce est récente

À proximité

Recherche des commodités à proximité...

Détails de l'annonce

Localisation

Ville
Cogolin
Pays
FR

Surfaces / Pièces / Composition

Nombre d’étages

Chauffage et diagnostics

Diagnostic de performance énergétique (DPE)
a
b
c
d
e
f
g
Indice d'émission de gaz à effet de serre (GES)
a
b
c
d
e
f
g
Rappelez-moi