Type
Bien immobilierTarif
198 500 €Chambres
0Salles de bain
0Vente Maison/villa 5 pièces
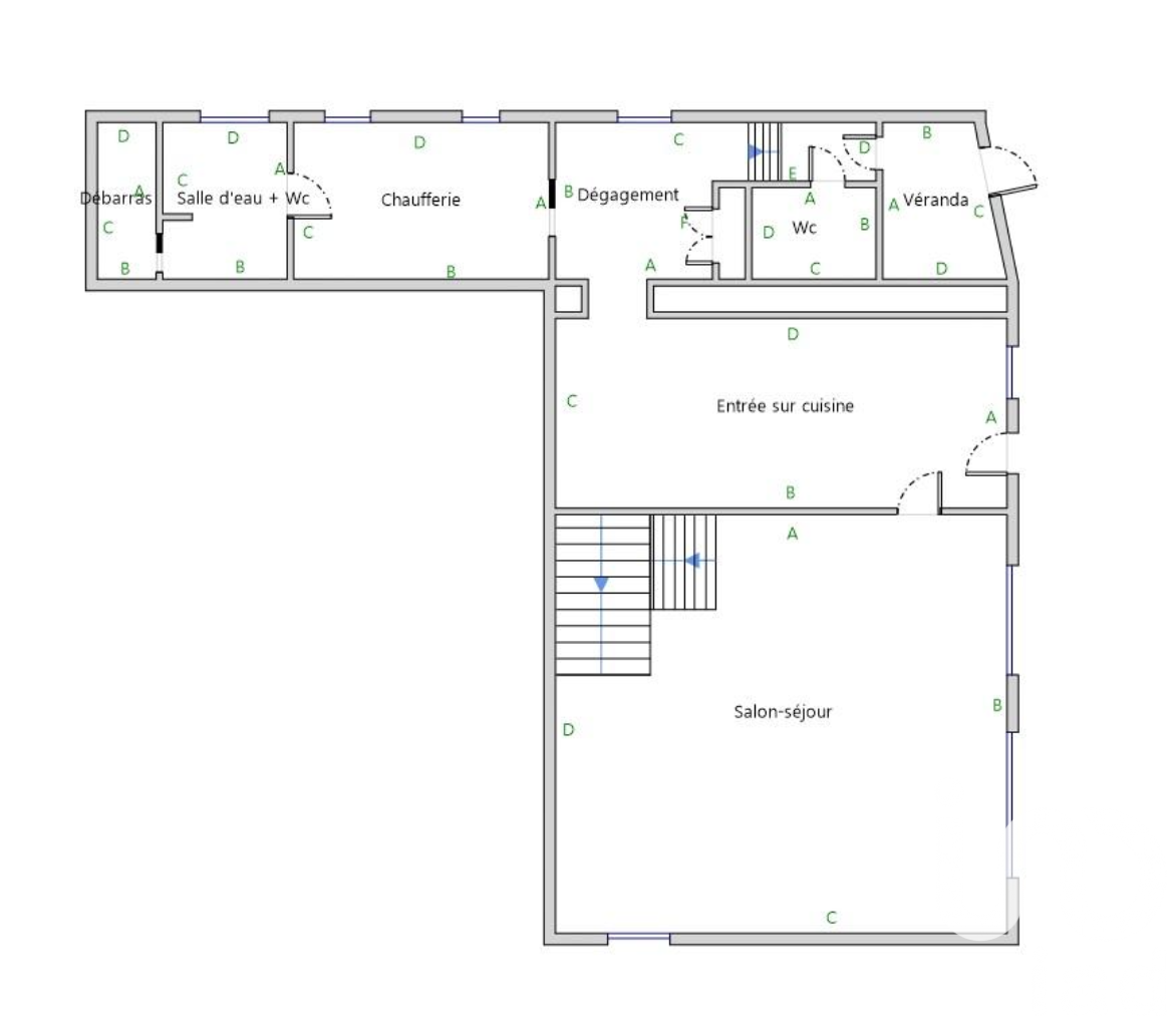
Iad France - Ingrid Pimont vous propose : Découvrez cette belle maison de 106 m², offrant une véritable vie de plain-pied. Au rez-de-chaussée : une entrée accueillante, un séjour lumineux, une cuisine fonctionnelle, une salle de bain, un WC et une première chambre, parfait pour vivre sur un seul niveau. À l’étage, deux chambres supplémentaires et un bureau offrent des espaces confortables pour les enfants ou le télétravail. Le sous-sol complet ajoute un vrai plus : garage, quatrième chambre et cave, idéal pour une chambre d’amis, un espace ado ou une zone de stockage. Le tout sur un terrain clos et entretenu de 541 m², offrant un bel espace extérieur pour profiter des beaux jours. Un bien prêt à accueillir votre famille. Confort, espace et vie de plain-pied : tout y est. À visiter sans tarder. Honoraires d'agence à la charge du vendeur. Information d'affichage énergétique sur ce bien : classe ENERGIE E indice 290 et classe CLIMAT B indice 9. Les informations sur les risques auxquels ce bien est exposé, y compris l'obligation légale de débroussaillement, sont disponibles sur le site Géorisques : http://www.georisques.gouv.fr. La présente annonce immobilière a été rédigée sous la responsabilité éditoriale de Mme Ingrid Pimont mandataire indépendant en immobilier (sans détention de fonds), agent commercial de la SAS I@D France immatriculé au RSAC de DIEPPE sous le numéro 530174473, titulaire de la carte de démarchage immobilier pour le compte de la société I@D France SAS.
À proximité
Recherche des commodités à proximité...
Détails de l'annonce
Localisation
Ville
Arrest
Pays
FR
Diagnostics / Énergie
Diagnostic DPE
290
Diagnostic GES
9
Surfaces / Pièces / Composition
Nombre d’étages
3
Chauffage et diagnostics
Diagnostic de performance énergétique (DPE)
a
b
c
d
e
f
g
Indice d'émission de gaz à effet de serre (GES)
a
b
c
d
e
f
g
