Trouver...

Language: FR

Devise: EUR

Vente Surface diverse 3 pièces

Publié le 23 December 2025
Type
Bien immobilier
Tarif
90 000 €
Chambres
0
Salles de bain
0

Vente Surface diverse 3 pièces

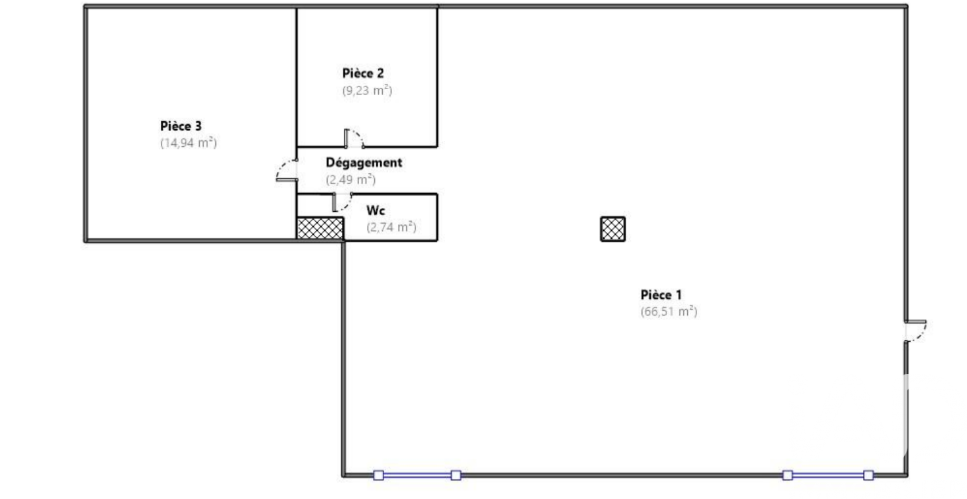
Iad France - Karin Gabry vous propose : Sous sol d'un immeuble de 95 m². Idéal espace de stockage. Accès par escalier. Places de parking visiteurs. Pas de transformation en habitation possible. La presente annonce immobiliere vise 2 lots situés dans une copropriété de 73 lots au total et ne faisant l'objet d'aucune procédure en cours citée à l'article L. 721-1 du code de la construction et de l'habitation. Montant moyen mensuel de charges déclaré par le vendeur : 96.67€ par mois (soit 1160 € annuel). Honoraires d'agence à la charge du vendeur. Bien non soumis au DPE. Les informations sur les risques auxquels ce bien est exposé, y compris l'obligation légale de débroussaillement, sont disponibles sur le site Géorisques : http://www.georisques.gouv.fr. La présente annonce immobilière a été rédigée sous la responsabilité éditoriale de Mme Karin Gabry mandataire indépendant en immobilier (sans détention de fonds), agent commercial de la SAS I@D France immatriculé au RSAC de GRASSE sous le numéro 911357515, titulaire de la carte de démarchage immobilier pour le compte de la société I@D France SAS.

À proximité

Recherche des commodités à proximité...

Détails de l'annonce

Localisation

Ville
Antibes
Pays
FR

Surfaces / Pièces / Composition

Nombre d’étages

Chauffage et diagnostics

Diagnostic de performance énergétique (DPE)
a
b
c
d
e
f
g
Indice d'émission de gaz à effet de serre (GES)
a
b
c
d
e
f
g
Rappelez-moi