Type
Bien immobilierTarif
550 000 €Chambres
4Salles de bain
0Vente maison/villa 7 pièces
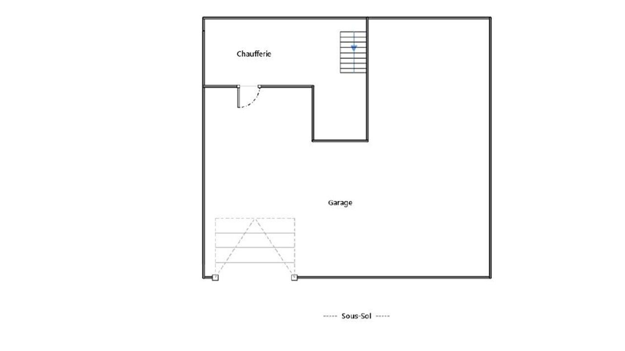
Iad France - Cecile Puech vous propose : Nanterre, maison à proximité immédiate de la Place de la Boule Opportunité : travaux et emplacement Maison 7 pièces à entièrement rénover avec jardin, places de stationnement, sous sol total et grand hangar Maison vendue partiellement louée (jusqu'à présent la maison était louée avec un bail par niveau, les locataires du niveau 1 sont partis, les locataires du niveau 2 ont un bail jusqu'à février 2027). Dans une rue pavillonnaire très prisée au calme, à deux pas de la place de la Boule, cette maison individuelle non mitoyenne de 138 m² Carrez et 198 m² au sol offre un potentiel incroyable. Avec 4 chambres, 1 salle de bain, 1 salle d'eau et 2 WC, cette maison est parfaite pour une famille qui aime les travaux et qui lui redonnera une seconde jeunesse, le tout à une adresse de prédilection. Passé le portail, vous pénétrez dans une cour où l'on peut facilement garer 2 à 3 véhicules. La niveau 0 est un grand garage total, où l'on peut également garer une voiture si l'on souhaite l'abriter. Un escalier extérieur mène au niveau 1. La porte d'entrée de la maison ouvre sur un dégagement, avec une nouvelle porte qui dessert ce niveau, de plain pied sur le jardin à l'arrière, et une porte ouvre à droite sur un escalier qui mène au niveau 2 (la maison qui a été fictivement découpée en deux habitations pour de la location est historiquement une seule maison). Le jardin sans vis à vis à l'arrière de la maison, de plain pied sur le séjour, est d'une taille parfaite pour profiter d'un extérieur sans avoir à accorder trop de temps à son entretien. Le quartier résidentiel est calme et familial, les commerces sont à proximité. Un pré devis a été réalisé pour vous aider à estimer les coûts et le projet de rénovation dans son ensemble. Ne manquez pas cette opportunité unique de transformer cette maison à rénover en un véritable cocon familial. Contactez-moi pour organiser une visite à votre convenance. Honoraires d'agence à la charge du vendeur. Information d'affichage énergétique sur ce bien : classe ENERGIE G indice 508 et classe CLIMAT F indice 78. Les informations sur les risques auxquels ce bien est exposé, y compris l'obligation légale de débroussaillement, sont disponibles sur le site Géorisques : http://www.georisques.gouv.fr. La présente annonce immobilière a été rédigée sous la responsabilité éditoriale de Mme Cecile Puech mandataire indépendant en immobilier (sans détention de fonds), agent commercial de la SAS I@D France immatriculé au RSAC de NANTERRE sous le numéro 891264699, titulaire de la carte de démarchage immobilier pour le compte de la société I@D France SAS.
Nouveau
Cette annonce est récente
À proximité
Recherche des commodités à proximité...
Détails de l'annonce
Localisation
Ville
Nanterre
Pays
FR
Diagnostics / Énergie
Diagnostic DPE
508
Diagnostic GES
78
Surfaces / Pièces / Composition
Nombre d’étages
3
Chauffage et diagnostics
Diagnostic de performance énergétique (DPE)
a
b
c
d
e
f
g
Indice d'émission de gaz à effet de serre (GES)
a
b
c
d
e
f
g
