Type
Bien immobilierTarif
125 000 €Chambres
2Salles de bain
0Vente Appartement 3 pièces
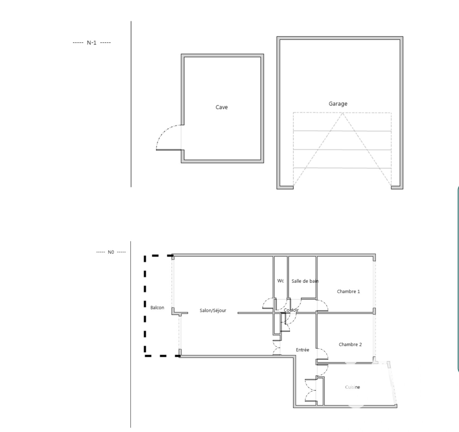
Iad France - Benjamin Dos Santos vous propose : En plein centre de Saint-Étienne, découvrez ce bel appartement bourgeois de 85 m², situé au 2ᵉ étage avec ascenseur d’une petite copropriété bien entretenue de 4 étages. Idéalement placé, il se trouve à deux pas des Halles Mazerat, du musée d’Art et d’Industrie et à seulement 4 minutes à pied du tramway. Cet appartement au charme authentique se compose d’un grand hall d’entrée de 17 m², d’un salon lumineux de 13 m², et de deux spacieuses chambres de 17 m² chacune. Vous profiterez également d’une grande salle d’eau de 10 m². Sa hauteur sous plafond de 3 mètres et ses détails architecturaux typiquement bourgeois offrent un cadre de vie chaleureux et élégant. Chauffage électrique individuel – Charges de copropriété : 120 € / mois Nombreuses places de stationnement disponibles à proximité. À proximité immédiate : Tramway à 100 m Hôpital de la Charité et Université Jean Monnet à 600 m Accès N88 en 10 min et A72 en 15 min Gare Châteaucreux à 15 min en tram Prix : 125 000 € (honoraires inclus) Cet appartement séduira un jeune couple, un cadre recherchant le confort du centre-ville, ou un investisseur souhaitant sécuriser un bien de qualité à forte demande locative. Les + : Secteur central et recherché Très belle hauteur sous plafond Copropriété calme et soignée Proche transports, université et commerces Contactez-moi dès aujourd’hui pour programmer une visite ! La presente annonce immobiliere vise 1 lot situé dans une copropriété de 11 lots au total et ne faisant l'objet d'aucune procédure en cours citée à l'article L. 721-1 du code de la construction et de l'habitation. Montant moyen mensuel de charges déclaré par le vendeur : 120€ par mois (soit 1440 € annuel). Honoraires d'agence à la charge du vendeur. Information d'affichage énergétique sur ce bien : classe ENERGIE E indice 304 et classe CLIMAT C indice 12. Les informations sur les risques auxquels ce bien est exposé, y compris l'obligation légale de débroussaillement, sont disponibles sur le site Géorisques : http://www.georisques.gouv.fr. La présente annonce immobilière a été rédigée sous la responsabilité éditoriale de M Benjamin Dos Santos mandataire indépendant en immobilier (sans détention de fonds), agent commercial de la SAS I@D France immatriculé au RSAC de SAINT ETIENNE sous le numéro 945209393, titulaire de la carte de démarchage immobilier pour le compte de la société I@D France SAS.
À proximité
Recherche des commodités à proximité...
Détails de l'annonce
Localisation
Ville
Saint-Étienne
Pays
FR
Diagnostics / Énergie
Diagnostic DPE
304
Diagnostic GES
12
Surfaces / Pièces / Composition
Nombre d’étages
4
Étage
2
Chauffage et diagnostics
Diagnostic de performance énergétique (DPE)
a
b
c
d
e
f
g
Indice d'émission de gaz à effet de serre (GES)
a
b
c
d
e
f
g
