Trouver...

Language: FR

Devise: EUR

Vente Appartement 5 pièces

Publié le 9 September 2025
Type
Bien immobilier
Tarif
1 399 000 €
Chambres
4
Salles de bain
0

Vente Appartement 5 pièces

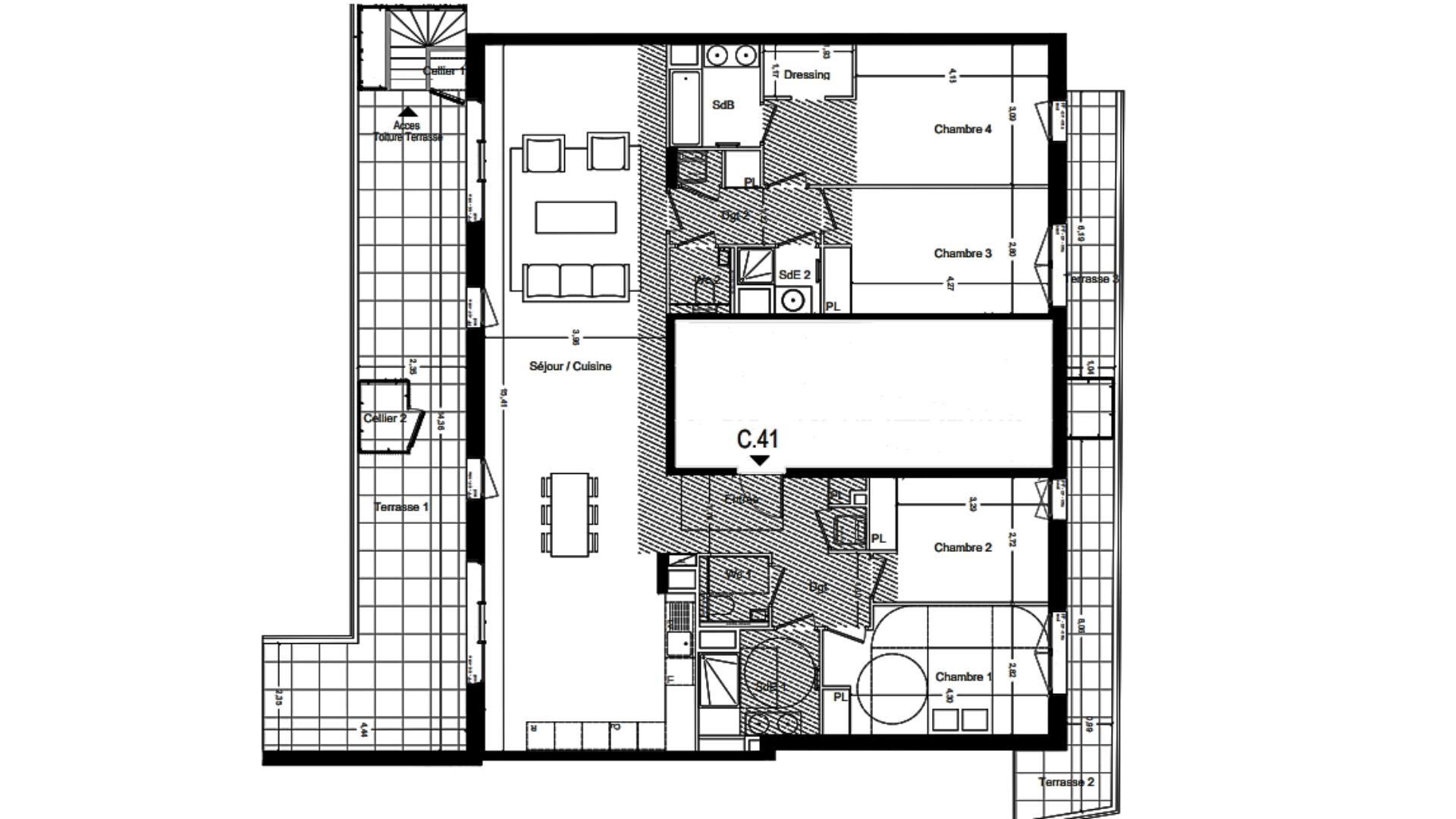
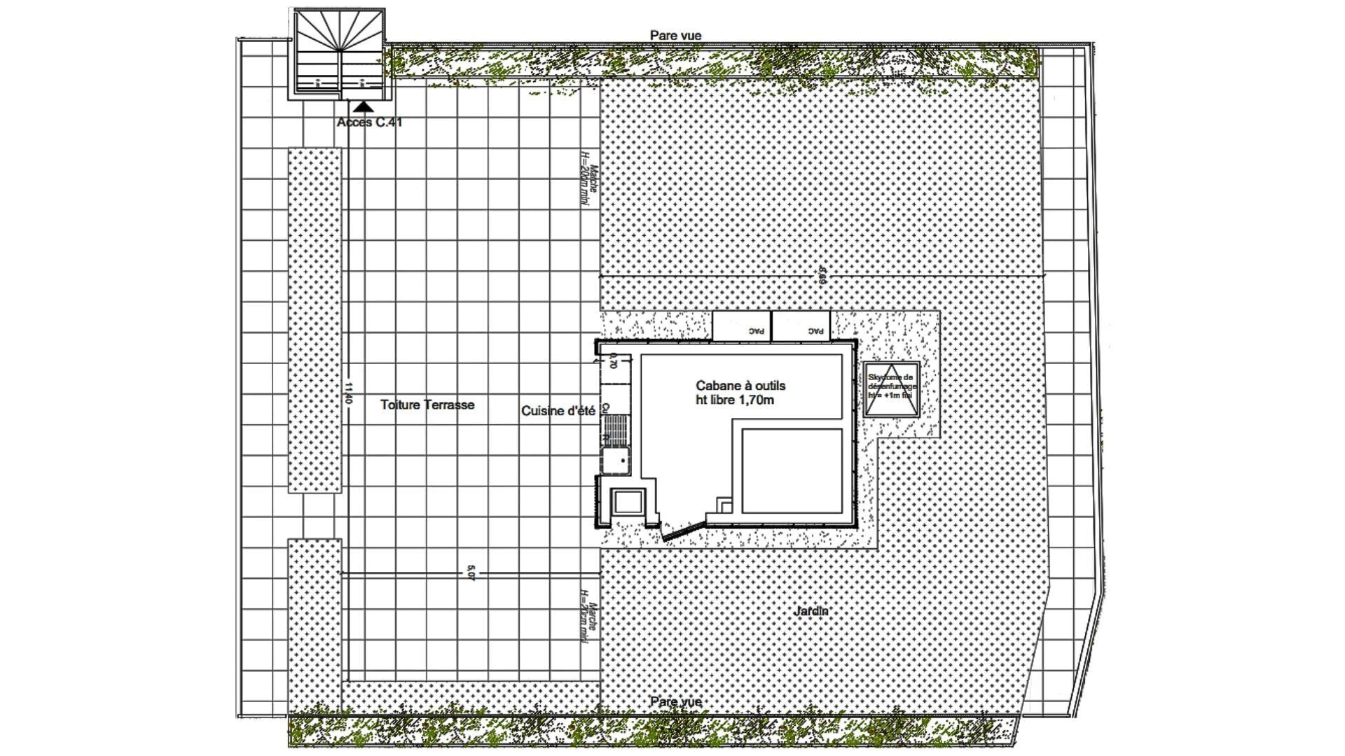
Iad France - Sarah Rozière (06 99 86 19 42) vous propose : La Marsa – Penthouse d’exception sur l’avenue du Prado. Sur la mythique avenue du Prado, la résidence La Marsa, signée PietriArchitectes, s’inspire des demeures prestigieuses de la fin du XIXe siècle et des villages balnéaires méditerranéens. Une architecture blanche, lumineuse, bordée de terrasses filantes : un projet pensé comme une OEuvre d’art habitée. Disponible 2026. Au dernier étage, ce penthouse de 150 m² environ s’ouvre sur des volumes spectaculaires et bénéficie d’une triple orientation. L’ensemble offre plus de 220 m² environ de terrasses et jardins suspendus, dont un roof-top privatif. Un appartement raffiné : - Vaste séjour / cuisine de 62 m² environ. - Quatre chambres confortables, dont une suite avec dressing. - Salle de bain et deux salles d’eau, WC séparés. - Annexes incluses : deux garages De belles prestations : - Résidence sécurisée et intimiste. - Prestations et finitions haut de gamme. - Chauffage et rafraîchissement par équipements performants. - Menuiseries de grande qualité avec volets roulants motorisés. - Garages fermés en sous-sol. L’art de vivre sur l’avenue du Prado : - À deux pas du Parc Borély et des plages du Prado. - Quartier résidentiel prisé, élégant et arboré. - Proximité immédiate de restaurants renommés, commerces raffinés et galeries d’art. - Accès rapide aux établissements scolaires d’excellence et aux grands axes. - Un équilibre parfait entre sérénité méditerranéenne et dynamisme urbain. Un bien exclusif, pensé pour une clientèle en quête d’un art de vivre intemporel. N’hésitez pas à me contacter pour plus d’informations ou pour un accompagnement sur mesure. Honoraires d’agence à la charge du vendeur. Bien non soumis au DPE. Les informations sur les risques auxquels ce bien est exposé sont disponibles sur le site Géorisques : www.georisques.gouv.fr. La présente annonce immobilière a été rédigée sous la responsabilité éditoriale de Mlle Sarah Rozière EI (ID 83696), mandataire indépendant en immobilier (sans détention de fonds), agent commercial de la SAS I@D France immatriculé au RSAC de Clermont-Ferrand sous le numéro 978616993, titulaire de la carte de démarchage immobilier pour le compte de la société I@D France SAS. Retrouvez tous nos biens sur notre site internet. www.iadfrance.fr.

À proximité

Recherche des commodités à proximité...

Détails de l'annonce

Localisation

Ville
Marseille
Pays
FR

Surfaces / Pièces / Composition

Nombre d’étages
3
Étage
3

Chauffage et diagnostics

Diagnostic de performance énergétique (DPE)
a
b
c
d
e
f
g
Indice d'émission de gaz à effet de serre (GES)
a
b
c
d
e
f
g
Rappelez-moi