Type
Bien immobilierTarif
322 000 €Chambres
3Salles de bain
0Vente Maison/villa 4 pièces
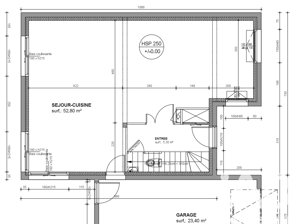
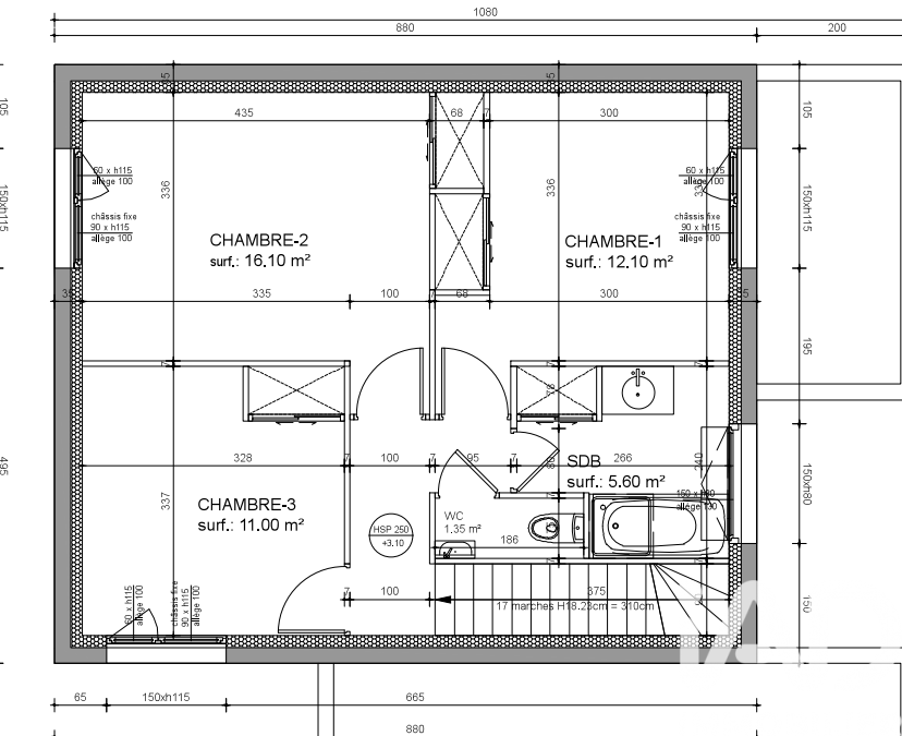
Iad France - Angélique Hallot vous propose : MAISON NORME RT2012 MITOYENNE PAR LE GARAGE AVEC JARDIN À CHONAS-L'AMBALLAN Laissez-vous séduire par cette magnifique maison récente de 108 m² située dans la charmante commune de Chonas-l'Amballan. Construite en 2019, cette propriété bénéficie d'un design moderne et de prestations de haute qualité, offrant un cadre de vie exceptionnel pour votre famille. Dès l'entrée, vous serez impressionné par l'espace et la luminosité qui caractérisent cette maison. L'espace de vie principal se compose d'un vaste séjour de 52.8 m² offrant de multiples possibilités d'aménagement, ainsi que d'une cuisine équipée ouverte pour des moments de convivialité inoubliables. À l'étage vous découvrirez 3 belles chambres équipées de rangements individuels, idéales pour accueillir votre famille et vos invités. Vous trouverez également une salle de bain moderne, un WC séparé. Complète ce bien, un garage de 23 m² + un stationnement. Profitez des journées ensoleillées dans le jardin parfaitement entretenu, idéal pour les repas en extérieur ou les moments de détente en famille. Cette maison est équipée de tout le confort moderne, avec la fibre optique, le chauffage au sol sur les 2 étages, faible consommation énergétique. Idéalement située à Chonas-l'Amballan, à proximité des commerces, des écoles et des transports en commun, cette maison offre un cadre de vie paisible et pratique. Ne manquez pas cette opportunité de devenir propriétaire d'un bien encore sous décennale ! Attention : Certaines photos ne sont pas contractuelles. Honoraires d'agence à la charge du vendeur. Information d'affichage énergétique sur ce bien : classe ENERGIE B indice 72 et classe CLIMAT A indice 2. Les informations sur les risques auxquels ce bien est exposé, y compris l'obligation légale de débroussaillement, sont disponibles sur le site Géorisques : http://www.georisques.gouv.fr. La présente annonce immobilière a été rédigée sous la responsabilité éditoriale de Mme Angélique Hallot mandataire indépendant en immobilier (sans détention de fonds), agent commercial de la SAS I@D France immatriculé au RSAC de VIENNE sous le numéro 883253106, titulaire de la carte de démarchage immobilier pour le compte de la société I@D France SAS.
Cette semaine
Cette annonce est récente
À proximité
Recherche des commodités à proximité...
Détails de l'annonce
Localisation
Ville
Chonas-l'Amballan
Pays
FR
Diagnostics / Énergie
Diagnostic DPE
72
Diagnostic GES
2
Surfaces / Pièces / Composition
Nombre d’étages
2
Chauffage et diagnostics
Diagnostic de performance énergétique (DPE)
a
b
c
d
e
f
g
Indice d'émission de gaz à effet de serre (GES)
a
b
c
d
e
f
g
