Type
Bien immobilierTarif
146 000 €Chambres
4Salles de bain
0Vente Maison de ville 7 pièces
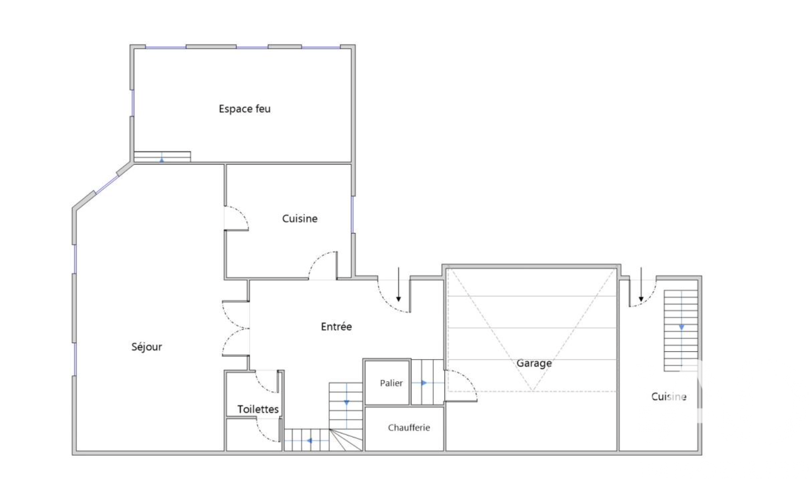
Iad France - Nathalie Renard vous propose : Maison de ville idéalement située, à proximité immédiate des commerces, au cOEur d’un village attractif disposant d’écoles, collèges, associations sportives et commodités. Cette maison offre de beaux volumes et se compose de quatre chambres, trois salles d’eau, d’une cuisine aménagée, d’un séjour, ainsi que d’un salon lumineux équipé d’un poêle à bois et d’une mezzanine, apportant charme et fonctionnalité. Le bien comprend également deux garages situés à proximité, un jardin, ainsi qu’une dépendance offrant un fort potentiel d’aménagement, avec la possibilité de créer un espace d’habitation supplémentaire. Ce bien conviendra aussi bien à une famille qu’à un investisseur, avec la possibilité de division en deux logements. Chauffage au gaz de ville complété par un poêle à bois. Honoraires d'agence à la charge du vendeur. Information d'affichage énergétique sur ce bien : classe ENERGIE C indice 158 et classe CLIMAT C indice 25. Les informations sur les risques auxquels ce bien est exposé, y compris l'obligation légale de débroussaillement, sont disponibles sur le site Géorisques : http://www.georisques.gouv.fr. La présente annonce immobilière a été rédigée sous la responsabilité éditoriale de Mme Nathalie Renard mandataire indépendant en immobilier (sans détention de fonds), agent commercial de la SAS I@D France immatriculé au RSAC de LAVAL CEDEX sous le numéro 925355935, titulaire de la carte de démarchage immobilier pour le compte de la société I@D France SAS.
Cette semaine
Cette annonce est récente
À proximité
Recherche des commodités à proximité...
Détails de l'annonce
Localisation
Ville
Villaines-la-Juhel
Pays
FR
Diagnostics / Énergie
Diagnostic DPE
158
Diagnostic GES
25
Surfaces / Pièces / Composition
Nombre d’étages
3
Chauffage et diagnostics
Diagnostic de performance énergétique (DPE)
a
b
c
d
e
f
g
Indice d'émission de gaz à effet de serre (GES)
a
b
c
d
e
f
g
