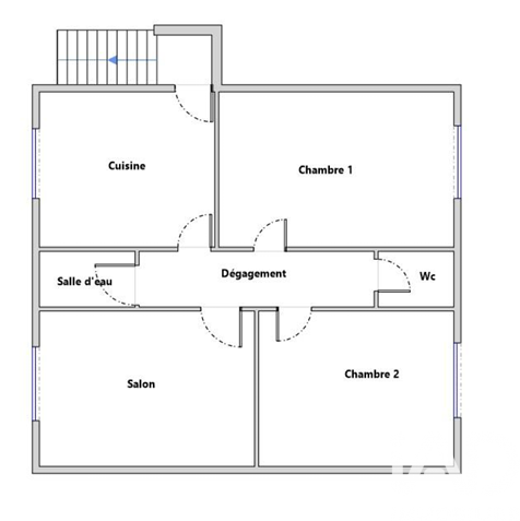
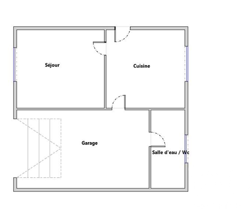
Terrain-Constructible-à-Saubole
37 000 €
À seulement 15 minutes des commodités et de l'autoroute A64, découvrez ce terrain constructible situ...
- 1305 m²
