Type
Bien immobilierTarif
195 000 €Chambres
1Salles de bain
0Vente Appartement 2 pièces
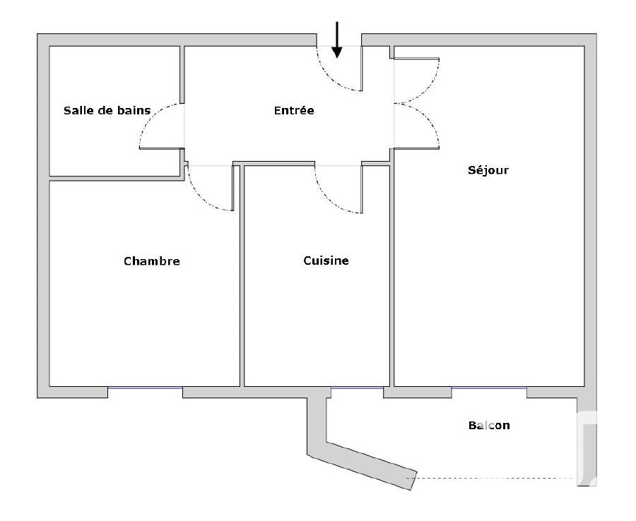
Iad France - Céline Poméon vous propose : À deux pas du centre commercial de Saint-Luc (supermarché, pharmacie, boulangerie, maison de la presse…) et de la Clinique Charcot, ce T2 à rénover se situe dans une charmante résidence fermée et sécurisée, calme, arborée et idéalement située. L’appartement offre une entrée avec rangements, un séjour lumineux ouvrant sur un balcon, ainsi qu’une cuisine indépendante, également attenante au balcon et pouvant être ouverte sur le séjour. La partie nuit comprend une chambre et une salle de bain avec WC, à rénover selon vos envies. Le chauffage est individuel électrique et l’eau froide est incluse dans les charges. Un arrêt de bus (ligne C20) se trouve au pied de la copropriété, offrant une liaison directe entre la place Bellecour et Francheville, et assurant une connexion rapide avec le centre de Lyon. Vous profiterez également d’une cave, d’une place de parking privative en sous-sol, des places visiteurs, ainsi que d’un parc arboré au sein de la résidence. Un bien avec fort potentiel après rénovation, idéal pour un premier achat ou un investissement locatif. La presente annonce immobiliere vise 3 lots situés dans une copropriété de 198 lots au total et ne faisant l'objet d'aucune procédure en cours citée à l'article L. 721-1 du code de la construction et de l'habitation. Montant moyen mensuel de charges déclaré par le vendeur : 112.67€ par mois (soit 1352 € annuel). Honoraires d'agence à la charge du vendeur. Information d'affichage énergétique sur ce bien : classe ENERGIE C indice 154 et classe CLIMAT A indice 5. Les informations sur les risques auxquels ce bien est exposé, y compris l'obligation légale de débroussaillement, sont disponibles sur le site Géorisques : http://www.georisques.gouv.fr. La présente annonce immobilière a été rédigée sous la responsabilité éditoriale de Mme Céline Poméon mandataire indépendant en immobilier (sans détention de fonds), agent commercial de la SAS I@D France immatriculé au RSAC de Lyon sous le numéro 494455108, titulaire de la carte de démarchage immobilier pour le compte de la société I@D France SAS.
À proximité
Recherche des commodités à proximité...
Détails de l'annonce
Localisation
Ville
Lyon
Pays
FR
Diagnostics / Énergie
Diagnostic DPE
154
Diagnostic GES
5
Surfaces / Pièces / Composition
Nombre d’étages
4
Étage
3
Chauffage et diagnostics
Diagnostic de performance énergétique (DPE)
a
b
c
d
e
f
g
Indice d'émission de gaz à effet de serre (GES)
a
b
c
d
e
f
g
