Type
Bien immobilierTarif
279 000 €Chambres
3Salles de bain
0Vente Maison/villa 4 pièces
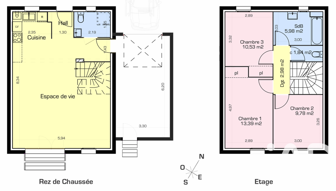
Iad France - Stéphane Julien vous propose : CAUMONT SUR DURANCE ! Villa 3 chambres de 2019 sur terrain clos de 230 m². Dans ce quartier calme et résidentiel, cette villa récente en R1 au confort moderne n'attend plus que votre décoration. Au rez de chaussée, une pièce à vivre avec espace cuisine aménagée, repas et salon, ainsi qu'une pièce buanderie / Wc (également pré-équipée pour recevoir une douche), et un accès au garage. À l'étage, 3 chambres, une salle de bain spacieuse ainsi qu'un Wc séparé. Le chauffage et la production d'eau chaude sont assurés par une chaudière au gaz de ville, et une climatisation au rdc complète le confort. Un panneau photovoltaîque assure également une partie des consommations électriques. Les menuiseries sont en PCV double vitrage, et équipées de volets roulants. L'exposition SUD du jardin et de la façade principale assure une excellente luminosité tout au long de l'année. Tous les avantages d'une villa neuve, avec une disponibilité immédiate. Honoraires d'agence à la charge du vendeur. Information d'affichage énergétique sur ce bien : classe ENERGIE C indice 76 et classe CLIMAT C indice 15. Les informations sur les risques auxquels ce bien est exposé, y compris l'obligation légale de débroussaillement, sont disponibles sur le site Géorisques : http://www.georisques.gouv.fr. La présente annonce immobilière a été rédigée sous la responsabilité éditoriale de M Stéphane Julien mandataire indépendant en immobilier (sans détention de fonds), agent commercial de la SAS I@D France immatriculé au RSAC de NIMES sous le numéro 428826614, titulaire de la carte de démarchage immobilier pour le compte de la société I@D France SAS.
À proximité
Recherche des commodités à proximité...
Détails de l'annonce
Localisation
Ville
Caumont-sur-Durance
Pays
FR
Diagnostics / Énergie
Diagnostic DPE
76
Diagnostic GES
15
Chauffage et diagnostics
Diagnostic de performance énergétique (DPE)
a
b
c
d
e
f
g
Indice d'émission de gaz à effet de serre (GES)
a
b
c
d
e
f
g
