Type
Bien immobilierTarif
259 000 €Chambres
2Salles de bain
0Vente Appartement 4 pièces
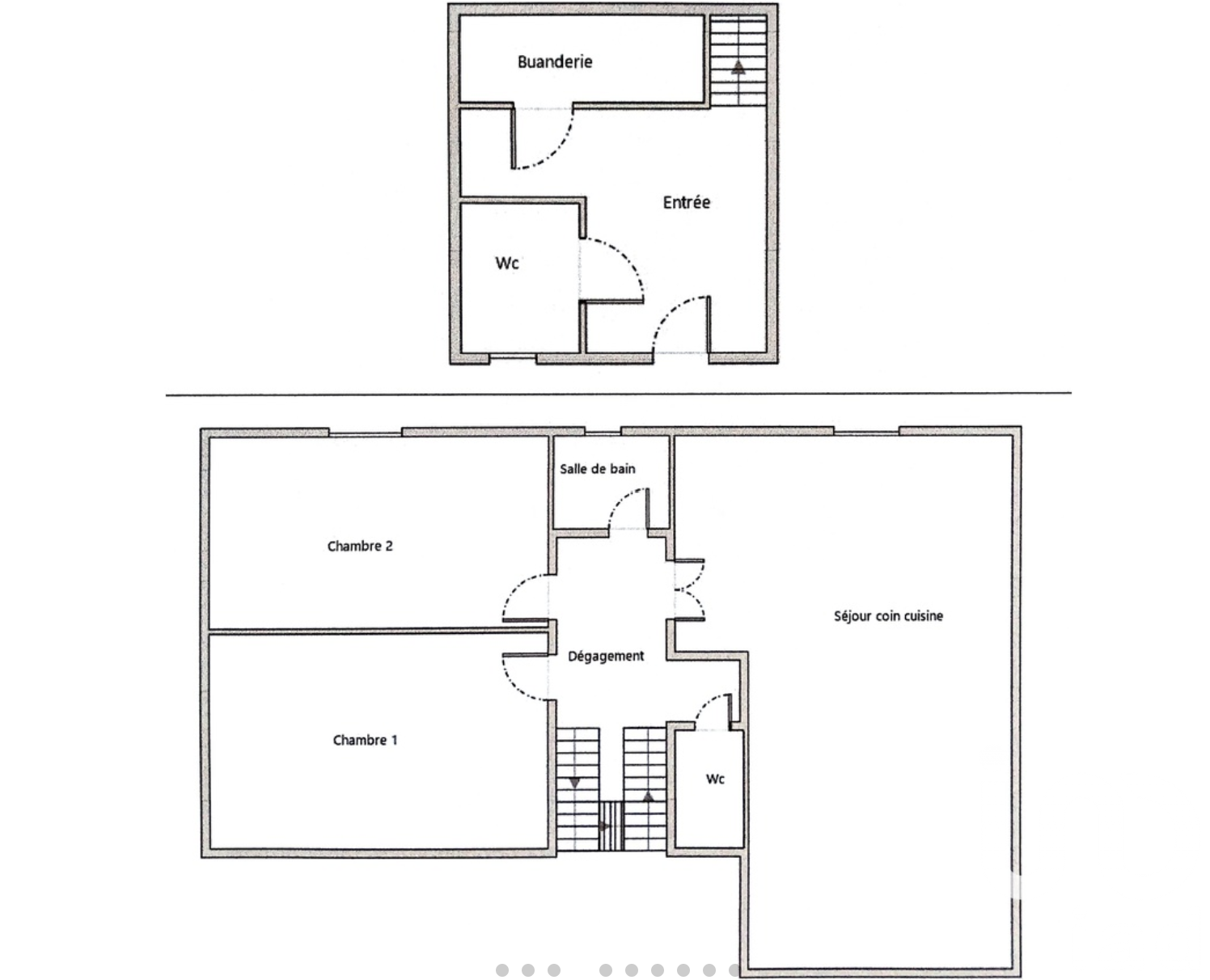
Iad France - Nadège Demoersman vous propose : Opportunité Investisseur - Appartement T3 avec studio indépendant à Carrières-sous-Poissy Situé dans la charmante ville de Carrières-sous-Poissy, cet appartement vendu loué offre un potentiel incroyable pour un investisseur. D'une surface de 66 m², ce bien se compose d'une entrée en RDC avec toilettes et buanderie et à l'étage un palier donnant sur un salon salle à manger d'une cuisine ouverte, une salle de bains et de 2 chambres. Les combles (30 m² au sol) peuvent être exploitables. Un studio indépendant complète ce bien qui peut être loué séparément. Chaque appartement a une place de parking extérieur. Loyer à 1500 euros / mois pour l'ensemble des biens. Ce bien, situé dans une résidence sécurisée, présente les avantages d'une petite copropriété. De plus, la proximité des commodités locales, des écoles et des transports en commun à 10 minutes en bus de la gare de Poissy et ligne 1 pour St Germain en Laye (RER A). Contactez-nous pour organiser une visite. Ne tardez pas. La presente annonce immobiliere vise 2 lots situés dans une copropriété de 12 lots au total et ne faisant l'objet d'aucune procédure en cours citée à l'article L. 721-1 du code de la construction et de l'habitation. Montant moyen mensuel de charges déclaré par le vendeur : 25€ par mois (soit 300 € annuel). Honoraires d'agence à la charge du vendeur. Information d'affichage énergétique sur ce bien : classe ENERGIE D indice 244 et classe CLIMAT B indice 7. Les informations sur les risques auxquels ce bien est exposé, y compris l'obligation légale de débroussaillement, sont disponibles sur le site Géorisques : http://www.georisques.gouv.fr. La présente annonce immobilière a été rédigée sous la responsabilité éditoriale de Mme Nadège Demoersman mandataire indépendant en immobilier (sans détention de fonds), agent commercial de la SAS I@D France immatriculé au RSAC de Pontoise sous le numéro 889176590, titulaire de la carte de démarchage immobilier pour le compte de la société I@D France SAS.
À proximité
Recherche des commodités à proximité...
Détails de l'annonce
Localisation
Ville
Carrières-sous-Poissy
Pays
FR
Diagnostics / Énergie
Diagnostic DPE
244
Diagnostic GES
7
Surfaces / Pièces / Composition
Nombre d’étages
Chauffage et diagnostics
Diagnostic de performance énergétique (DPE)
a
b
c
d
e
f
g
Indice d'émission de gaz à effet de serre (GES)
a
b
c
d
e
f
g
