Type
Bien immobilierTarif
351 000 €Chambres
1Salles de bain
0Vente Appartement 2 pièces
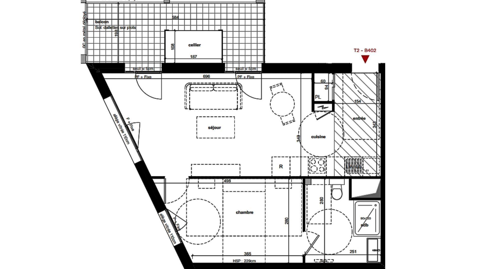
Iad France - Pierre Magerand (06 37 21 92 42) vous propose : Appartement T2 avec balcon à Saint-Julien-en-Genevois. Au cOEur de la résidence contemporaine LUMEN, idéalement située avenue de Genève à Saint-Julien-en-Genevois, découvrez une adresse rare à la frontière suisse. Moderne et durable, la résidence s’inscrit dans une démarche environnementale innovante (façades bois biosourcées, espaces verts paysagers) et propose des prestations de qualité. Disponible 2027. Un appartement raffiné : Situé au 4 ème étage, cet appartement T2 de 47 m² environ habitables s’ouvre sur un balcon de 10 m² environ. - Séjour / cuisine de 18 m² environ. - Belle chambre. - Salle d’eau moderne. - Annexes incluses : 1 parking intérieur et 1 cellier privatif. De belles prestations : - Grandes baies vitrées équipées de brise-soleil orientables bois. - Chauffage collectif par chaufferie biomasse, isolation performante. - Résidence sécurisée avec stationnements en sous-sol, local vélos et caméras dans les parties communes L’art de vivre à Saint-Julien-en-Genevois : - À seulement 230 m de la douane suisse de Perly. - Futur tramway en pied d’immeuble (mise en service prévue en 2028). - Nombreux établissements scolaires, équipements culturels et sportifs à proximité. - Accès rapide à Genève (24 min en voiture) et Annecy (33 min). N’hésitez pas à me contacter pour plus d’informations ou pour un accompagnement sur mesure. Honoraires d’agence à la charge du vendeur. Bien non soumis au DPE. Les informations sur les risques auxquels ce bien est exposé sont disponibles sur le site Géorisques : www.georisques.gouv.fr. La présente annonce immobilière a été rédigée sous la responsabilité éditoriale de M. Pierre Magerand EI (ID 86098), mandataire indépendant en immobilier (sans détention de fonds), agent commercial de la SAS I@D France immatriculé au RSAC de Cusset sous le numéro 938729175, titulaire de la carte de démarchage immobilier pour le compte de la société I@D France SAS. Retrouvez tous nos biens sur notre site internet. www.iadfrance.fr.
À proximité
Recherche des commodités à proximité...
Détails de l'annonce
Localisation
Ville
Saint-Julien-en-Genevois
Pays
FR
Surfaces / Pièces / Composition
Nombre d’étages
6
Étage
4
Chauffage et diagnostics
Diagnostic de performance énergétique (DPE)
a
b
c
d
e
f
g
Indice d'émission de gaz à effet de serre (GES)
a
b
c
d
e
f
g
