Type
Bien immobilierTarif
395 000 €Chambres
1Salles de bain
0Vente Appartement 2 pièces
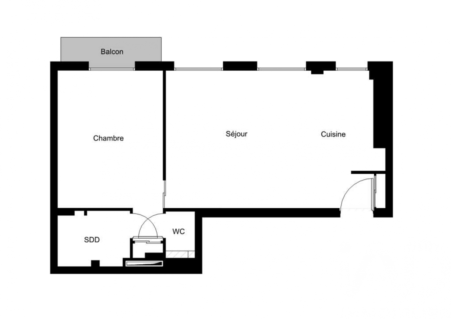
Iad France - Gregoire Hieaux vous propose : Rue de Picpus – 2 pièces idéal premier achat À proximité immédiate des commerces, des transports (métro lignes 6 et 8) et du bois de Vincennes dans un secteur recherché et agréable du 12ᵉ arrondissement, ce deux pièces de 40 m² se trouve au 1er étage d’un immeuble semi-récent bien entretenu. En bon état général, l’appartement offre un environnement très calme et une belle luminosité, idéal pour une première acquisition. Il se compose d’un vaste séjour avec cuisine américaine de 24 m², proposant un bel espace de vie convivial. La partie nuit comprend une chambre confortable de 12 m² offrant accès à un balcon de 2,5 m², une salle d’eau moderne ainsi que des WC séparés. Une cave complète ce bien. La presente annonce immobiliere vise 2 lots situés dans une copropriété de 41 lots au total et ne faisant l'objet d'aucune procédure en cours citée à l'article L. 721-1 du code de la construction et de l'habitation. Montant moyen mensuel de charges déclaré par le vendeur : 180.67€ par mois (soit 2168 € annuel). Honoraires d'agence à la charge du vendeur. Information d'affichage énergétique sur ce bien : classe ENERGIE E indice 317 et classe CLIMAT E indice 69. Les informations sur les risques auxquels ce bien est exposé, y compris l'obligation légale de débroussaillement, sont disponibles sur le site Géorisques : http://www.georisques.gouv.fr. La présente annonce immobilière a été rédigée sous la responsabilité éditoriale de M Gregoire Hieaux mandataire indépendant en immobilier (sans détention de fonds), agent commercial de la SAS I@D France immatriculé au RSAC de BOBIGNY sous le numéro 844245423, titulaire de la carte de démarchage immobilier pour le compte de la société I@D France SAS.
À proximité
Recherche des commodités à proximité...
Détails de l'annonce
Localisation
Ville
Paris
Pays
FR
Diagnostics / Énergie
Diagnostic DPE
317
Diagnostic GES
69
Surfaces / Pièces / Composition
Nombre d’étages
6
Chauffage et diagnostics
Diagnostic de performance énergétique (DPE)
a
b
c
d
e
f
g
Indice d'émission de gaz à effet de serre (GES)
a
b
c
d
e
f
g
