Vente Appartement 3 pièces
Type
Bien immobilierTarif
329 000 €Chambres
2Salles de bain
0Vente Appartement 3 pièces
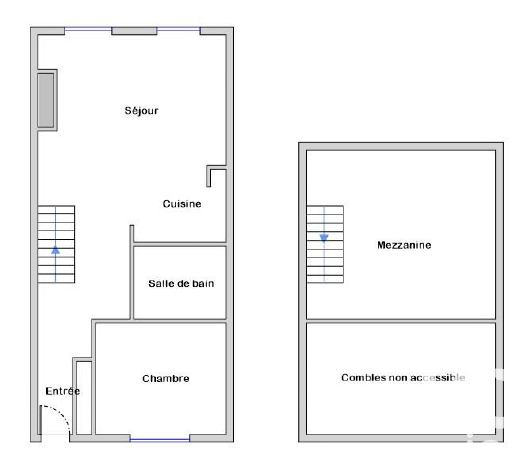
Iad France - Hervé Lafuisat vous propose : Quartier CARMES - OZENNE Situé au cOEur de Toulouse, dans un quartier prisé et dans une rue très calme, cet appartement rénové offre un beau cadre de vie alliant charme de l'ancien et confort moderne. Au troisième étage d'un immeuble de trois niveaux, cet appartement de 65 m² propose des prestations idéales pour un couple ou une petite famille. Dès l'entrée, vous serez séduit par le charme de cet appartement avec son séjour lumineux exposé Sud Est, laissant entrer la lumière naturelle toute la journée. La cuisine, intégrée et équipée, est aménagée pour offrir un espace fonctionnel et agréable. L'espace nuit se compose d'une grande chambre en mezzanine et d'une plus petite, pouvant aussi faire office de bureau, et offre des espaces intimes et confortables pour des nuits paisibles. La salle de bain moderne complète cet ensemble, avec des équipements de qualité pour votre confort au quotidien. Un cellier de plus de 15 m² vous permettra de ranger votre vélo ou servir d'espace de stockage. De plus, la proximité des transports en commun (métro ligne B, tram ligne 1 arrêt Palais de Justice) vous garantie une mobilité facilitée au quotidien. SES ATOUTS : - Petite copropriété de 7 lots. - Entièrement rénové et équipé. - Charme de l'ancien. Parquet bois d'origine. - Climatisation réversible. - Proche toutes commodités et commerces du centre ville. - Rue au calme. Aucun vis à vis. À VISITER SANS TARDER. Pour obtenir d’autres informations et photos, merci de me contacter : Hervé LAFUISAT, conseiller immobilier indépendant, disponible 7 jours sur 7. Mandat 1674718 La presente annonce immobiliere vise 3 lots situés dans une copropriété de 14 lots au total et ne faisant l'objet d'aucune procédure en cours citée à l'article L. 721-1 du code de la construction et de l'habitation. Montant moyen mensuel de charges déclaré par le vendeur : 159.67€ par mois (soit 1916 € annuel). Honoraires d'agence à la charge du vendeur. Information d'affichage énergétique sur ce bien : classe ENERGIE C indice 169 et classe CLIMAT A indice 5. Les informations sur les risques auxquels ce bien est exposé, y compris l'obligation légale de débroussaillement, sont disponibles sur le site Géorisques : http://www.georisques.gouv.fr. La présente annonce immobilière a été rédigée sous la responsabilité éditoriale de M Hervé Lafuisat mandataire indépendant en immobilier (sans détention de fonds), agent commercial de la SAS I@D France immatriculé au RSAC de TOULOUSE sous le numéro 892975327, titulaire de la carte de démarchage immobilier pour le compte de la société I@D France SAS.
Détails de l'annonce
Localisation
Ville
Toulouse
Pays
FR
Diagnostics / Énergie
Diagnostic DPE
169
Diagnostic GES
5
Surfaces / Pièces / Composition
Nombre d’étages
3
Étage
3
Chauffage et diagnostics
Diagnostic de performance énergétique (DPE)
a
b
c
d
e
f
g
Indice d'émission de gaz à effet de serre (GES)
a
b
c
d
e
f
g
