Type
Bien immobilierTarif
349 000 €Chambres
4Salles de bain
0Vente Maison/villa 6 pièces
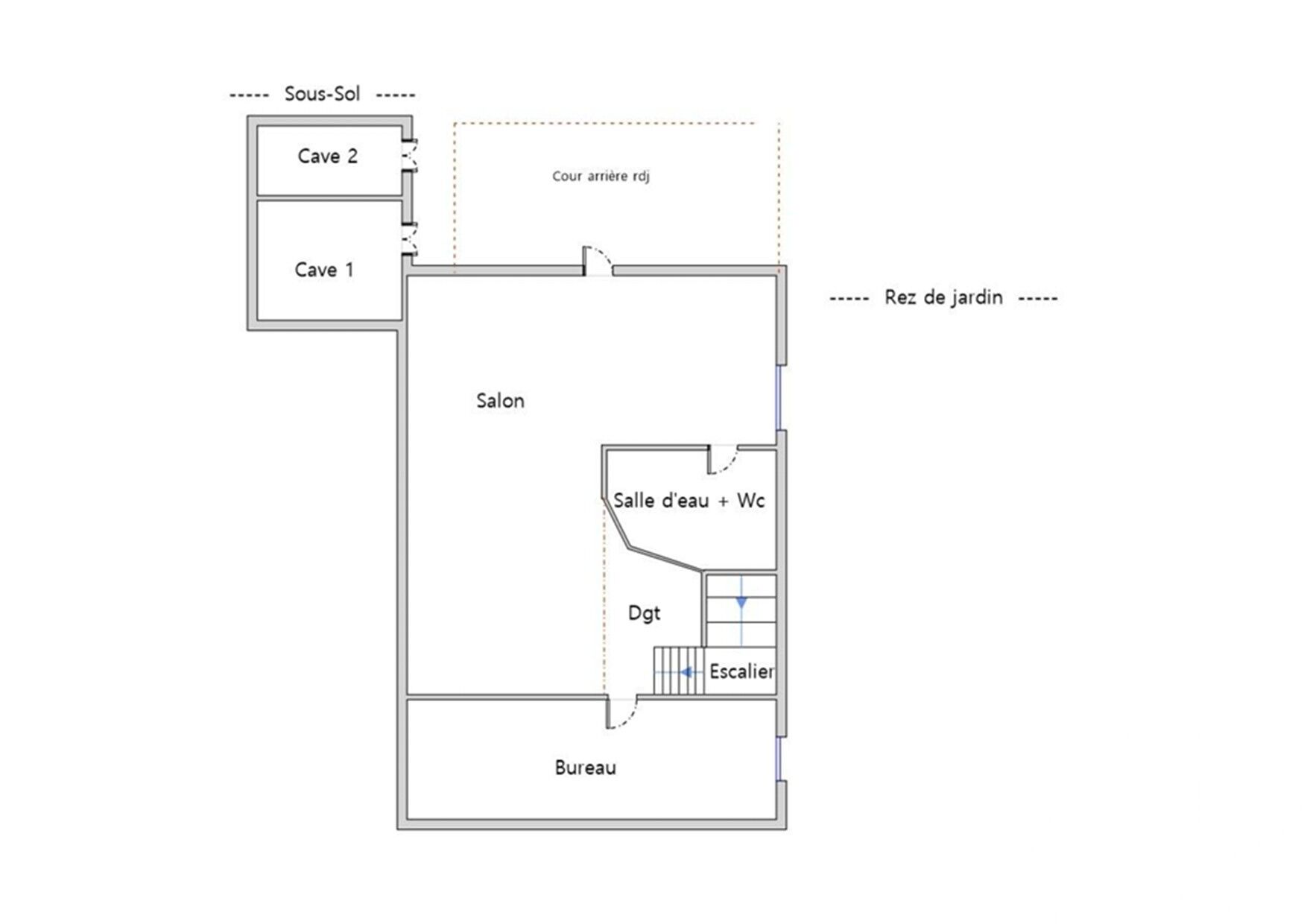
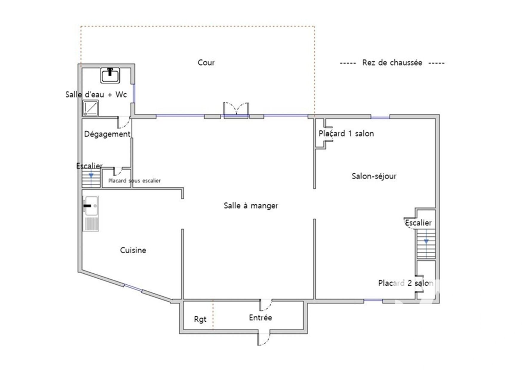
Iad France - Vincent Diez vous propose : À Mareil-sur-Mauldre – le charme à deux pas des commodités – exclusivité À vendre : maison atypique aménagée sur 3 niveaux + caves + 2 boxes + jardin avec terrasse sans vis-à-vis. SURFACES : 150 m² au sol / 128 m² habitables REZ-DE-CHAUSSÉE : entrée fonctionnelle, cuisine indépendante, salle à manger lumineuse avec cheminée insert, salle d’eau avec WC, accès à une première cour intérieure privative. 1ER ÉTAGE : pièce polyvalente (bureau, dressing ou chambre d’enfant), chambre avec rangements, chambre climatisée de 24,5 m², WC, seconde salle de bains. REZ-DE-JARDIN : salon chaleureux avec insert ouvrant sur une seconde cour (possibilité chambre), pièce attenante idéale bureau ou télétravail, troisième salle d’eau avec WC, double cave accessible depuis la cour. PRESTATIONS : maison pleine de cachet et bien entretenue, chauffage gaz complété par une pompe à chaleur récente, double vitrage, fibre optique, deux cheminées avec inserts, belle luminosité et hauteur sous plafond dans les pièces principales. EXTÉRIEURS : terrain de 530 m² sans vis-à-vis, double garage, deux cours intérieures offrant des espaces extérieurs intimistes et pratiques. SECTEUR : secteur familial à proximité des commodités. Centre-ville de Mareil-sur-Mauldre avec boulangerie, supermarché, maison médicale, à 5 minutes à pied. Gare de Mareil-sur-Mauldre (ligne N) à 5 minutes à pied. Accès A13 / A14 à Orgeval, à 15 minutes en voiture. Paris – porte Maillot à 40 minutes de voiture. Coup de cOEur pour le charme de l’ancien, les volumes et le potentiel d’aménagement. Horaires de visite adaptés à votre emploi du temps. Honoraires d'agence à la charge du vendeur. Information d'affichage énergétique sur ce bien : classe ENERGIE F indice 340 et classe CLIMAT E indice 56. Les informations sur les risques auxquels ce bien est exposé, y compris l'obligation légale de débroussaillement, sont disponibles sur le site Géorisques : http://www.georisques.gouv.fr. La présente annonce immobilière a été rédigée sous la responsabilité éditoriale de M Vincent Diez mandataire indépendant en immobilier (sans détention de fonds), agent commercial de la SAS I@D France immatriculé au RSAC de VERSAILLES sous le numéro 821022886, titulaire de la carte de démarchage immobilier pour le compte de la société I@D France SAS.
À proximité
Recherche des commodités à proximité...
Détails de l'annonce
Localisation
Ville
Mareil-sur-Mauldre
Pays
FR
Diagnostics / Énergie
Diagnostic DPE
340
Diagnostic GES
56
Surfaces / Pièces / Composition
Nombre d’étages
3
Chauffage et diagnostics
Diagnostic de performance énergétique (DPE)
a
b
c
d
e
f
g
Indice d'émission de gaz à effet de serre (GES)
a
b
c
d
e
f
g
