Type
Bien immobilierTarif
247 000 €Chambres
2Salles de bain
0Vente Appartement 3 pièces
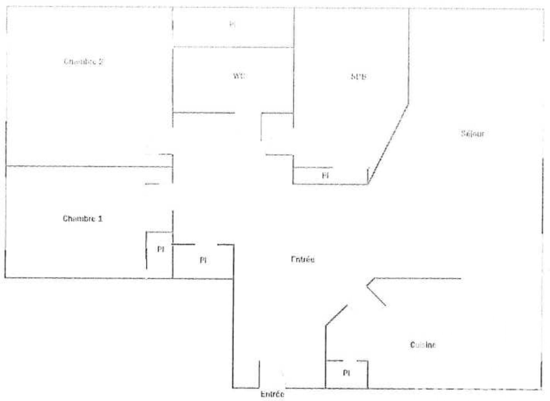
Iad France - Stéphane Cagny vous propose : En exclusivité et en plein coeur du charmant village de Saint-Genis-les-Ollières, cet appartement T3 de 70 m² en excellent état. Situé au 1er étage sur 2 (sans ascenseur) d’un immeuble des années 90 bien entretenu, l'appartement s'ouvre sur une entrée menant à un séjour de 20 m² exposé sud-ouest, baigné de lumière naturelle tout au long de la journée. La cuisine semi-ouverte, entièrement équipée et récemment rénovée, offre un espace dinatoire moderne et fonctionnel, parfait pour les repas du quotidien comme pour recevoir. De l’autre côté de l’entrée vous trouverez un couloir équipé de placards qui mène aux 2 chambres de 10 et 12 m², orientées nord-est, vers l’arrière de la résidence, au calme. Un WC et une salle d’eau en parfait état complètent cet espace. Une cave et une place de stationnement extérieur et attitrée sont également comprises dans le prix de vente. Outre l’aspect fonctionnel et performant (DPE : C) de cet appartement, celui-ci se situe en plein centre de Saint-Genis-les-Ollières et vous pourrez tout faire à pied : marché, école, gymnase, commerces, brasserie… Les arrêts de bus ne manquent pas non plus (72, JD) et vous amèneront jusqu’à Gorge de loup pour prendre le métro, ou encore aux établissements scolaires du secteur (St Joseph, JJ Rousseau, Notre-Dame des Vallons, etc.). Vous l’aurez compris, que vous soyez primo-accédant, investisseurs, ou tout simplement en recherche d’un appartement clé en mains et très bien situé, n’attendez pas pour me contacter et prévoir une visite. La presente annonce immobiliere vise 3 lots situés dans une copropriété de 195 lots au total et ne faisant l'objet d'aucune procédure en cours citée à l'article L. 721-1 du code de la construction et de l'habitation. Montant moyen mensuel de charges déclaré par le vendeur : 126.67€ par mois (soit 1520 € annuel). Honoraires d'agence à la charge du vendeur. Information d'affichage énergétique sur ce bien : classe ENERGIE C indice 153 et classe CLIMAT A indice 4. Les informations sur les risques auxquels ce bien est exposé, y compris l'obligation légale de débroussaillement, sont disponibles sur le site Géorisques : http://www.georisques.gouv.fr. La présente annonce immobilière a été rédigée sous la responsabilité éditoriale de M Stéphane Cagny mandataire indépendant en immobilier (sans détention de fonds), agent commercial de la SAS I@D France immatriculé au RSAC de Lyon sous le numéro 917406845, titulaire de la carte de démarchage immobilier pour le compte de la société I@D France SAS.
Ce mois
Cette annonce est récente
À proximité
Recherche des commodités à proximité...
Détails de l'annonce
Localisation
Ville
Saint-Genis-les-Ollières
Pays
FR
Diagnostics / Énergie
Diagnostic DPE
153
Diagnostic GES
4
Surfaces / Pièces / Composition
Nombre d’étages
2
Chauffage et diagnostics
Diagnostic de performance énergétique (DPE)
a
b
c
d
e
f
g
Indice d'émission de gaz à effet de serre (GES)
a
b
c
d
e
f
g
