Type
Bien immobilierTarif
357 000 €Chambres
2Salles de bain
0Vente Appartement 3 pièces
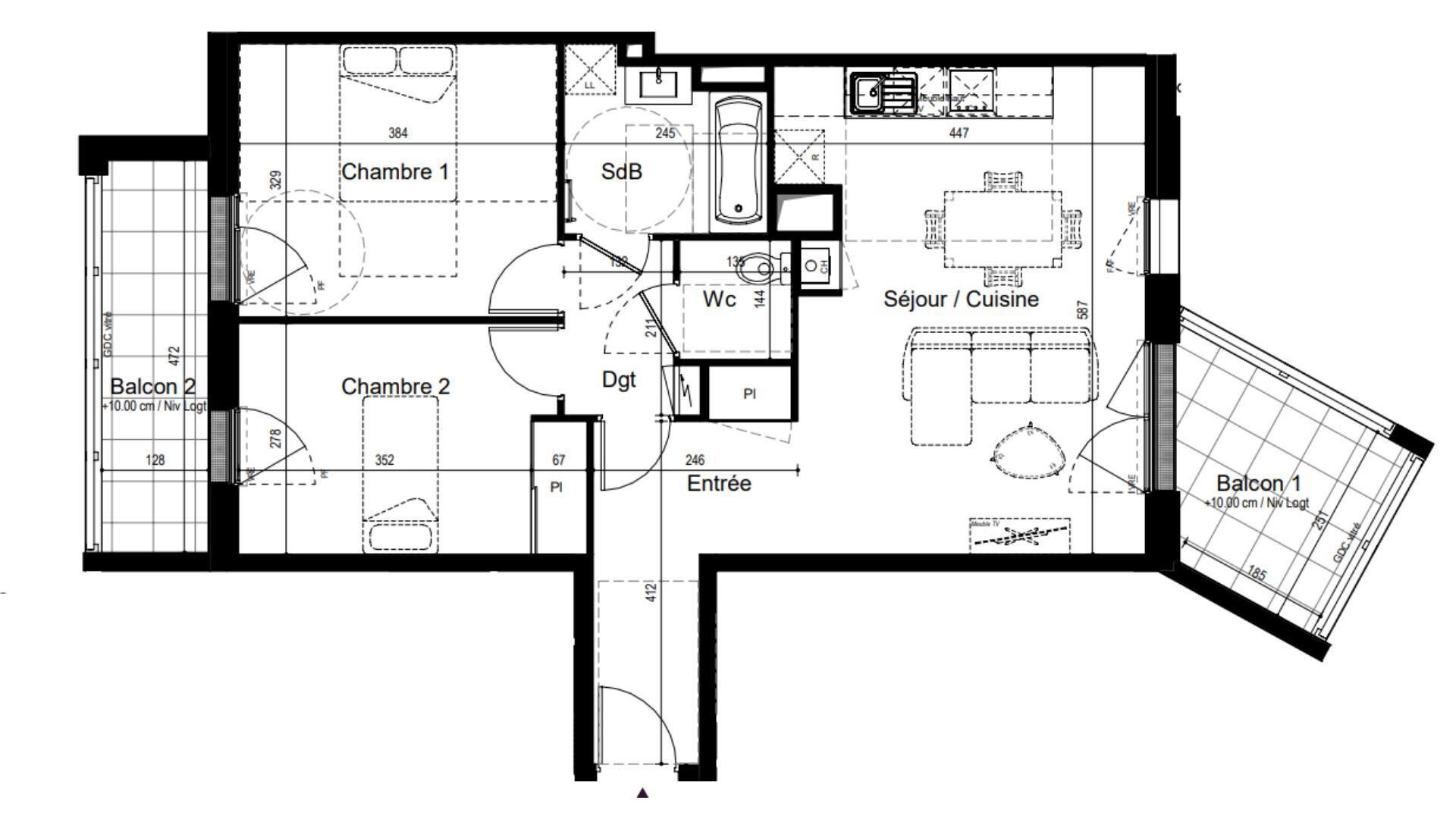
Iad France - Sarah Rozière (06 99 86 19 42) vous propose : Appartement T3 avec balcon à Saint-Malo. Située boulevard des Talards, au cOEur d’un environnement dynamique et parfaitement connecté, la résidence contemporaine Port Vauban conjugue élégance architecturale et confort de vie. À proximité immédiate de la gare, des commerces, des plages et des équipements culturels, cette adresse offre un cadre agréable à seulement quelques minutes d’Intra-Muros. Un appartement raffiné : Situé au 4 ème étage, cet appartement T3 de 66 m² environ habitables se prolonge par un balcon de 6 m² environ. - Séjour / cuisine de 25 m² environ. - Deux chambres confortables. - Salle de bain moderne. - Annexes incluses : un parking en sous-sol. De belles prestations : - Menuiseries PVC gris foncé avec double vitrage isolant. - Résidence sécurisée avec contrôle d’accès Vigik et visiophone. - Espaces verts aménagés et voie verte au pied de la résidence. L’art de vivre à Saint-Malo : - À proximité immédiate du cOEur du Grand Saint-Malo. - À 10 minutes à pied des plages et de la côte d’Émeraude. - À deux pas de la gare TGV (2h17 de Paris). - Commerces, restaurants, médiathèque, écoles et équipements sportifs accessibles à pied. - Environnement urbain rénové et voie verte traversant toute la ville. N’hésitez pas à me contacter pour plus d’informations ou pour un accompagnement sur mesure. Honoraires d’agence à la charge du vendeur. Bien non soumis au DPE. Les informations sur les risques auxquels ce bien est exposé sont disponibles sur le site Géorisques : www.georisques.gouv.fr. La présente annonce immobilière a été rédigée sous la responsabilité éditoriale de Mlle Sarah Rozière EI (ID 83696), mandataire indépendant en immobilier (sans détention de fonds), agent commercial de la SAS I@D France immatriculé au RSAC de Clermont-Ferrand sous le numéro 978616993, titulaire de la carte de démarchage immobilier pour le compte de la société I@D France SAS. Retrouvez tous nos biens sur notre site internet. www.iadfrance.fr.
À proximité
Recherche des commodités à proximité...
Détails de l'annonce
Localisation
Ville
Saint-Malo
Pays
FR
Surfaces / Pièces / Composition
Nombre d’étages
6
Étage
4
Chauffage et diagnostics
Diagnostic de performance énergétique (DPE)
a
b
c
d
e
f
g
Indice d'émission de gaz à effet de serre (GES)
a
b
c
d
e
f
g
