Type
Bien immobilierTarif
313 100 €Chambres
1Salles de bain
0Vente Appartement 2 pièces
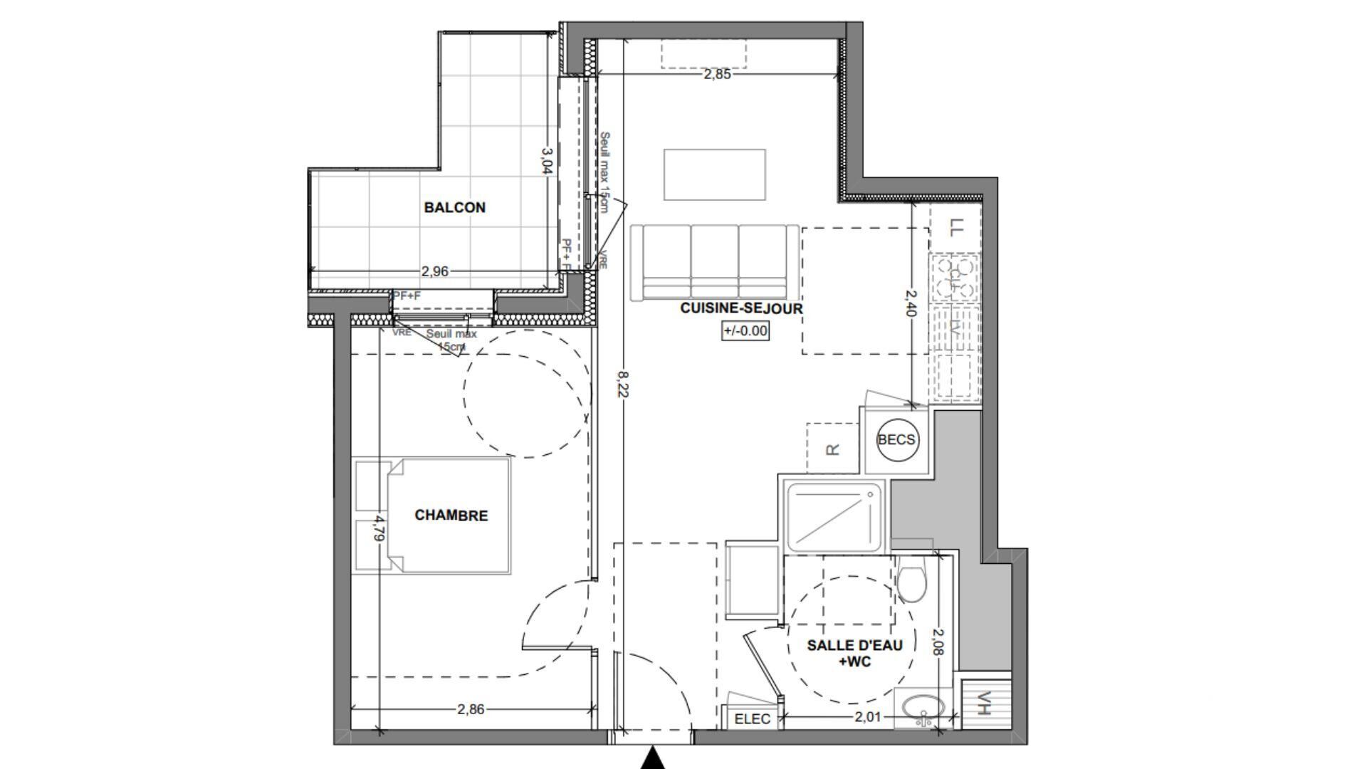
Iad France - Sarah Rozière (06 99 86 19 42) vous propose : Appartement T2 avec balcon à Saint-Malo. Située rue Amiral Leverger, au cOEur d’un environnement résidentiel verdoyant, la résidence contemporaine Arborea conjugue élégance architecturale et confort de vie. À proximité immédiate des commerces, des transports, des plages et des espaces naturels, cette adresse offre un cadre paisible à seulement quelques minutes du centre de Saint-Malo. Disponible 2028. Un appartement raffiné : Situé au 2 ème étage, cet appartement T2 de 45 m² environ habitables se prolonge par un balcon de 6 m² environ. - Séjour / cuisine de 26 m² environ. - Une chambre confortable. - Salle d’eau moderne. - Annexes incluses : un parking intérieur sécurisé. De belles prestations : - Revêtements stratifiés dans le séjour / cuisine et la chambre, gamme Quick-Step Impressive ou équivalent, avec isolant acoustique. - Menuiseries extérieures avec double vitrage isolant, volets roulants électriques. - Résidence sécurisée avec visiophone, contrôle d’accès Vigik. - Local vélos et espaces extérieurs aménagés. L’art de vivre à Saint-Malo : - À proximité immédiate des commerces, services et transports. - À quelques minutes des plages et du quartier de Saint-Servan. - Environnement naturel, calme et recherché. - Accès rapide intra-muros, gare TGV et axes majeurs. N’hésitez pas à me contacter pour plus d’informations ou pour un accompagnement sur mesure. Honoraires d’agence à la charge du vendeur. Bien non soumis au DPE. Les informations sur les risques auxquels ce bien est exposé sont disponibles sur le site Géorisques : www.georisques.gouv.fr. La présente annonce immobilière a été rédigée sous la responsabilité éditoriale de Mlle Sarah Rozière EI (ID 83696), mandataire indépendant en immobilier (sans détention de fonds), agent commercial de la SAS I@D France immatriculé au RSAC de Clermont-Ferrand sous le numéro 978616993, titulaire de la carte de démarchage immobilier pour le compte de la société I@D France SAS. Retrouvez tous nos biens sur notre site internet. www.iadfrance.fr.
À proximité
Recherche des commodités à proximité...
Détails de l'annonce
Localisation
Ville
Saint-Malo
Pays
FR
Surfaces / Pièces / Composition
Nombre d’étages
5
Étage
2
Chauffage et diagnostics
Diagnostic de performance énergétique (DPE)
a
b
c
d
e
f
g
Indice d'émission de gaz à effet de serre (GES)
a
b
c
d
e
f
g
