Trouver...

Language: FR

Devise: EUR

Vente Maison traditionnelle 4 pièces

Publié le 1 May 2026
Type
Bien immobilier
Tarif
249 000 €
Chambres
3
Salles de bain
0

Vente Maison traditionnelle 4 pièces

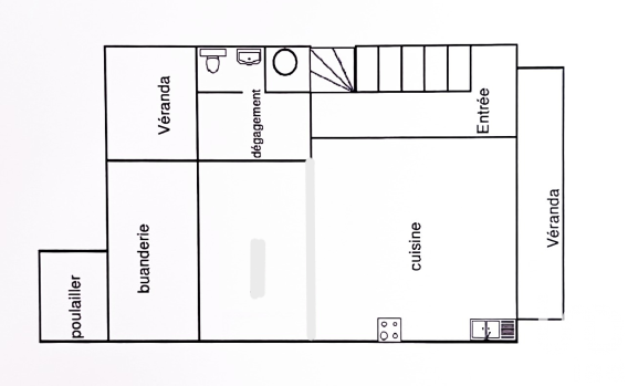
Iad France - Dominique Piaugeard vous propose : Opportunité exceptionnelle. Charmante maison traditionnelle de 105 m² sur un vaste terrain de 5480 m² à BEDENAC. Laissez vous séduire par ce bien magnifique situé dans un cadre bucolique. Construite en 2001 en excellent état général, cette propriété offre un espace de vie chaleureux et confortable, idéal pour une famille et des amoureux de la nature. À l'intérieur vous trouverez un salon lumineux avec cuisine équipée ouverte, une salle à manger conviviale, trois belles chambres, une salle de bain avec une belle douche italienne et une baignoire, un wc et une buanderie. Chaque pièce a été pensée pour offrir à ses occupants un maximum de confort et de fonctionnalité. Vous profiterez également de la quiétude de la campagne depuis le vaste terrain arboré de 5480 m² offrant de multiples possibilités d'aménagement et d'activités en plein air. Imaginez- vous partager des moments de convivialité en famille ou entre amis dans ce cadre enchanteur tout en étant à proximité des commodités nécessaires au quotidien. Les équipements de cette maison sont nombreux afin de vous garantir un un bien - être des plus agréables : fibre optique pour rester connecté, climatisation pour un confort thermique optimal, poêle à pellets, système d'alarme pour votre sécurité et tranquillité d'esprit avec caméras, volets électriques avec commandes à distance, grand garage et carport, Bénéficiez d'une quiétude absolue dans ce havre de paix sans aucun travaux à prévoir. En prime, d'un accès rapide aux principaux axes routiers pour rejoindre facilement les villes environnantes. ( BORDEAUX, ANGOULEME) Cette maison est un véritable bijou à ne pas manquer. Une visite s'impose pour apprécier pleinement de son potentiel. Contactez moi dès maintenant pour organiser une visite et saisir cette opportunité unique sur le marché de Bédenac. Honoraires d'agence à la charge du vendeur. Information d'affichage énergétique sur ce bien : classe ENERGIE C indice 131 et classe CLIMAT A indice 4. Les informations sur les risques auxquels ce bien est exposé, y compris l'obligation légale de débroussaillement, sont disponibles sur le site Géorisques : http://www.georisques.gouv.fr. La présente annonce immobilière a été rédigée sous la responsabilité éditoriale de M Dominique Piaugeard mandataire indépendant en immobilier (sans détention de fonds), agent commercial de la SAS I@D France immatriculé au RSAC de SAINTES sous le numéro 934254897, titulaire de la carte de démarchage immobilier pour le compte de la société I@D France SAS.
Cette semaine Cette annonce est récente

À proximité

Recherche des commodités à proximité...

Détails de l'annonce

Localisation

Ville
Bedenac
Pays
FR

Diagnostics / Énergie

Diagnostic DPE
131
Diagnostic GES
4

Surfaces / Pièces / Composition

Nombre d’étages

Chauffage et diagnostics

Diagnostic de performance énergétique (DPE)
a
b
c
d
e
f
g
Indice d'émission de gaz à effet de serre (GES)
a
b
c
d
e
f
g
Rappelez-moi