Trouver...

Language: FR

Devise: EUR

Vente Maison traditionnelle 6 pièces

Publié le 18 April 2025
Type
Bien immobilier
Tarif
236 000 €
Chambres
4
Salles de bain
0

Vente Maison traditionnelle 6 pièces

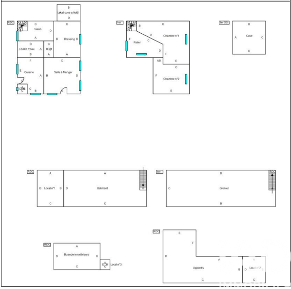
Iad France - Florence Carles vous propose : Maison de 100 m² habitables - 3 chambres + 1 supplémentaire en potentiel Dans le quartier Beausoleil, au calme dans une impasse, cette maison de 5 pièces offre un bon potentiel pour une rénovation sur mesure. Construite en 1970, cette villa possède une surface totale de 118 m² et est implantée sur un terrain d'environ 400 m², offrant ainsi un espace extérieur exploitable en stationnement parking, jardin, petite piscine. Elle se compose d’une entrée sur un salon cheminée LUMINEUX de 32 m², 1 salle à manger, un espace cuisine séparé à rénover, 3 chambres, 1 salle d'eau, 1 wc. Créé en remplacement du garage, un logement type T2 vous permettra un espace supplémentaire à rénover entièrement avec un salon, une chambre séparée, une kitchenette, une salle d’eau et wc. Ces 2 espaces pourront se réunir après travaux importants. La maison bénéficie d'une belle terrasse couverte avec coin barbecue et d' un abri jardin. La maison est aujourd hui au fuel et raccordée au tout à l’égout et bénéficie de stores automatiques. Attention des travaux de rénovation sont à prévoir entre 70 000 et 130 000€ selon vos projets (IPN électricité Plomberie Chauffage isolation Huisseries à remplacer, peinture). Cette villa offre un immense potentiel pour ceux à la recherche d'un projet de rénovation. Avec un joli jardin attenant, vous pourrez laisser libre cours à votre créativité pour créer votre propre havre de paix. Située à Beauzelle, vous bénéficierez d'un environnement paisible tout en étant proche des commodités de la ville. Les écoles, commerces, et transports en commun sont facilement accessibles, offrant ainsi un cadre de vie agréable et pratique. Les + : sa situation géographique au calme / son petit jardin / terrasse couverte et barbecue / 3 chambres avec dépendance / Proche commodités & services : boulangerie, épicerie, banques, tabac presse, Picard, restaurant à 400 mètres, / collège Elisa Deroche et Écoles élémentaires Henri Matisse à 1,3 km / centre commercial Blagnac 3 km Contactez -nous du lundi au samedi pour plus d'informations et pour organiser une visite ! Honoraires d'agence à la charge du vendeur. Information d'affichage énergétique sur ce bien : classe ENERGIE E indice 275 et classe CLIMAT D indice 39. Les informations sur les risques auxquels ce bien est exposé, y compris l'obligation légale de débroussaillement, sont disponibles sur le site Géorisques : http://www.georisques.gouv.fr. La présente annonce immobilière a été rédigée sous la responsabilité éditoriale de Mme Florence Carles mandataire indépendant en immobilier (sans détention de fonds), agent commercial de la SAS I@D France immatriculé au RSAC de TOULOUSE sous le numéro 920756707, titulaire de la carte de démarchage immobilier pour le compte de la société I@D France SAS.

À proximité

Recherche des commodités à proximité...

Détails de l'annonce

Localisation

Ville
Beauzelle
Pays
FR

Diagnostics / Énergie

Diagnostic DPE
275
Diagnostic GES
39

Surfaces / Pièces / Composition

Nombre d’étages

Chauffage et diagnostics

Diagnostic de performance énergétique (DPE)
a
b
c
d
e
f
g
Indice d'émission de gaz à effet de serre (GES)
a
b
c
d
e
f
g
Rappelez-moi