Trouver...

Language: FR

Devise: EUR

Vente Appartement 2 pièces

Publié le 8 April 2025
Type
Bien immobilier
Tarif
167 100 €
Chambres
0
Salles de bain
0

Vente Appartement 2 pièces

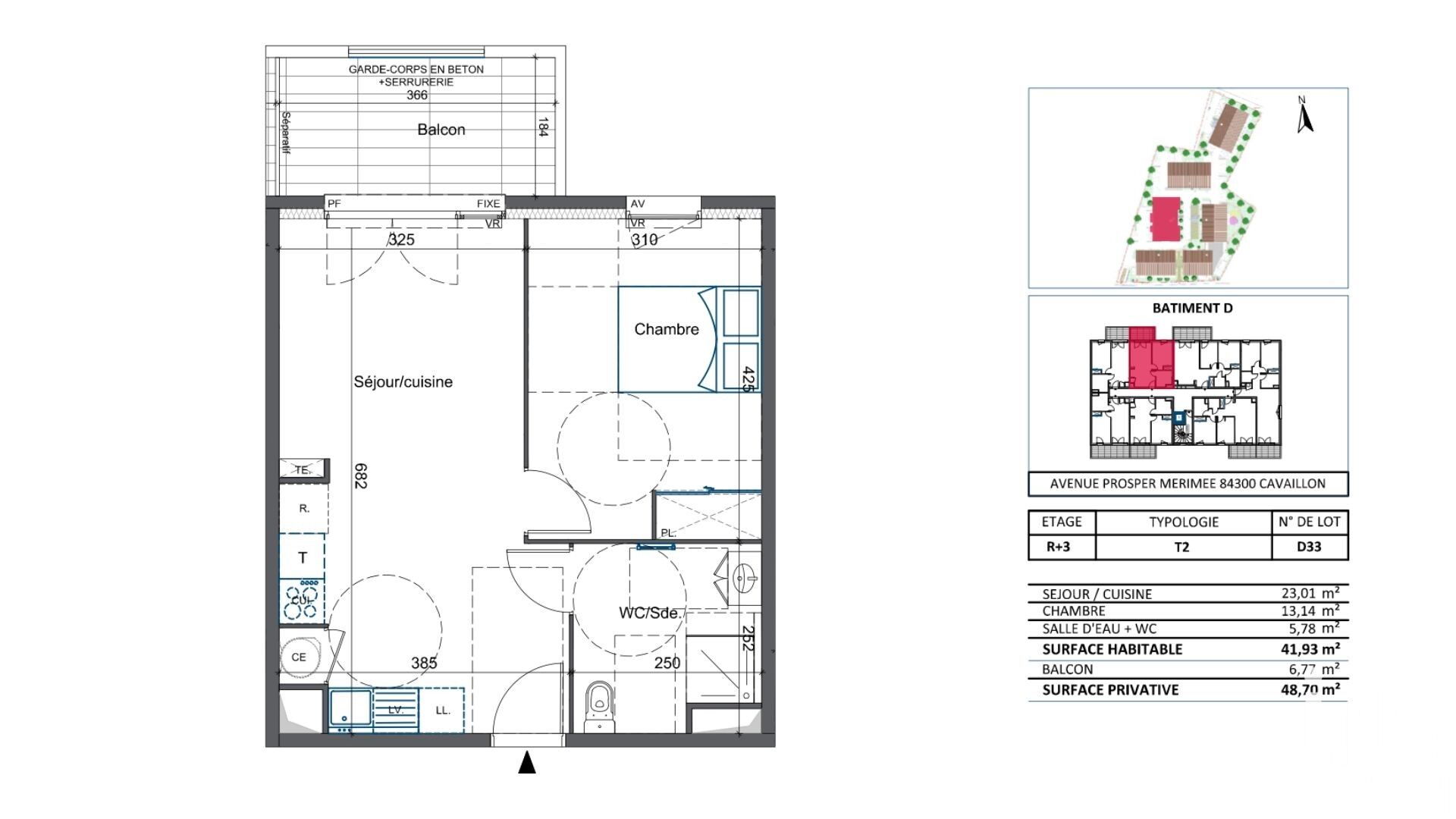
Iad France - Anthony Bruneau (06 86 95 48 84) vous propose : Situé au 3ème étage d'une résidence récente et sécurisée avec ascenseur, cet appartement T2 d’environ 42 m² environ vous séduira par sa luminosité et son agencement optimisé. Il comprend un séjour avec cuisine ouverte donnant accès à un balcon d’environ 7 m² environ, parfait pour profiter d’un espace extérieur au quotidien. La chambre spacieuse de plus de 13 m² environ offre un véritable confort, tout comme la salle d’eau avec WC attenante. Le bien dispose également d'une place de stationnement privative. Idéal pour une résidence principale, un premier achat ou un investissement locatif, dans un cadre de vie agréable. N'hésitez pas à me contacter pour plus d’informations. Honoraires d’agence à la charge du vendeur. Bien non soumis au DPE. Les informations sur les risques auxquels ce bien est exposé sont disponibles sur le site Géorisques : www.georisques.gouv.fr. La présente annonce immobilière a été rédigée sous la responsabilité éditoriale de M. Anthony Bruneau EI (ID 81524), mandataire indépendant en immobilier (sans détention de fonds), agent commercial de la SAS I@D France immatriculé au RSAC de Avignon sous le numéro 984396002, titulaire de la carte de démarchage immobilier pour le compte de la société I@D France SAS. Retrouvez tous nos biens sur notre site internet. www.iadfrance.fr.

À proximité

Recherche des commodités à proximité...

Détails de l'annonce

Localisation

Ville
Cavaillon
Pays
FR

Surfaces / Pièces / Composition

Nombre d’étages

Chauffage et diagnostics

Diagnostic de performance énergétique (DPE)
a
b
c
d
e
f
g
Indice d'émission de gaz à effet de serre (GES)
a
b
c
d
e
f
g
Rappelez-moi