Type
Bien immobilierTarif
600 000 €Chambres
4Salles de bain
0Vente Maison de ville 6 pièces
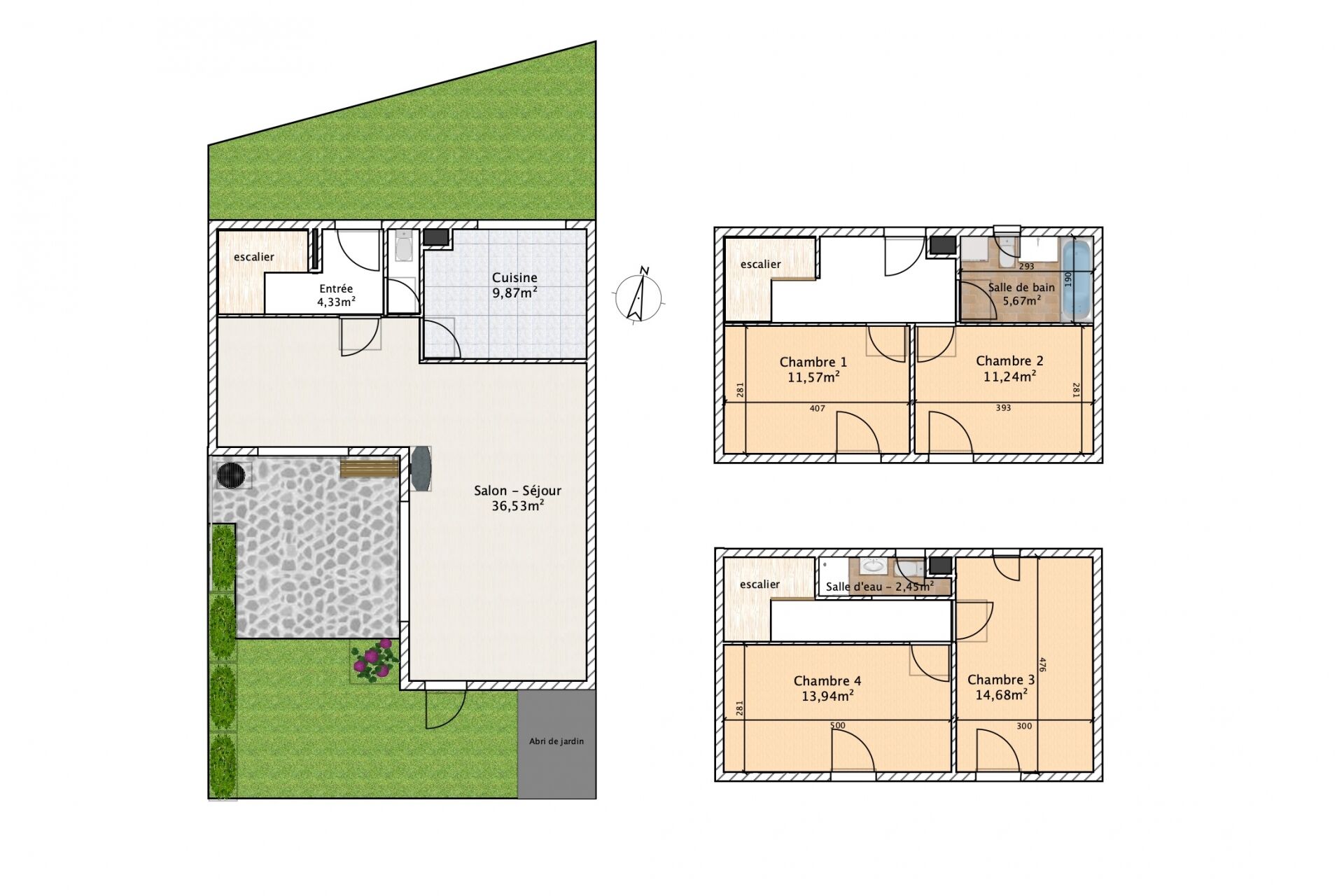
Iad France - Julien Djozikian vous propose : Maison de ville récente, avec jardin, dans le quartier Mont Valérien. Bienvenue dans cette charmante maison de ville de 122 m² située à Nanterre, construite en 2006 et offrant un cadre de vie confortable et pratique pour une famille. Cette maison de ville, en bon état général, est répartie sur deux étages et propose un vaste séjour / salle à manger, une cuisine séparée équipée (pouvant être ouverte sur le séjour), 4 chambres spacieuses, 1 salle de bain, 1 salle d'eau et 3 WC. Ses excellentes performances énergétiques sont un vrai atout quant à votre confort. Au rez-de-chaussée, vous découvrirez un espace de vie lumineux baigné par la lumière du jardin, comprenant une grande salle à manger / salon de 36 m² environ, idéale pour les repas en famille et les moments de convivialité. La cuisine, fonctionnelle et équipée, vous permettra de concocter de délicieux repas, vue sur le 2ème jardin. À l'étage, les 4 chambres offrent des surfaces généreuses (environ 12 m²) pour assurer le confort de chacun. Chaque espace confortablement aménagé est parfaitement agencé pour garantir à chacun son intimité. À l'extérieur, vous profiterez de 2 espaces jardin / terrasse de part et d'autre de la maison (côté cuisine et côté salon). Rare dans ce secteur, 2 places de parking (pouvant être raccordées pour recharge voitures électriques) et une cave viennent compléter ce bien. À proximité du rond point de la Boule, proche de toutes commodités, écoles et très prochainement de la Ligne 15 du métro. Cette maison de ville alliant confort, espace et aspects pratiques est un véritable havre de paix familial. Contactez-moi pour en savoir plus et la visiter ! La presente annonce immobiliere vise 4 lots situés dans une copropriété de 150 lots au total et ne faisant l'objet d'aucune procédure en cours citée à l'article L. 721-1 du code de la construction et de l'habitation. Montant moyen mensuel de charges déclaré par le vendeur : 119€ par mois (soit 1428 € annuel). Honoraires d'agence à la charge du vendeur. Information d'affichage énergétique sur ce bien : classe ENERGIE C indice 154 et classe CLIMAT A indice 5. Les informations sur les risques auxquels ce bien est exposé, y compris l'obligation légale de débroussaillement, sont disponibles sur le site Géorisques : http://www.georisques.gouv.fr. La présente annonce immobilière a été rédigée sous la responsabilité éditoriale de M Julien Djozikian mandataire indépendant en immobilier (sans détention de fonds), agent commercial de la SAS I@D France immatriculé au RSAC de NANTERRE sous le numéro 850385907, titulaire de la carte de démarchage immobilier pour le compte de la société I@D France SAS.
Cette semaine
Cette annonce est récente
À proximité
Recherche des commodités à proximité...
Détails de l'annonce
Localisation
Ville
Nanterre
Pays
FR
Diagnostics / Énergie
Diagnostic DPE
154
Diagnostic GES
5
Surfaces / Pièces / Composition
Nombre d’étages
2
Chauffage et diagnostics
Diagnostic de performance énergétique (DPE)
a
b
c
d
e
f
g
Indice d'émission de gaz à effet de serre (GES)
a
b
c
d
e
f
g
