Type
Bien immobilierTarif
139 000 €Chambres
2Salles de bain
0Vente Appartement 6 pièces
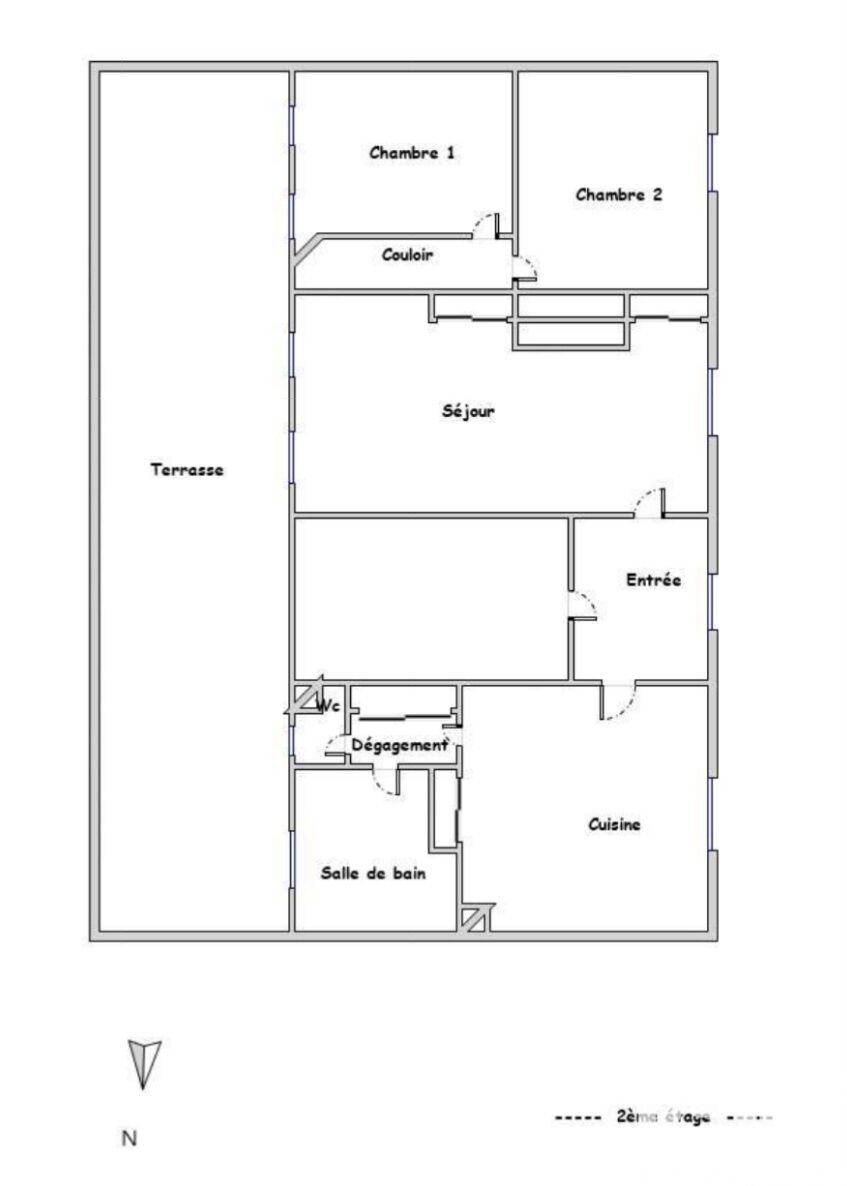
Iad France - Sophie Chenot vous propose : Très belle opportunité – appartement à découvrir. Emplacement de choix en plein centre-ville avec stationnement en souterrain compris dans le prix de vente. En annexe compris, cave, jardin commun. Situé en plein cOEur du centre-ville, cet appartement spacieux et lumineux séduit par son agencement particulièrement fonctionnel. Une jolie entrée de 5 m² dessert harmonieusement les espaces de vie. D’un côté, vous trouverez une cuisine équipée et aménagée, ainsi qu’un WC séparé et une salle de bains. De l’autre, un vaste séjour / salle à manger de 30 m², s’ouvre sur une exceptionnelle terrasse de 40 m², un véritable atout en plein centre-ville. Un dégagement mène à deux chambres confortables, au calme. L’appartement se situe dans un immeuble très bien entretenu, aux parties communes charmantes et sécurisées (digicode, interphone). Charges énergétiques individuelles. Une très belle proposition à ne pas manquer. La presente annonce immobiliere vise 2 lots situés dans une copropriété de 12 lots au total et ne faisant l'objet d'aucune procédure en cours citée à l'article L. 721-1 du code de la construction et de l'habitation. Montant moyen mensuel de charges déclaré par le vendeur : 113.33€ par mois (soit 1360 € annuel). Honoraires d'agence à la charge du vendeur. Information d'affichage énergétique sur ce bien : classe ENERGIE D indice 161 et classe CLIMAT D indice 33. Les informations sur les risques auxquels ce bien est exposé, y compris l'obligation légale de débroussaillement, sont disponibles sur le site Géorisques : http://www.georisques.gouv.fr. La présente annonce immobilière a été rédigée sous la responsabilité éditoriale de Mme Sophie Chenot mandataire indépendant en immobilier (sans détention de fonds), agent commercial de la SAS I@D France immatriculé au RSAC de POITIERS sous le numéro 919395301, titulaire de la carte de démarchage immobilier pour le compte de la société I@D France SAS.
À proximité
Recherche des commodités à proximité...
Détails de l'annonce
Localisation
Ville
Châtellerault
Pays
FR
Diagnostics / Énergie
Diagnostic DPE
161
Diagnostic GES
33
Surfaces / Pièces / Composition
Nombre d’étages
2
Chauffage et diagnostics
Diagnostic de performance énergétique (DPE)
a
b
c
d
e
f
g
Indice d'émission de gaz à effet de serre (GES)
a
b
c
d
e
f
g
