Type
Bien immobilierTarif
262 500 €Chambres
2Salles de bain
0Vente Maison traditionnelle 4 pièces
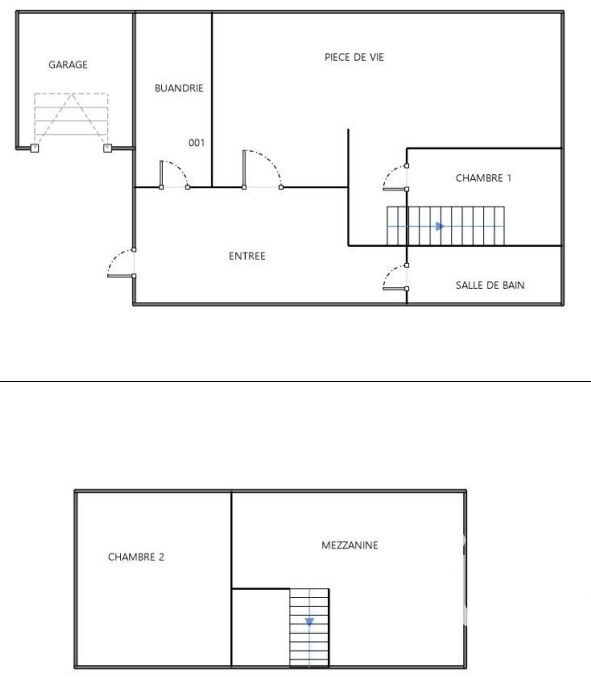
Iad France - Corinne Deleplace vous propose : Maison avec vie de plain-pied, et son beau jardin. Centre de Montoir-de-Bretagne. En recule de la route, cette maison avec son stationnement privé vous séduira par son emplacement. Nous entrons par une pièce à vivre de 23 m² dans laquelle nous avons accès à la buanderie, la salle de bain et la cuisine de 15 m². La circulation est assez fluide et agréable. Nous découvrons ensuite le salon de 24 m² et son dégagement avec l'escalier, la chambre du rez de chaussé de 11 m² et son dressing. À l'étage sur plancher bois, les combles ont été aménagés pour un espace nuit et bureau. Une chaudière récente avec chauffage mural, une cheminée et un convecteur électrique à l'étage. Toutes les ouvertures sont en double vitrage pvc et fenêtres de toit en bois. Adoucisseur d'eau en place. Tout à l'égout. Mitoyen à l'est. Garage de 25 m² Cette maison à encore des possibilités d'aménagement et d'agrandissement. Des travaux de finitions et de remise au goût du jour sont à prévoir. Ainsi que les fenêtres de toit. Classement énergétique D de 2025. Honoraires d'agence à la charge de l'acquéreur. Prix honoraires inclus : 262500 euros. Prix hors honoraires : 255000 euros. Honoraires TTC à la charge de l'acquéreur (2,94% du prix du bien hors honoraires) : 7500 euros. Information d'affichage énergétique sur ce bien : classe ENERGIE D indice 190 et classe CLIMAT D indice 41. Les informations sur les risques auxquels ce bien est exposé, y compris l'obligation légale de débroussaillement, sont disponibles sur le site Géorisques : http://www.georisques.gouv.fr. La présente annonce immobilière a été rédigée sous la responsabilité éditoriale de Mme Corinne Deleplace mandataire indépendant en immobilier (sans détention de fonds), agent commercial de la SAS I@D France immatriculé au RSAC de SAINT NAZAIRE sous le numéro 901632570, titulaire de la carte de démarchage immobilier pour le compte de la société I@D France SAS.
À proximité
Recherche des commodités à proximité...
Détails de l'annonce
Localisation
Ville
Montoir-de-Bretagne
Pays
FR
Diagnostics / Énergie
Diagnostic DPE
190
Diagnostic GES
41
Surfaces / Pièces / Composition
Nombre d’étages
2
Chauffage et diagnostics
Diagnostic de performance énergétique (DPE)
a
b
c
d
e
f
g
Indice d'émission de gaz à effet de serre (GES)
a
b
c
d
e
f
g
