Trouver...

Language: FR

Devise: EUR

Vente Demeure 10 pièces

Publié le 20 November 2025
Type
Bien immobilier
Tarif
770 000 €
Chambres
5
Salles de bain
0

Vente Demeure 10 pièces

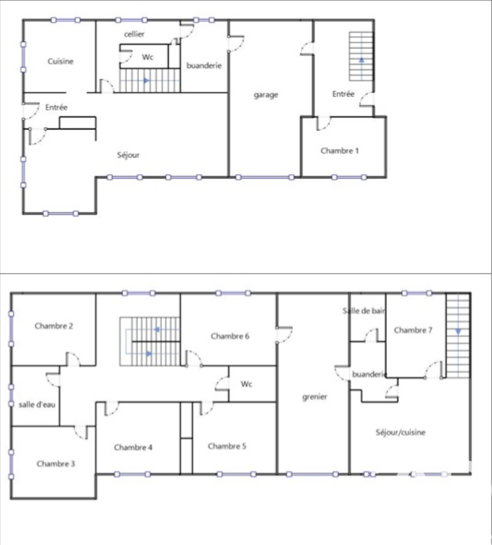
Iad France - Corinne Gosalbez vous propose : Grande et belle demeure en pierre avec Jardin dans le village de Candillargues. Non mitoyenne, cette magnifique Propriété est composée de 5 chambres et d'un appartement T3 indépendant. Elle possède un grand garage et un grenier pouvant être aménagés. Située proche des commerces et de l'école à seulement quelques minutes des plages de la Méditerranée, de Mauguio et à 20 mn de Montpellier, cette propriété alliant charme d'antan et confort moderne, saura vous séduire. Au rez-de-chaussée, une entrée avec placard aménagé dessert une cuisine séparée, une salle à manger ouverte sur un salon lumineux avec une cheminée en pierre. Un espace buanderie avec l'accès au garage et des toilettes complètent ce niveau. L'escalier vous mènera à un pallier spacieux et lumineux où se trouvent cinq chambres, chacune offrant son propre charme, une salle d'eau moderne et des toilettes séparées. Les surfaces généreuses des pièces vous offrent un espace de vie agréable, authentique et fonctionnel. Des surprises vous attendent. Cette belle demeure possède un grenier de 44 m² insolite grâce à sa charpente métallique avec une fenêtre, que vous pourrez aménager en pièce supplémentaire. Un T 3 indépendant, attenant à la bâtisse et fonctionnel a déjà été créé ! Datant de 1930 mais entièrement rénovée (toit refait), elle bénéficie de prestations de qualité pour un confort optimal. Vous apprécierez notamment les menuiseries en PVC double vitrage, la climatisation réversible, l'accès à la fibre optique et un forage pour le jardin. Un grand garage de 77 m² fermé et des espaces de stationnement vous permettront de stationner vos véhicules en toute sécurité. Idéal pour entreposer des véhicules utilitaires ou de prestiges. Cette propriété d'exception, orientée au SUD, offre un cadre de vie paisible et ensoleillé, idéal pour profiter du climat méditerranéen. Ne manquez pas cette opportunité rare d'acquérir une bastide de caractère et unique dans ce village proche d'une nature protégée. Contactez-moi dès maintenant pour connaître et voir tout le potentiel de cette propriété unique sur le marché. Honoraires d'agence à la charge de l'acquéreur. Prix honoraires inclus : 770000 euros. Prix hors honoraires : 739200 euros. Honoraires TTC à la charge de l'acquéreur (4,17% du prix du bien hors honoraires) : 30800 euros. Information d'affichage énergétique sur ce bien : classe ENERGIE B indice 92 et classe CLIMAT A indice 3. Les informations sur les risques auxquels ce bien est exposé, y compris l'obligation légale de débroussaillement, sont disponibles sur le site Géorisques : http://www.georisques.gouv.fr. La présente annonce immobilière a été rédigée sous la responsabilité éditoriale de Mme Corinne Gosalbez mandataire indépendant en immobilier (sans détention de fonds), agent commercial de la SAS I@D France immatriculé au RSAC de MONTPELLIER sous le numéro 531508489, titulaire de la carte de démarchage immobilier pour le compte de la société I@D France SAS.

À proximité

Recherche des commodités à proximité...

Détails de l'annonce

Localisation

Ville
Candillargues
Pays
FR

Diagnostics / Énergie

Diagnostic DPE
92
Diagnostic GES
3

Finances / Mandat / Références

Honoraires
30 €

Surfaces / Pièces / Composition

Nombre d’étages
2

Chauffage et diagnostics

Diagnostic de performance énergétique (DPE)
a
b
c
d
e
f
g
Indice d'émission de gaz à effet de serre (GES)
a
b
c
d
e
f
g
Rappelez-moi