Trouver...

Language: FR

Devise: EUR

Vente Demeure 5 pièces

Publié le 19 January 2026
Type
Bien immobilier
Tarif
940 000 €
Chambres
2
Salles de bain
0

Vente Demeure 5 pièces

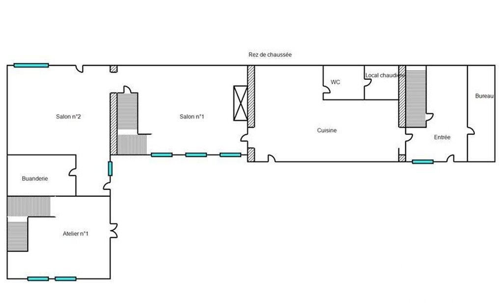
Iad France - Julien Pepe vous propose : Propriété de caractère avec dépendances et immeuble de rapport – Centre-ville de Viarmes Située en plein cOEur de Viarmes, à proximité immédiate des commerces, écoles, golf et de la gare ligne H (Paris Gare du Nord), cette propriété rare offre un ensemble immobilier complet mêlant résidence principale de charme et investissement locatif rentable. La maison principale, de type ancien, développe environ 170 m² habitables, édifiée entre cour et jardin, et bénéficie d’une grange attenante aménageable de 150 m² avec garage, offrant de multiples possibilités d’extension ou de réaménagement. Elle se compose au rez-de-chaussée d’une entrée avec rangements, d’un bureau, d’un WC avec lave-mains, d’un salon avec cheminée et salle à manger, d’une grande cuisine dinatoire, ainsi que d’un salon TV. À l’étage : grande salle d’eau, coin bureau, WC indépendant, une chambre, et une suite parentale avec dressing et salle de bains (douche et baignoire), complétée par une buanderie. L’ensemble offre un fort potentiel d’aménagement, avec la possibilité de créer des chambres et salles de bains supplémentaires dans la grange depuis la maison. À l’extérieur, un jardin privatif d’environ 145 m², à l’abri des regards, complète l’espace de vie. Atout majeur : un bâtiment indépendant à usage locatif, composé de 4 appartements d’environ 50 m² chacun, comprenant une cuisine, une salle de douche et une chambre séparée. Les logements sont actuellement loués, générant une belle rentabilité immédiate, idéale pour un projet patrimonial, familial ou mixte habitation / investissement. Prestations complémentaires : - Double vitrage - Chaudière récente - Emplacement central et recherché - Revenus locatifs existants Un bien unique sur le secteur, alliant cachet de l’ancien, volumes, potentiel d’évolution et rendement locatif. Honoraires d'agence à la charge du vendeur. Information d'affichage énergétique sur ce bien : classe ENERGIE D indice 191 et classe CLIMAT D indice 33. Les informations sur les risques auxquels ce bien est exposé, y compris l'obligation légale de débroussaillement, sont disponibles sur le site Géorisques : http://www.georisques.gouv.fr. La présente annonce immobilière a été rédigée sous la responsabilité éditoriale de M Julien Pepe mandataire indépendant en immobilier (sans détention de fonds), agent commercial de la SAS I@D France immatriculé au RSAC de SEDAN sous le numéro 949408207, titulaire de la carte de démarchage immobilier pour le compte de la société I@D France SAS.
Cette semaine Cette annonce est récente

À proximité

Recherche des commodités à proximité...

Détails de l'annonce

Localisation

Ville
Viarmes
Pays
FR

Diagnostics / Énergie

Diagnostic DPE
191
Diagnostic GES
33

Chauffage et diagnostics

Diagnostic de performance énergétique (DPE)
a
b
c
d
e
f
g
Indice d'émission de gaz à effet de serre (GES)
a
b
c
d
e
f
g
Rappelez-moi