Type
Bien immobilierTarif
335 360 €Chambres
4Salles de bain
0Vente Maison/villa 5 pièces
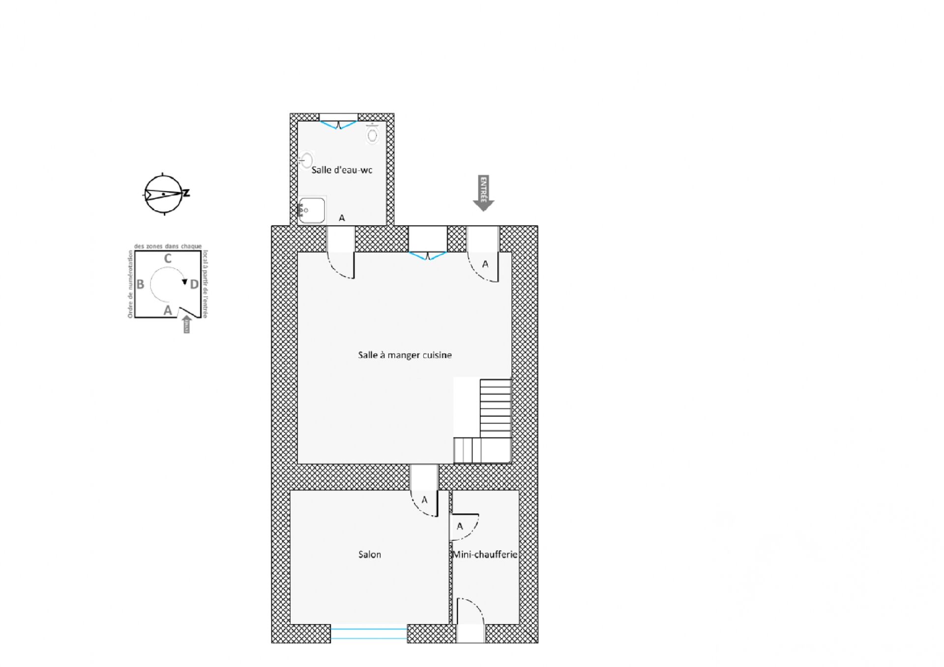
Iad France - Marie-Laure Guinard vous propose : PAIMPOL / TOUTES LES COMMODITÉS À PIED / HABITABLE DE SUITE / CHARMANTE MAISON EN PIERRE / JARDIN CONSTRUCTIBLE DE 800 m² TRÈS AU CALME / QUATRE CHAMBRES / 146 m² UTILES / Je vous présente mon coup de cOEur du mois ! Cette maison de charme (pas si petite, puisqu’elle offre près de 40 m² supplémentaires en surface utile par rapport à la surface habitable annoncée) représente une belle opportunité pour vivre en centre-ville. Dès l’entrée, j’ai été séduite par l’atmosphère chaleureuse qui s’en dégage, ainsi que par le potentiel qu’elle offre. Au rez-de-chaussée se trouvent une pièce de vie avec cuisine et salle à manger, un salon, une salle d’eau ainsi qu’un cellier. À l’étage, vous découvrirez trois chambres, dont une disposant d’un lavabo et de toilettes. Au deuxième étage, une quatrième chambre bénéficie d’une salle d’eau attenante. Un atelier situé dans le jardin vient compléter l’ensemble. À l’arrière de la maison s’étend une magnifique parcelle, avec l’avantage rare d’être en proximité immédiate d’une zone boisée protégée, offrant calme et cadre naturel privilégié. Cette maison conviendra parfaitement aux personnes souhaitant profiter d’une vie quotidienne à pied : une boulangerie, une épicerie et TIBOX se situent à 450 m, la gare à 800 m et une grande zone commerciale à seulement 1 km. Les familles envisageant la construction d’une seconde maison, que ce soit pour un projet locatif ou pour un usage futur, pourront également étudier cette possibilité sur le terrain. Honoraires d'agence à la charge du vendeur. Information d'affichage énergétique sur ce bien : classe ENERGIE D indice 181 et classe CLIMAT D indice 43. Les informations sur les risques auxquels ce bien est exposé, y compris l'obligation légale de débroussaillement, sont disponibles sur le site Géorisques : http://www.georisques.gouv.fr. La présente annonce immobilière a été rédigée sous la responsabilité éditoriale de Mme Marie-Laure Guinard mandataire indépendant en immobilier (sans détention de fonds), agent commercial de la SAS I@D France immatriculé au RSAC de St Brieuc sous le numéro 522979954, titulaire de la carte de démarchage immobilier pour le compte de la société I@D France SAS.
Cette semaine
Cette annonce est récente
À proximité
Recherche des commodités à proximité...
Détails de l'annonce
Localisation
Ville
Paimpol
Pays
FR
Diagnostics / Énergie
Diagnostic DPE
181
Diagnostic GES
43
Surfaces / Pièces / Composition
Nombre d’étages
3
Chauffage et diagnostics
Diagnostic de performance énergétique (DPE)
a
b
c
d
e
f
g
Indice d'émission de gaz à effet de serre (GES)
a
b
c
d
e
f
g
