Type
Bien immobilierTarif
313 500 €Chambres
5Salles de bain
0Vente Longère 9 pièces
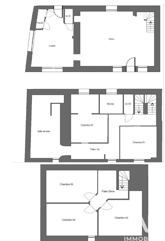
Iad France - Corinne Deleplace vous propose : Dans le LIEU dit la MAUDRENAIS au calme. Cette longère mitoyenne d'un côté attend sa nouvelle famille. Une immense parcelle de plus de 6000 m² vous permet de multiples activités. Garage / Dépendance. Elle se compose comme suit : Voir PLAN. RDC : Grande pièce à vivre avec insert et une porte vitrée donnant sur la terrasse EST. Une cuisine bien agencée et un wc indépendant. Une porte donnant également sur le jardin. ETAGE 1 : un couloir nous dessert une chambre parentale avec espace dressing. Un wc indépendant, une salle de bain. Une chambre. ETAGE 2 : Un palier dessert 3 chambres sous rampant. Cette maison a son propre système d'assainissement par épandage dans le terrain qui fonctionne. Vidange sera faite pour la vente. Ouvertures double vitrage BOIS / PVC. Ballon d'eau chaude 2014. Climatisation AIR / AIR. Travaux à prévoir : Finitions des murs à prévoir. Salle de bain à rénover. Dpe sur demande. Au plaisir d'organiser une visite. Honoraires d'agence à la charge de l'acquéreur. Prix honoraires inclus : 313500 euros. Prix hors honoraires : 299000 euros. Honoraires TTC à la charge de l'acquéreur (4,85% du prix du bien hors honoraires) : 14500 euros. Information d'affichage énergétique sur ce bien : classe ENERGIE D indice 204 et classe CLIMAT B indice 6. Les informations sur les risques auxquels ce bien est exposé, y compris l'obligation légale de débroussaillement, sont disponibles sur le site Géorisques : http://www.georisques.gouv.fr. La présente annonce immobilière a été rédigée sous la responsabilité éditoriale de Mme Corinne Deleplace mandataire indépendant en immobilier (sans détention de fonds), agent commercial de la SAS I@D France immatriculé au RSAC de SAINT NAZAIRE sous le numéro 901632570, titulaire de la carte de démarchage immobilier pour le compte de la société I@D France SAS.
À proximité
Recherche des commodités à proximité...
Détails de l'annonce
Localisation
Ville
Campbon
Pays
FR
Diagnostics / Énergie
Diagnostic DPE
204
Diagnostic GES
6
Finances / Mandat / Références
Honoraires
14 €
Surfaces / Pièces / Composition
Nombre d’étages
3
Chauffage et diagnostics
Diagnostic de performance énergétique (DPE)
a
b
c
d
e
f
g
Indice d'émission de gaz à effet de serre (GES)
a
b
c
d
e
f
g
