Type
Bien immobilierTarif
255 000 €Chambres
2Salles de bain
0Vente Appartement 3 pièces
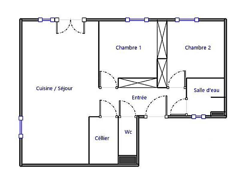
Iad France - Sandrine Grau vous propose : Idéalement situé, très joli T3 lumineux, confortable, fonctionnel, refait avec goût. Situé en rez-de-jardin, vous disposerez d'une cuisine américaine équipée donnant sur un bel espace de vie, 1 cellier, 2 chambres avec dressing, 1 salle d'eau, wc. À l'extérieur, une terrasse vous permettra de profiter des beaux jours. Les + climatisation réversible faible consommation et une place de parking privative. Résidence sécurisée. La presente annonce immobiliere vise 2 lots situés dans une copropriété de 42 lots au total et ne faisant l'objet d'aucune procédure en cours citée à l'article L. 721-1 du code de la construction et de l'habitation. Montant moyen mensuel de charges déclaré par le vendeur : 104.96€ par mois (soit 1259.52 € annuel). Honoraires d'agence à la charge du vendeur. Information d'affichage énergétique sur ce bien : classe ENERGIE C indice 168 et classe CLIMAT A indice 5. Les informations sur les risques auxquels ce bien est exposé, y compris l'obligation légale de débroussaillement, sont disponibles sur le site Géorisques : http://www.georisques.gouv.fr. La présente annonce immobilière a été rédigée sous la responsabilité éditoriale de Mme Sandrine Grau mandataire indépendant en immobilier (sans détention de fonds), agent commercial de la SAS I@D France immatriculé au RSAC de BORDEAUX sous le numéro 349331488, titulaire de la carte de démarchage immobilier pour le compte de la société I@D France SAS.
Ce mois
Cette annonce est récente
À proximité
Recherche des commodités à proximité...
Détails de l'annonce
Localisation
Ville
Marcheprime
Pays
FR
Diagnostics / Énergie
Diagnostic DPE
168
Diagnostic GES
5
Chauffage et diagnostics
Diagnostic de performance énergétique (DPE)
a
b
c
d
e
f
g
Indice d'émission de gaz à effet de serre (GES)
a
b
c
d
e
f
g
