Type
Bien immobilierTarif
297 000 €Chambres
2Salles de bain
0Vente Appartement 3 pièces
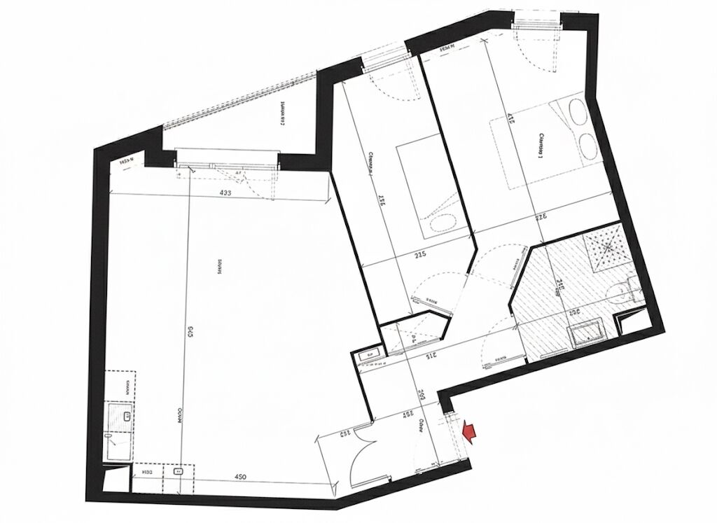
Iad France - Cyril Strady vous propose : VIEUX MASSY – 3 PIÈCES 66 m² – BALCON SUD – RER À PIED Au cOEur du Vieux Massy, dans une résidence récente avec ascenseur, découvrez ce T3 de standing en parfait état. Séjour lumineux de 32 m² avec cuisine ouverte aménagée et équipée, donnant sur un balcon exposé plein sud, sans vis-à-vis et vue sur jardin. Deux chambres au calme et salle d’eau moderne avec WC. * Possibilité d'acquérir une place de parking en sus * Localisation stratégique : À moins de 10 minutes à pied de la gare RER et à proximité immédiate des commerces, des écoles et du centre historique de Massy. Ce bien allie fonctionnalité et confort au pied de toutes les commodités. Contactez-moi dès maintenant pour organiser une visite et découvrir votre futur cocon. Chauffage et eau chaude inclus dans les charges. La presente annonce immobiliere vise 2 lots situés dans une copropriété de 35 lots au total et ne faisant l'objet d'aucune procédure en cours citée à l'article L. 721-1 du code de la construction et de l'habitation. Montant moyen mensuel de charges déclaré par le vendeur : 191€ par mois (soit 2292 € annuel). Honoraires d'agence à la charge du vendeur. Information d'affichage énergétique sur ce bien : classe ENERGIE C indice 79 et classe CLIMAT C indice 14. Les informations sur les risques auxquels ce bien est exposé, y compris l'obligation légale de débroussaillement, sont disponibles sur le site Géorisques : http://www.georisques.gouv.fr. La présente annonce immobilière a été rédigée sous la responsabilité éditoriale de M Cyril Strady mandataire indépendant en immobilier (sans détention de fonds), agent commercial de la SAS I@D France immatriculé au RSAC de NANTERRE sous le numéro 904271822, titulaire de la carte de démarchage immobilier pour le compte de la société I@D France SAS.
Ce mois
Cette annonce est récente
À proximité
Recherche des commodités à proximité...
Détails de l'annonce
Localisation
Ville
Massy
Pays
FR
Diagnostics / Énergie
Diagnostic DPE
79
Diagnostic GES
14
Surfaces / Pièces / Composition
Nombre d’étages
3
Étage
2
Chauffage et diagnostics
Diagnostic de performance énergétique (DPE)
a
b
c
d
e
f
g
Indice d'émission de gaz à effet de serre (GES)
a
b
c
d
e
f
g
