Vente Appartement 2 pièces
Type
Bien immobilierTarif
139 000 €Chambres
1Salles de bain
0Vente Appartement 2 pièces
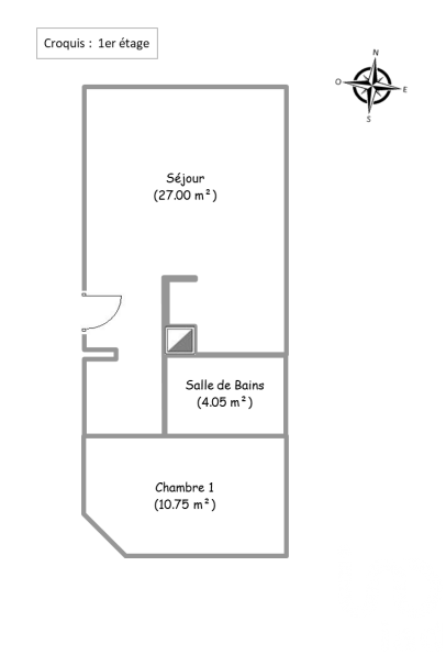
Iad France - Élodie Raoult vous propose : Appartement Charmant et Lumineux - Idéal pour Premier Achat ou Investissement Locatif ! Découvrez ce ravissant appartement situé en plein cOEur de Mantes-la-Jolie. Niché au premier étage d'une résidence sécurisée datant de 1998, cet appartement de type F2 vous séduira par son ambiance chaleureuse et son agencement pratique. L'espace de vie se compose d'un séjour lumineux avec kitchenette, d'une chambre confortable et d'une salle de bain avec toilette. Grâce à son exposition est, vous profiterez d'une belle luminosité tout au long de la journée. Les plus : Chaudière gaz à condensation de 2023 / DPE C Rénovation de l'appt en 2023 Grand parking en sous-sol boxable faibles charges Vous apprécierez la présence de la fibre optique, de l'ascenseur, du digicode, de l'interphone et du parking sécurisé. Situé à proximité de toutes les commodités (commerces, écoles, transports en commun), cet appartement est idéalement placé pour faciliter votre quotidien. Avec un accès facile aux axes routiers et aux services essentiels, vous profiterez d'une qualité de vie incomparable. Que vous soyez à la recherche d'une première acquisition ou d'un investissement locatif, cet appartement représente une opportunité unique à ne pas manquer. Ne tardez pas à planifier une visite pour découvrir ce petit bijou immobilier à Mantes-la-Jolie. Contactez-moi dès aujourd'hui pour plus d'informations ou pour organiser une visite ! La presente annonce immobiliere vise 2 lots situés dans une copropriété de 62 lots au total et ne faisant l'objet d'aucune procédure en cours citée à l'article L. 721-1 du code de la construction et de l'habitation. Montant moyen mensuel de charges déclaré par le vendeur : 85.91€ par mois (soit 1030.92 € annuel). Honoraires d'agence à la charge du vendeur. Information d'affichage énergétique sur ce bien : classe ENERGIE C indice 123 et classe CLIMAT C indice 22. Les informations sur les risques auxquels ce bien est exposé, y compris l'obligation légale de débroussaillement, sont disponibles sur le site Géorisques : http://www.georisques.gouv.fr. La présente annonce immobilière a été rédigée sous la responsabilité éditoriale de Mme Élodie Raoult mandataire indépendant en immobilier (sans détention de fonds), agent commercial de la SAS I@D France immatriculé au RSAC de VERSAILLES sous le numéro 799190376, titulaire de la carte de démarchage immobilier pour le compte de la société I@D France SAS.
Détails de l'annonce
Localisation
Ville
Mantes la Jolie
Pays
FR
Diagnostics / Énergie
Diagnostic DPE
123
Diagnostic GES
22
Surfaces / Pièces / Composition
Nombre d’étages
3
Chauffage et diagnostics
Diagnostic de performance énergétique (DPE)
a
b
c
d
e
f
g
Indice d'émission de gaz à effet de serre (GES)
a
b
c
d
e
f
g
