Trouver...

Language: FR

Devise: EUR

Vente Appartement 4 pièces

Publié le 15 January 2026
Type
Bien immobilier
Tarif
219 000 €
Chambres
3
Salles de bain
0

Vente Appartement 4 pièces

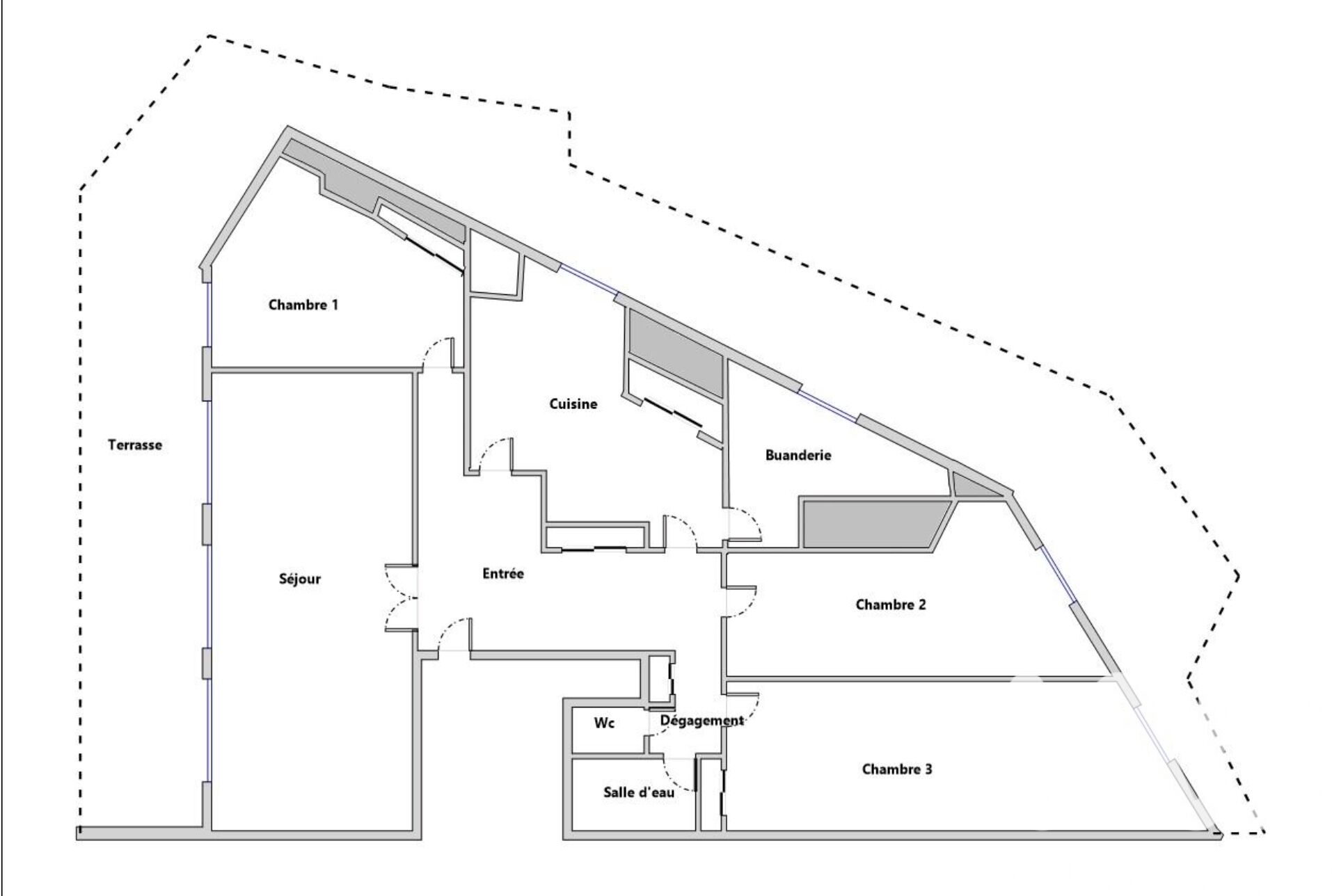
Iad France - Messaouda GATELLIER vous propose : Appartement Spacieux 107 m², soit 4 PIÈCES avec TERRASSE Vue Imprenable - MELUN rive de seine avec BOX et CAVE - A 8 mn à pied de la Gare de MELUN ! Situé au DERNIER ÉTAGE d'un immeuble de 7 étages, AVEC ASCENSEUR, un POTENTIEL incroyable pour les amoureux de grands espaces et de projets de rénovation. Avec 3 chambres spacieuses 13,13 et 12 m², une salle d'eau, un WC indépendant, une cuisine séparée, un séjour lumineux de 28 m² et une TERRASSE de 105 m² offrant une vue imprenable sur la ville, cet appartement est idéal pour créer un espace de vie unique et personnalisé. À RÉNOVER, cet appartement vous offre la liberté de laisser libre cours à votre imagination et de transformer cet espace en un véritable bijou au cOEur de Melun. Avec une exposition Sud-Ouest, la luminosité est au rendez-vous tout au long de la journée, offrant un environnement chaleureux et accueillant. Les avantages de cet appartement ne s'arrêtent pas là. Situé dans une résidence sécurisée avec interphone et porte blindée, vous pourrez profiter d'un cadre de vie tranquille et sécurisé. De plus, le chauffage et l'eau offrant un confort thermique optimal sont compris dans les charges. Pour compléter ce bien, une CAVE est disponible pour le rangement. Un BOX fermé au sous-sol est également inclus, offrant une solution pratique pour stationner votre véhicule en toute sécurité. Ne manquez pas l'opportunité de transformer cet appartement spacieux en un espace unique qui reflète votre style et vos besoins. Contactez-moi dès aujourd'hui pour organiser une visite et laissez-vous inspirer par le potentiel de ce bien exceptionnel. La presente annonce immobiliere vise 3 lots situés dans une copropriété de 66 lots au total et ne faisant l'objet d'aucune procédure en cours citée à l'article L. 721-1 du code de la construction et de l'habitation. Montant moyen mensuel de charges déclaré par le vendeur : 500€ par mois (soit 6000 € annuel). Honoraires d'agence à la charge du vendeur. Information d'affichage énergétique sur ce bien : classe ENERGIE E indice 268 et classe CLIMAT E indice 59. Les informations sur les risques auxquels ce bien est exposé, y compris l'obligation légale de débroussaillement, sont disponibles sur le site Géorisques : http://www.georisques.gouv.fr. La présente annonce immobilière a été rédigée sous la responsabilité éditoriale de Mme Messaouda GATELLIER mandataire indépendant en immobilier (sans détention de fonds), agent commercial de la SAS I@D France immatriculé au RSAC de MELUN sous le numéro 879067841, titulaire de la carte de démarchage immobilier pour le compte de la société I@D France SAS.
Ce mois Cette annonce est récente

À proximité

Recherche des commodités à proximité...

Détails de l'annonce

Localisation

Ville
Melun
Pays
FR

Diagnostics / Énergie

Diagnostic DPE
268
Diagnostic GES
59

Surfaces / Pièces / Composition

Nombre d’étages
7
Étage
7

Chauffage et diagnostics

Diagnostic de performance énergétique (DPE)
a
b
c
d
e
f
g
Indice d'émission de gaz à effet de serre (GES)
a
b
c
d
e
f
g
Rappelez-moi