Type
Bien immobilierTarif
325 000 €Chambres
2Salles de bain
0Vente Appartement 3 pièces
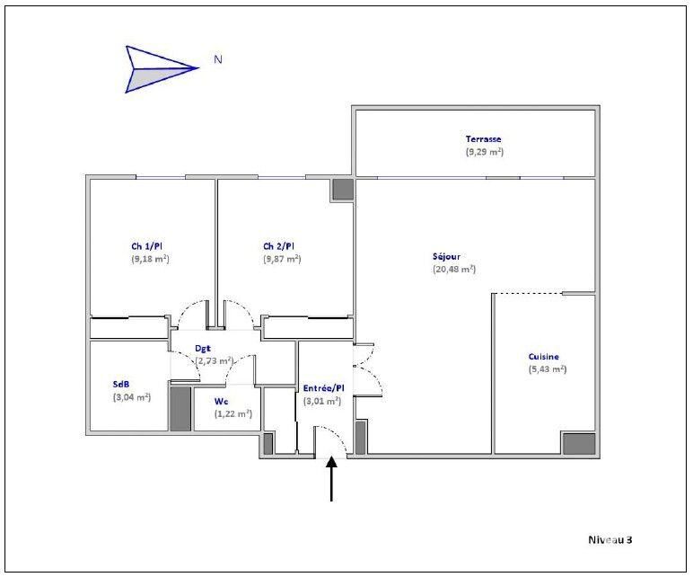
Iad France - Muriel Noguera vous propose : NOUVEAUTÉ À PORT-VENDRES ! Par Muriel NOGUERA Superbe appartement 3 faces avec ascenseur– Vue exceptionnelle sur le port et la mer – d'une surface de 68 m² avec terrasse – Place de parking- Cave- Garage. Un appartement T3 d'une surface de 68 m² cosy et élégant, offrant un cadre de vie privilégié entre mer et village., il conviendra parfaitement pour une résidence principale, un pied-à-terre ou un investissement locatif. Dès l’entrée, vous serez séduit par une belle pièce de vie lumineuse d'une surface de 28 m² avec cuisine ouverte, donnant accès à une belle terrasse de 14 m² permettant de profiter d’une vue sur le port et la mer, idéale pour des moments de détente face au paysage méditerranéen. L'appartement comprend également une cabine (espace nuit), une salle d'eau et un wc indépendant. À l'étage une mezzanine pleine de charme de 25 m² apporte un espace supplémentaire à aménager selon vos envies : coin lecture, bureau ou espace nuit. La résidence dispose d’un ascenseur, offrant un confort appréciable au quotidien. Ce bien est complété par une cave, une place de parking et un garage. Situé à 5 minutes à pied des commerces, des écoles, de la salle de sport, des transports en commun, et à 15 minutes des plages pour une vie quotidienne facilitée. Contactez-moi pour organiser une visite et découvrir votre futur nid douillet ! La presente annonce immobiliere vise 4 lots situés dans une copropriété de 23 lots au total et ne faisant l'objet d'aucune procédure en cours citée à l'article L. 721-1 du code de la construction et de l'habitation. Montant moyen mensuel de charges déclaré par le vendeur : 83€ par mois (soit 996 € annuel). Honoraires d'agence à la charge du vendeur. Information d'affichage énergétique sur ce bien : classe ENERGIE C indice 170 et classe CLIMAT A indice 5. Les informations sur les risques auxquels ce bien est exposé, y compris l'obligation légale de débroussaillement, sont disponibles sur le site Géorisques : http://www.georisques.gouv.fr. La présente annonce immobilière a été rédigée sous la responsabilité éditoriale de Mme Muriel Noguera mandataire indépendant en immobilier (sans détention de fonds), agent commercial de la SAS I@D France immatriculé au RSAC de PERPIGNAN sous le numéro 901760330, titulaire de la carte de démarchage immobilier pour le compte de la société I@D France SAS.
Cette semaine
Cette annonce est récente
À proximité
Recherche des commodités à proximité...
Détails de l'annonce
Localisation
Ville
Port-Vendres
Pays
FR
Diagnostics / Énergie
Diagnostic DPE
170
Diagnostic GES
5
Surfaces / Pièces / Composition
Nombre d’étages
3
Étage
3
Chauffage et diagnostics
Diagnostic de performance énergétique (DPE)
a
b
c
d
e
f
g
Indice d'émission de gaz à effet de serre (GES)
a
b
c
d
e
f
g
