Type
Bien immobilierTarif
228 000 €Chambres
2Salles de bain
0Vente Maison de campagne 5 pièces
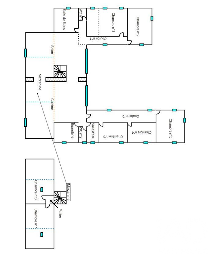
Iad France - Hugo Wartel vous propose : LONGERE EN PLAIN-PIED DE 125 m² Venez découvrir cette magnifique longère de caractère de 125 m² bâtie sur une parcelle de 695 m² dans le beau et paisible village de Chériennes. Vous découvrirez à l'intérieur : Une entrée desservant sur un salon / séjour spacieux et lumineux avec son poêle à bois. Une magnifique véranda donnant accès sur le jardin où calme et relaxation sont les maitres mots. Une cuisine équipée. Un bureau. Une salle de bain spacieuse et une salle d'eau pour répondre à vos besoins. À l'extérieur : Un magnifique jardin arboré et entièrement clos. Une terrasse bien exposée. Un grand atelier. Un garage attenant à la maison. Les + de cette longère : - DPE en D - 2 poêles à bois et une pompe à chaleur de 2019. - Double vitrage PVC (menuiseries de 2020) - Potentiel de rajouter des pièces à la maison et du M2 avec les combles qui sont isolés et aménageables sur toute la longueur de la longère. - Fosse sceptique reprise il y a un an. - Secteur recherché à la campagne, proche de la cote d'Opale et de la baie de Somme. - Plain-pied - Faible taxe foncière Prix : 228 000€ HAI N'ATTENDEZ-PLUS, UNE VISITE S'IMPOSE ! Honoraires d'agence à la charge du vendeur. Information d'affichage énergétique sur ce bien : classe ENERGIE D indice 234 et classe CLIMAT B indice 7. Les informations sur les risques auxquels ce bien est exposé, y compris l'obligation légale de débroussaillement, sont disponibles sur le site Géorisques : http://www.georisques.gouv.fr. La présente annonce immobilière a été rédigée sous la responsabilité éditoriale de M Hugo Wartel mandataire indépendant en immobilier (sans détention de fonds), agent commercial de la SAS I@D France immatriculé au RSAC de ARRAS sous le numéro 929064053, titulaire de la carte de démarchage immobilier pour le compte de la société I@D France SAS.
À proximité
Recherche des commodités à proximité...
Détails de l'annonce
Localisation
Ville
Chériennes
Pays
FR
Diagnostics / Énergie
Diagnostic DPE
234
Diagnostic GES
7
Chauffage et diagnostics
Diagnostic de performance énergétique (DPE)
a
b
c
d
e
f
g
Indice d'émission de gaz à effet de serre (GES)
a
b
c
d
e
f
g
