Vente Maison traditionnelle 9 pièces
Type
Bien immobilierTarif
980 000 €Chambres
4Salles de bain
0Vente Maison traditionnelle 9 pièces
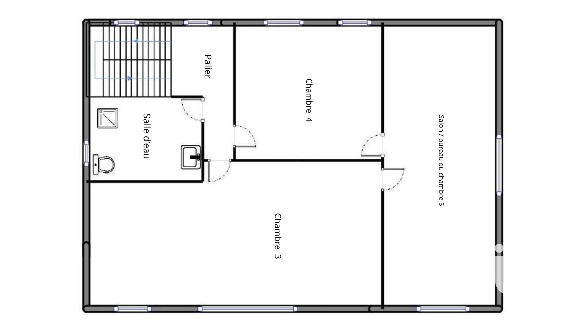
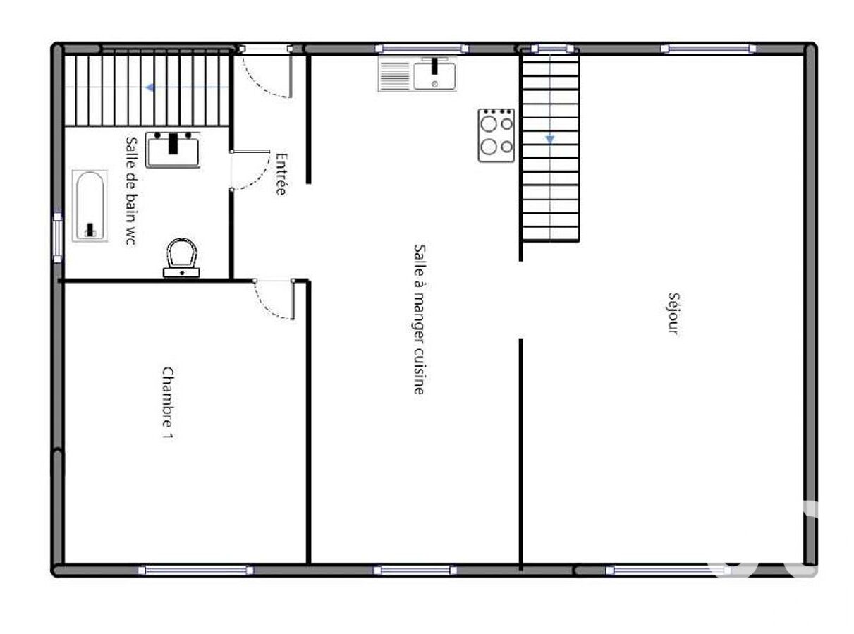
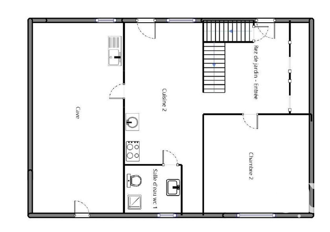
Iad France - Evelyne Laurent vous propose : Quartier Jardin Parisien - Maison familiale NON mitoyenne avec de beaux volumes et une belle d'hauteur sous plafond 2,80 m avec pompe à chaleur et panneaux solaire. Construite sur 3 niveaux, l'habitation principale se fait au niveau du 1er étage accessible par un escalier extérieur avec une terrasse, le rez-de-chaussée a un accès privatif avec chambre, espace de rangement, salle d'eau et cuisine d'été. À cet étage une cuisine généreuse suivi d'un double séjour d'environ nous donne un bel espace d'environ 46 m² traversant ce qui apporte une lumière naturelle toute la journée de par son orientation sud-ouest, parquet d'origine au sol. Une chambre qui donne sur jardin ainsi qu'une salle de bain complète cet étage. À 1er, un palier dessert 3 chambres dont 2 vaste de 20 m² ainsi qu'une salle d'eau. La 3ème chambre actuellement aménagé en salon / bureau est mansardée avec des rangement sous pente. Au rez-de-jardin en plus de son espace privatif, se trouve l'espace buanderie / chaufferie / cave. Le jardin est ensoleillé toute la journée par sa belle exposition est / ouest, fleuri, arboré et potager. 2 places de stationnement sur le terrain, cabanon et terrasse. À proximité des commerces, transport et centre hospitalier. Tram T10 / T6 - Bus 290,390, 190,189, 295 entre 2 et 10 mn à pied. À proximité de la Forêt Clamart / Meudon accès au centre ville en 10 mn par le bois. Plus de photos et de renseignements ? n'hésitez pas à me téléphoner. Honoraires d'agence à la charge du vendeur. Information d'affichage énergétique sur ce bien : classe ENERGIE B indice 102 et classe CLIMAT A indice 3. Les informations sur les risques auxquels ce bien est exposé, y compris l'obligation légale de débroussaillement, sont disponibles sur le site Géorisques : http://www.georisques.gouv.fr. La présente annonce immobilière a été rédigée sous la responsabilité éditoriale de Mme Evelyne Laurent mandataire indépendant en immobilier (sans détention de fonds), agent commercial de la SAS I@D France immatriculé au RSAC de NANTERRE sous le numéro 513262246, titulaire de la carte de démarchage immobilier pour le compte de la société I@D France SAS.
Détails de l'annonce
Localisation
Ville
Clamart
Pays
FR
Diagnostics / Énergie
Diagnostic DPE
102
Diagnostic GES
3
Surfaces / Pièces / Composition
Nombre d’étages
3
Chauffage et diagnostics
Diagnostic de performance énergétique (DPE)
a
b
c
d
e
f
g
Indice d'émission de gaz à effet de serre (GES)
a
b
c
d
e
f
g
