Type
Bien immobilierTarif
399 000 €Chambres
3Salles de bain
0Vente Maison d'architecte 4 pièces
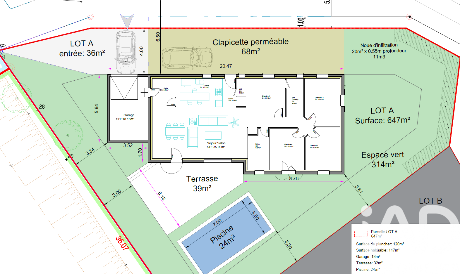
Iad France - Pascal Metivier vous propose : Sublime maison d'architecte - Llauro commune situé entre Céret et Thuir ! Située dans un cadre naturel préservé, cette magnifique maison d'architecte d'environ 145 m² offre un design contemporain et des prestations de haute qualité pour un confort de vie optimal. Avec ses 3 chambres spacieuses, son jardin arboré de 822 m² et sa piscine privative, elle constitue un véritable havre de paix à Llauro avec une vue exceptionnelle. Au rez-de-jardin, vous découvrirez un vaste espace de vie comprenant un salon lumineux avec son plafond type cathédrale, une cuisine séparée, meublée équipée attenante à son cellier. Les grandes baies vitrées de la pièce de vie offrent une vue panoramique sur le jardin et la terrasse, idéal pour profiter des beaux jours ensoleillés. Un dégagement menant à une suite parentale avec sa salle d'eau, un WC séparé et un accès au niveau inférieur au garage par l'intérieur de la maison. À l'étage une vue plongeante sur l'espace de vie, deux chambres, un dressing, une salle d'eau complètent l'aménagement fonctionnel de la maison. L'extérieur est également un véritable atout avec son jardin paysager, sa piscine, sa terrasse ensoleillée orientée sud-ouest et son garage pour abriter votre véhicule en toute sécurité. Construite en 2005, cette maison est en excellent état et ne nécessite aucun travaux. Elle est équipée d'un système de chauffage individuel alliant confort et économies d'énergie, avec une distribution par chauffage mural et un insert à bois design. Llauro, commune prisée pour son cadre de vie paisible et sa proximité avec la nature, offre un environnement idéal pour les amoureux de la tranquillité et des activités en plein air. Ne manquez pas l'occasion de visiter cette perle rare aux prestations haut de gamme, un véritable coup de cOEur assuré ! Honoraires d'agence à la charge du vendeur. Information d'affichage énergétique sur ce bien : classe ENERGIE E indice 260 et classe CLIMAT B indice 8. Les informations sur les risques auxquels ce bien est exposé, y compris l'obligation légale de débroussaillement, sont disponibles sur le site Géorisques : http://www.georisques.gouv.fr. La présente annonce immobilière a été rédigée sous la responsabilité éditoriale de M Pascal Metivier mandataire indépendant en immobilier (sans détention de fonds), agent commercial de la SAS I@D France immatriculé au RSAC de PERPIGNAN sous le numéro 883447641, titulaire de la carte de démarchage immobilier pour le compte de la société I@D France SAS.
À proximité
Recherche des commodités à proximité...
Détails de l'annonce
Localisation
Ville
Llauro
Pays
FR
Diagnostics / Énergie
Diagnostic DPE
222
Diagnostic GES
8
Chauffage et diagnostics
Diagnostic de performance énergétique (DPE)
a
b
c
d
e
f
g
Indice d'émission de gaz à effet de serre (GES)
a
b
c
d
e
f
g
