Type
Bien immobilierTarif
259 000 €Chambres
2Salles de bain
0Vente Maison/villa 4 pièces
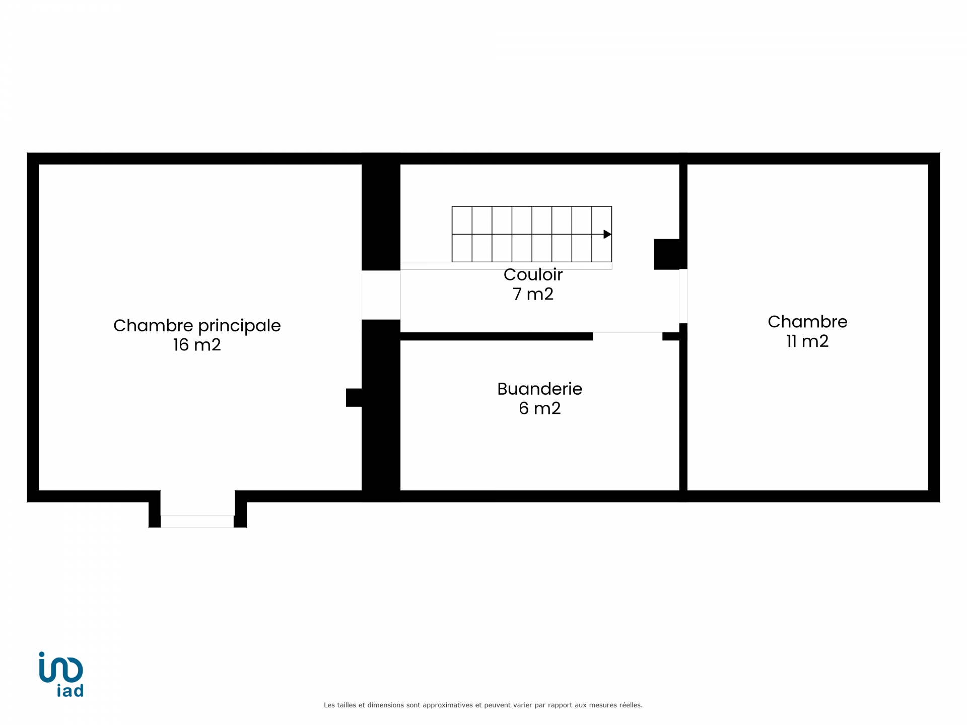
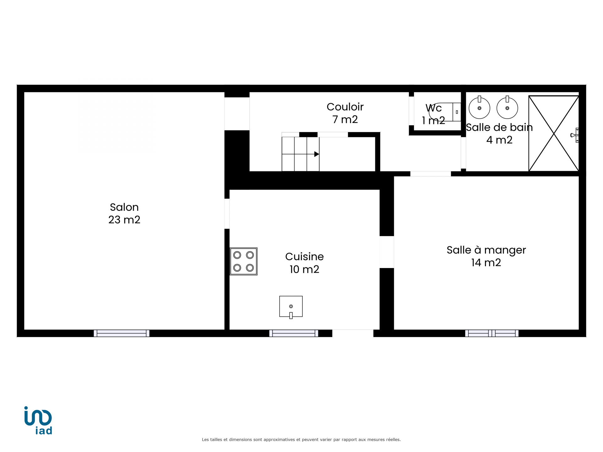
Iad France - Sandrine Leblond vous propose : En plein centre de Gambais, cette charmante maison de 95 m², dotée de 2 chambres spacieuses, offre un espace de vie confortable pour une famille monoparentale ou un couple d'amoureux du charme de l'ancien. Les pièces sont lumineuses et chaleureuses, créant une atmosphère accueillante et conviviale. Le rez-de-chaussée accueille le cOEur de la maison avec la cuisine, la salle à manger ou chambre de plain-pied, et le salon, la salle d'eau avec douche à l'italienne, WC indépendants, tandis que l'étage abrite les chambres et une pièce complémentaire pouvant servir de buanderie. Chaque espace a été pensé pour offrir fonctionnalité et confort au quotidien. Décoration au goût du jour, présence de la fibre optique, assainissement au tout à l’égout, pompe à chaleur et ballon thermodynamique (installé en 2020) garantissent un cadre de vie moderne et agréable. Côté extérieur, la maison s'ouvre sur une terrasse exposé au sud-ouest, offrant un espace extérieur où il fait bon se détendre et profiter des rayons du soleil et deux places de parking. La situation est idéale : proche des écoles maternelle et primaire ainsi, des commerces locaux et de la forêt domaniale de Rambouillet, base de loisirs des Etangs de Hollande à 15 min. La gare de Houdan est également facilement accessible en seulement 10 minutes en voiture, facilitant les déplacements quotidiens, accès RN12 à 5 min pour rejoindre Paris. Le + : Cette maison est un véritable coup de cOEur pour les amateurs de cachet traditionnel sans être isolé. Ne manquez pas l'opportunité de visiter ce petit cocon. Honoraires d'agence à la charge du vendeur. Information d'affichage énergétique sur ce bien : classe ENERGIE C indice 140 et classe CLIMAT A indice 4. Les informations sur les risques auxquels ce bien est exposé, y compris l'obligation légale de débroussaillement, sont disponibles sur le site Géorisques : http://www.georisques.gouv.fr. La présente annonce immobilière a été rédigée sous la responsabilité éditoriale de Mme Sandrine Leblond mandataire indépendant en immobilier (sans détention de fonds), agent commercial de la SAS I@D France immatriculé au RSAC de Chartres sous le numéro 907527949, titulaire de la carte de démarchage immobilier pour le compte de la société I@D France SAS.
Ce mois
Cette annonce est récente
À proximité
Recherche des commodités à proximité...
Détails de l'annonce
Localisation
Ville
Gambais
Pays
FR
Diagnostics / Énergie
Diagnostic DPE
140
Diagnostic GES
4
Chauffage et diagnostics
Diagnostic de performance énergétique (DPE)
a
b
c
d
e
f
g
Indice d'émission de gaz à effet de serre (GES)
a
b
c
d
e
f
g
