Trouver...

Language: FR

Devise: EUR

Vente Maison traditionnelle 8 pièces

Publié le 28 March 2026
Type
Bien immobilier
Tarif
465 000 €
Chambres
4
Salles de bain
0

Vente Maison traditionnelle 8 pièces

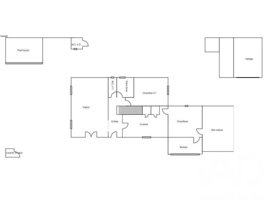
Iad France - Emmanuelle Mansier vous propose : Colmar - Quartier Mittelharth Vous recherchez une maison familiale avec plusieurs espaces de vie spacieux ? Cette maison d’environ 186 m² habitables propose une configuration rare, idéale pour s’adapter aux différents rythmes de vie d’une famille. Au rez-de-chaussée, vous découvrez : - un premier espace avec salon, salle à manger et cuisine ouverte - un second double séjour indépendant dont une partie agrémentée d'une véranda et avec accès à la terrasse et au jardin - une chambre ainsi qu’un WC séparé complètent ce niveau. À l’étage : - 3 chambres - une salle d’eau aménagée avec douche à l’italienne et double vasque - un WC indépendant La maison dispose également d’un sous-sol complet avec un spacieux garage et une buanderie, ainsi que d’un grenier aménageable offrant un potentiel d’évolution. À l’extérieur, vous profitez d’un terrain de 5,92 ares avec terrasse et piscine hors sol. Située dans le quartier recherché de la Mittelharth, la maison profite d’un environnement résidentiel calme, tout en restant proche de la place Saint-Joseph, des commerces, des écoles, du centre de Colmar et du contournement permettant un accès rapide vers les villages alentours, les vallées de Kaysersberg et de Munster, Strasbourg ou Mulhouse. Une maison pensée pour ceux qui souhaitent vivre ensemble… sans être les uns sur les autres. Contactez-moi pour plus d’informations ou pour organiser une visite. Honoraires d'agence à la charge de l'acquéreur. Prix honoraires inclus : 465000 euros. Prix hors honoraires : 445000 euros. Honoraires TTC à la charge de l'acquéreur (4,49% du prix du bien hors honoraires) : 20000 euros. Information d'affichage énergétique sur ce bien : classe ENERGIE D indice 245 et classe CLIMAT D indice 34. Les informations sur les risques auxquels ce bien est exposé, y compris l'obligation légale de débroussaillement, sont disponibles sur le site Géorisques : http://www.georisques.gouv.fr. La présente annonce immobilière a été rédigée sous la responsabilité éditoriale de Mme Emmanuelle Mansier mandataire indépendant en immobilier (sans détention de fonds), agent commercial de la SAS I@D France immatriculé au RSAC de COLMAR sous le numéro 851839605, titulaire de la carte de démarchage immobilier pour le compte de la société I@D France SAS.

À proximité

Recherche des commodités à proximité...

Détails de l'annonce

Localisation

Ville
Colmar
Pays
FR

Diagnostics / Énergie

Diagnostic DPE
245
Diagnostic GES
34

Finances / Mandat / Références

Honoraires
20 €

Surfaces / Pièces / Composition

Nombre d’étages
2

Chauffage et diagnostics

Diagnostic de performance énergétique (DPE)
a
b
c
d
e
f
g
Indice d'émission de gaz à effet de serre (GES)
a
b
c
d
e
f
g
Rappelez-moi