Type
Bien immobilierTarif
415 000 €Chambres
3Salles de bain
0Vente Appartement 5 pièces
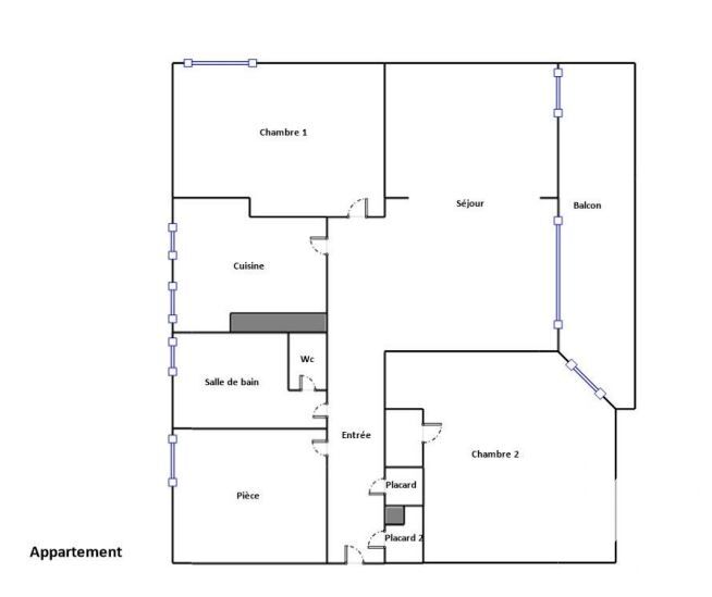
Iad France - Jiwon Jung vous propose : Appartement traversant 4 Pièces | 78,82 m² | Lumineux & Rénové Au cOEur du quartier prisé de Croix Bosset, découvrez ce 4-5 pièces au fort potentiel, situé au 1er étage avec ascenseur d'une copropriété de standing avec gardien. État : Fraîchement rénové (peintures, sols, salle d'eau), prêt à emménager. Luminosité : Double séjour baigné de lumière (exposition Sud-Nord). Espace : 2 chambres spacieuses + 1 bureau (ou 3ème chambre). Cuisine : Indépendante, à personnaliser selon vos goûts. Confort : Douche à l'italienne moderne, WC séparé, fibre optique. Annexes : Cave incluse + parking commun sécurisé. Vivez à deux pas des commerces, des transports et des meilleures écoles de Sèvres dans un cadre calme et résidentiel. * Visite virtuelle sur demande. La presente annonce immobiliere vise 2 lots situés dans une copropriété de 70 lots au total et ne faisant l'objet d'aucune procédure en cours citée à l'article L. 721-1 du code de la construction et de l'habitation. Montant moyen mensuel de charges déclaré par le vendeur : 438.33€ par mois (soit 5260 € annuel). Honoraires d'agence à la charge du vendeur. Information d'affichage énergétique sur ce bien : classe ENERGIE E indice 305 et classe CLIMAT E indice 59. Les informations sur les risques auxquels ce bien est exposé, y compris l'obligation légale de débroussaillement, sont disponibles sur le site Géorisques : http://www.georisques.gouv.fr. La présente annonce immobilière a été rédigée sous la responsabilité éditoriale de Mme Jiwon Jung mandataire indépendant en immobilier (sans détention de fonds), agent commercial de la SAS I@D France immatriculé au RSAC de Meaux sous le numéro 494303100, titulaire de la carte de démarchage immobilier pour le compte de la société I@D France SAS.
Cette semaine
Cette annonce est récente
À proximité
Recherche des commodités à proximité...
Détails de l'annonce
Localisation
Ville
Sèvres
Pays
FR
Diagnostics / Énergie
Diagnostic DPE
305
Diagnostic GES
59
Surfaces / Pièces / Composition
Nombre d’étages
10
Chauffage et diagnostics
Diagnostic de performance énergétique (DPE)
a
b
c
d
e
f
g
Indice d'émission de gaz à effet de serre (GES)
a
b
c
d
e
f
g
