Type
Bien immobilierTarif
149 900 €Chambres
1Salles de bain
0Vente Appartement 2 pièces
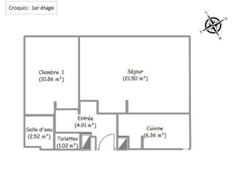
Iad France - Élodie Raoult vous propose : Appartement Lumineux avec Balcon et Parking. Découvrez ce charmant appartement de 2 pièces situé au sein d'une résidence sécurisée. Cet appartement offre un cadre de vie agréable et confortable. Dès l'entrée, vous serez séduit par l'agencement harmonieux de cet appartement. La pièce de vie principale se compose d'un salon spacieux et lumineux, idéal pour se détendre en famille ou entre amis. La cuisine aménagée offre un espace convivial pour préparer de délicieux repas. Vous pourrez également profiter du balcon. Côté nuit, une chambre accueillante et une salle d'eau fonctionnelle viennent parfaire ce cocon douillet. Les toilettes séparées offrent un confort supplémentaire. L'appartement bénéficie d'une exposition sud, assurant une belle luminosité tout au long de la journée. La résidence, dotée d'un ascenseur et d'un digicode, garantit une sécurité optimale pour ses résidents. La présence de la fibre optique assure une connexion internet rapide et fiable. En termes d'emplacement, vous profiterez d'une situation idéale à proximité de la gare (à 10 min à pied), d'une boulangerie, d'un arrêt de bus et du bus express A14. Le centre-ville, le cinéma et les commerces sont facilement accessibles à pied ou en voiture. Un parking privatif est inclus pour stationner en toute tranquillité. Ne manquez pas cette opportunité unique d'acquérir un appartement confortable dans un quartier dynamique de Mantes-la-Jolie. Contactez-nous pour organiser une visite dès maintenant. La presente annonce immobiliere vise 2 lots situés dans une copropriété de 121 lots au total et ne faisant l'objet d'aucune procédure en cours citée à l'article L. 721-1 du code de la construction et de l'habitation. Montant moyen mensuel de charges déclaré par le vendeur : 107.52€ par mois (soit 1290.24 € annuel). Honoraires d'agence à la charge du vendeur. Information d'affichage énergétique sur ce bien : classe ENERGIE C indice 149 et classe CLIMAT A indice 4. Les informations sur les risques auxquels ce bien est exposé, y compris l'obligation légale de débroussaillement, sont disponibles sur le site Géorisques : http://www.georisques.gouv.fr. La présente annonce immobilière a été rédigée sous la responsabilité éditoriale de Mme Élodie Raoult mandataire indépendant en immobilier (sans détention de fonds), agent commercial de la SAS I@D France immatriculé au RSAC de VERSAILLES sous le numéro 799190376, titulaire de la carte de démarchage immobilier pour le compte de la société I@D France SAS.
Ce mois
Cette annonce est récente
À proximité
Recherche des commodités à proximité...
Détails de l'annonce
Localisation
Ville
Mantes-la-Jolie
Pays
FR
Diagnostics / Énergie
Diagnostic DPE
123
Diagnostic GES
4
Surfaces / Pièces / Composition
Nombre d’étages
4
Chauffage et diagnostics
Diagnostic de performance énergétique (DPE)
a
b
c
d
e
f
g
Indice d'émission de gaz à effet de serre (GES)
a
b
c
d
e
f
g
