Type
Bien immobilierTarif
65 000 €Chambres
1Salles de bain
0Vente Appartement 2 pièces
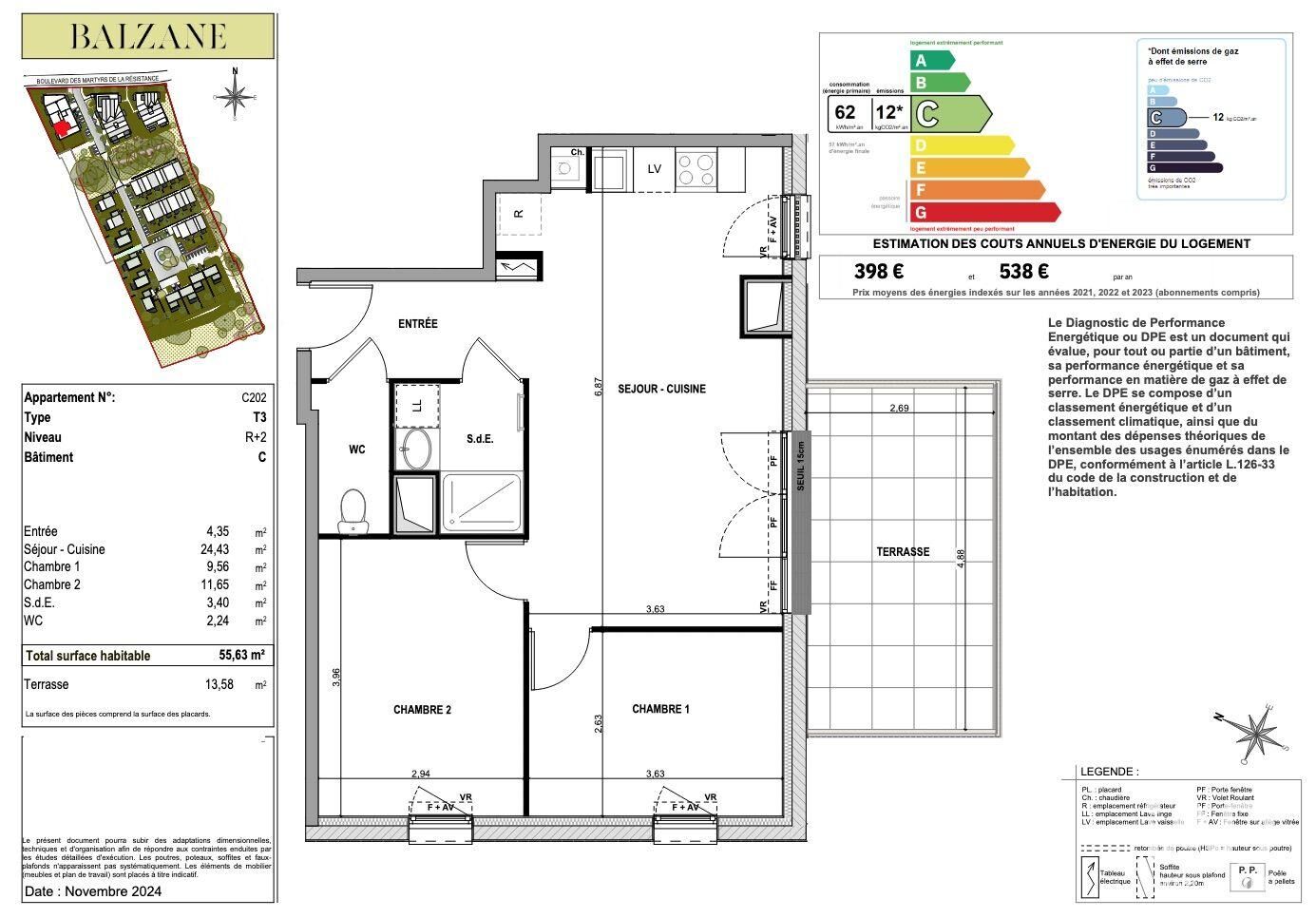
Iad France - Julie Nuttens (06 50 64 90 78) vous propose : INVESTISEURS APPARTEMENT VENDU LOUE Venez découvrir cet appartement dans une résidence sécurisée vous y découvrirez une belle pièce de vie avec un coin cuisine, une chambre et une salle de bain avec baignoire. Une place parking vient compéter ce lot La présente annonce immobilière vise 1 lot principal situé dans une copropriété formant 26 lots au total ne faisant l'objet d'aucune procédure en cours et d'un montant de charges d’environ 78 € par mois (soit 936 € annuel) déclaré par le vendeur. Honoraires d’agence à la charge du vendeur. Information d'affichage énergétique sur ce bien : classe ENERGIE C indice 117 et classe CLIMAT C indice 22. Les informations sur les risques auxquels ce bien est exposé sont disponibles sur le site Géorisques : www.georisques.gouv.fr. La présente annonce immobilière a été rédigée sous la responsabilité éditoriale de Mlle Julie Nuttens EI (ID 71100), mandataire indépendant en immobilier (sans détention de fonds), agent commercial de la SAS I@D France immatriculé au RSAC de Rouen sous le numéro 918829441, titulaire de la carte de démarchage immobilier pour le compte de la société I@D France SAS. Le présent bien est commercialisé dans le cadre d'une délégation de mandat. Retrouvez tous nos biens sur notre site internet. www.iadfrance.fr.
Ce mois
Cette annonce est récente
À proximité
Recherche des commodités à proximité...
Détails de l'annonce
Localisation
Ville
Grand-Couronne
Pays
FR
Diagnostics / Énergie
Diagnostic DPE
117
Diagnostic GES
22
Surfaces / Pièces / Composition
Nombre d’étages
Chauffage et diagnostics
Diagnostic de performance énergétique (DPE)
a
b
c
d
e
f
g
Indice d'émission de gaz à effet de serre (GES)
a
b
c
d
e
f
g
