Type
Bien immobilierTarif
175 500 €Chambres
1Salles de bain
0Vente Souplex 2 pièces
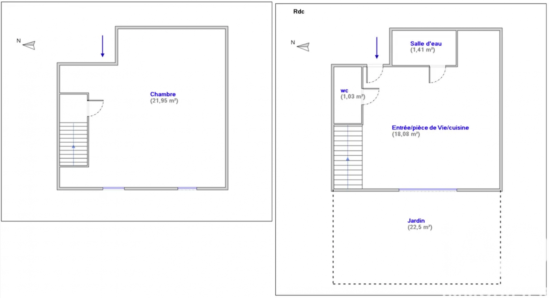
Iad France - Ike Georges A Crine vous propose : Souplex T2 de 42 m² avec jardin – Les Pavillons-sous-Bois Situé dans un quartier pavillonnaire calme et recherché de Pavillons-sous-Bois, ce charmant rez-de-jardin de 42 m² offre un cadre de vie agréable et fonctionnel et se compose d’un séjour lumineux avec coin cuisine, d'une salle d’eau et de WC séparés. Au sous-sol, vous trouverez une spacieuse chambre de 22 m² avec rangements. À l’extérieur, un jardin de 22 m² idéal pour les beaux jours, donnant sur la rue, ainsi que d’une place de parking privative. Proche de toutes commodités (transports, commerces, écoles), cet appartement conviendra aussi bien à des primo-accédants qu’à des investisseurs. Contactez-moi dès aujourd’hui pour organiser une visite ! La presente annonce immobiliere vise 2 lots situés dans une copropriété de 2 lots au total et ne faisant l'objet d'aucune procédure en cours citée à l'article L. 721-1 du code de la construction et de l'habitation. Montant moyen mensuel de charges déclaré par le vendeur : 58.33€ par mois (soit 700 € annuel). Honoraires d'agence à la charge du vendeur. Information d'affichage énergétique sur ce bien : classe ENERGIE D indice 245 et classe CLIMAT B indice 7. Les informations sur les risques auxquels ce bien est exposé, y compris l'obligation légale de débroussaillement, sont disponibles sur le site Géorisques : http://www.georisques.gouv.fr. La présente annonce immobilière a été rédigée sous la responsabilité éditoriale de M Ike Georges A Crine mandataire indépendant en immobilier (sans détention de fonds), agent commercial de la SAS I@D France immatriculé au RSAC de AURILLAC CEDEX sous le numéro 921613683, titulaire de la carte de démarchage immobilier pour le compte de la société I@D France SAS.
À proximité
Recherche des commodités à proximité...
Détails de l'annonce
Localisation
Ville
Les Pavillons-sous-Bois
Pays
FR
Diagnostics / Énergie
Diagnostic DPE
245
Diagnostic GES
7
Surfaces / Pièces / Composition
Nombre d’étages
2
Chauffage et diagnostics
Diagnostic de performance énergétique (DPE)
a
b
c
d
e
f
g
Indice d'émission de gaz à effet de serre (GES)
a
b
c
d
e
f
g
