Type
Bien immobilierTarif
226 000 €Chambres
0Salles de bain
0Vente Appartement 3 pièces
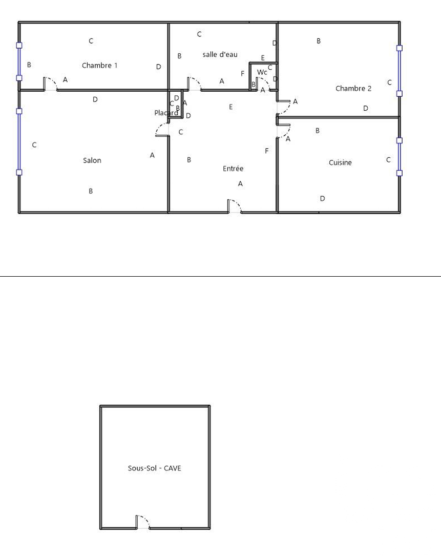
Iad France - Henri Carducci vous propose : À côté du Paddock, 3 pièces de 52 m² LUMINEUX et TRAVERSANT au sein d'une copropriété située avenue du Docteur Vaillant. L'agencement offre un plan fonctionnel sans perte d'espace : une entrée qui dessert une cuisine, un séjour de 15 m² donnant sur le jardin de la copropriété, deux chambres (9,50 et 11 m²), une salle d'eau rénovée récemment, des toilettes séparées. Appartement exposé sud-ouest qui offre une BELLE LUMINOSITÉ dans un environnement CALME. RAVALEMENT avec isolation par l'extérieur VOTÉ ET PAYÉ, le DPE PASSERA DE LA LETTRE F à C. Double vitrage. Local à vélos. Une cave bétonnée de 4 m² complète ce bien. À 600 mètres de la station de métro Ligne 5 – Bobigny, Pantin, Raymond Queneau et du Parc de Romainville. Disponible 7 / 7 La presente annonce immobiliere vise 2 lots situés dans une copropriété de 59 lots au total et ne faisant l'objet d'aucune procédure en cours citée à l'article L. 721-1 du code de la construction et de l'habitation. Montant moyen mensuel de charges déclaré par le vendeur : 166.67€ par mois (soit 2000 € annuel). Honoraires d'agence à la charge du vendeur. Information d'affichage énergétique sur ce bien : classe ENERGIE F indice 390 et classe CLIMAT E indice 67. Les informations sur les risques auxquels ce bien est exposé, y compris l'obligation légale de débroussaillement, sont disponibles sur le site Géorisques : http://www.georisques.gouv.fr. La présente annonce immobilière a été rédigée sous la responsabilité éditoriale de M Henri Carducci mandataire indépendant en immobilier (sans détention de fonds), agent commercial de la SAS I@D France immatriculé au RSAC de Paris sous le numéro 842569527, titulaire de la carte de démarchage immobilier pour le compte de la société I@D France SAS.
À proximité
Recherche des commodités à proximité...
Détails de l'annonce
Localisation
Ville
Romainville
Pays
FR
Diagnostics / Énergie
Diagnostic DPE
390
Diagnostic GES
67
Surfaces / Pièces / Composition
Nombre d’étages
5
Chauffage et diagnostics
Diagnostic de performance énergétique (DPE)
a
b
c
d
e
f
g
Indice d'émission de gaz à effet de serre (GES)
a
b
c
d
e
f
g
