Type
Bien immobilierTarif
165 000 €Chambres
3Salles de bain
0Vente Maison de village 6 pièces
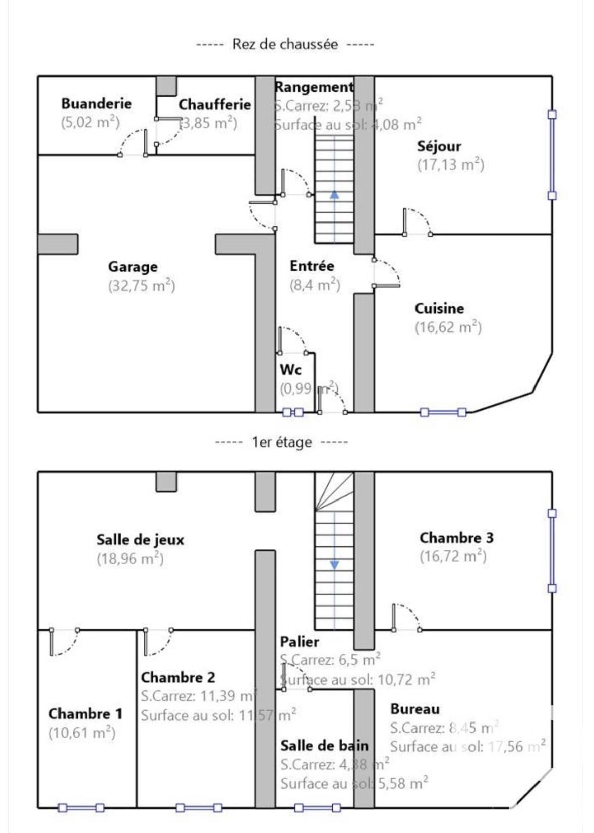
Iad France - Emmanuelle Maceda vous propose : Maison de village très bien entretenue et rénovée. Avec au rez-de-chaussée : entrée spacieuse avec rangements, cuisine (projection d'une implantation récente en 3 ème photo), WC indépendant. À l'étage : 3 chambres voir 4 avec petite chambre en enfilade plus un grand bureau / salle de jeux, salle d’eau récente avec toilettes. Pas de jardin, grand garage de 40 m² avec porte motorisée, atelier, buanderie et chaufferie. Toiture en bon état, menuiseries en doubles vitrages. DPE en E mais améliorable en remplaçant le chauffage fioul par une chaudière à granulés) École maternelle et primaire dans le village, supérette, médecin à proximité, collège de Custines à 4 km, A31 à 8 min – Gare à 10 min Plus d’infos et visite sur demande. Honoraires d'agence à la charge du vendeur. Information d'affichage énergétique sur ce bien : classe ENERGIE E indice 207 et classe CLIMAT E indice 52. Les informations sur les risques auxquels ce bien est exposé, y compris l'obligation légale de débroussaillement, sont disponibles sur le site Géorisques : http://www.georisques.gouv.fr. La présente annonce immobilière a été rédigée sous la responsabilité éditoriale de Mme Emmanuelle Maceda mandataire indépendant en immobilier (sans détention de fonds), agent commercial de la SAS I@D France immatriculé au RSAC de NANCY sous le numéro 824478960, titulaire de la carte de démarchage immobilier pour le compte de la société I@D France SAS.
À proximité
Recherche des commodités à proximité...
Détails de l'annonce
Localisation
Ville
Faulx
Pays
FR
Diagnostics / Énergie
Diagnostic DPE
207
Diagnostic GES
52
Chauffage et diagnostics
Diagnostic de performance énergétique (DPE)
a
b
c
d
e
f
g
Indice d'émission de gaz à effet de serre (GES)
a
b
c
d
e
f
g
