Type
Bien immobilierTarif
345 500 €Chambres
0Salles de bain
0Vente Appartement 4 pièces
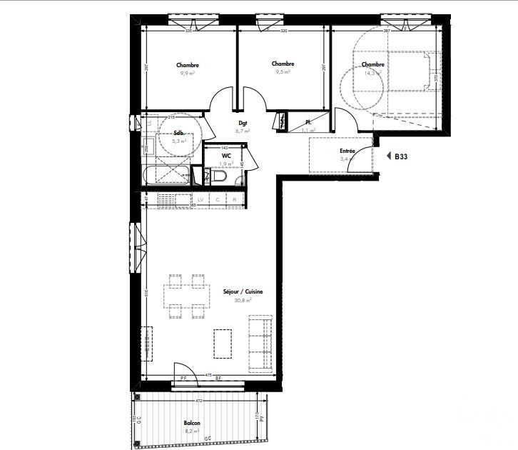
Iad France - Habib Rahim (06 68 82 22 90) vous propose : LES LODGES DU PARC - APPARTEMENT T4 AVEC BALCON Offrez-vous un cadre de vie exceptionnel dans l’éco-quartier Cantebonne à Villerupt ! Découvrez ce superbe T4 de 82,98 m² environ, situé au 3ème étage du Bâtiment B avec balcon spacieux de 8,16 m² environ. Des volumes généreux et optimisés : Séjour / Cuisine de 30,84 m² environ : Un espace de vie lumineux, idéal pour recevoir et profiter en famille. 3 chambres confortables : Chambre principale de 14,31 m² environ, votre véritable suite privée. Deux chambres de 9,94 m² environ et 9,49 m² environ, parfaites pour enfants, bureau ou invités. Salle de bain moderne de 5,27 m² environ. Entrée accueillante avec placard intégré (1,07 m² environ) pour une organisation optimale. Dégagement de 6,72 m² environ pour faciliter la circulation. WC séparé de 1,92 m² environ pour plus de praticité. Le + qui fait toute la différence : Un balcon privatif de 8,16 m² environ, idéal pour profiter des belles journées et créer un espace extérieur chaleureux. Une résidence d’exception : Située dans un éco-quartier moderne et verdoyant à seulement 10 minutes du Luxembourg. Performances énergétiques optimisées pour un habitat durable et écoresponsable. Proximité immédiate des écoles, commerces et infrastructures pour un quotidien pratique et agréable. ? Pourquoi choisir Les Lodges du Parc ? Un investissement de qualité, un environnement paisible et un appartement clé en main aux prestations modernes : Grand séjour lumineux 3 belles chambres Balcon spacieux Architecture contemporaine et durable Ne laissez pas passer cette opportunité unique ! Contactez-nous dès aujourd’hui pour plus d’informations ou pour organiser une visite. Les Lodges du Parc, votre futur chez-vous à deux pas du Luxembourg ! Honoraires d’agence à la charge du vendeur. Bien non soumis au DPE. Les informations sur les risques auxquels ce bien est exposé sont disponibles sur le site Géorisques : www.georisques.gouv.fr. La présente annonce immobilière a été rédigée sous la responsabilité éditoriale de M. Habib Rahim EI (ID 39926), mandataire indépendant en immobilier (sans détention de fonds), agent commercial de la SAS I@D France immatriculé au RSAC de VAL DE BRIEY sous le numéro 445328511, titulaire de la carte de démarchage immobilier pour le compte de la société I@D France SAS. Retrouvez tous nos biens sur notre site internet. www.iadfrance.fr.
À proximité
Recherche des commodités à proximité...
Détails de l'annonce
Localisation
Ville
Villerupt
Pays
FR
Surfaces / Pièces / Composition
Nombre d’étages
Chauffage et diagnostics
Diagnostic de performance énergétique (DPE)
a
b
c
d
e
f
g
Indice d'émission de gaz à effet de serre (GES)
a
b
c
d
e
f
g
