Type
Bien immobilierTarif
215 000 €Chambres
3Salles de bain
0Vente Maison de ville 4 pièces
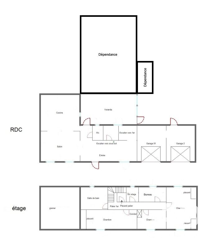
Iad France - Frank Lloyd vous propose : Maison à Beauvais – Quartier recherché de Marissel Située dans le quartier recherché de Marissel, cette maison bénéficie d’un environnement familial et pratique : commerces, écoles maternelles et élémentaires, transports en commun et accès rapide au centre-ville et aux axes routiers. Volumineuse et fonctionnelle, cette maison propose 121 m² habitables sur 2 niveaux, un terrain de 504 m² avec jardin et terrasse exposée sud‑ouest, une dépendance de 50 m², 2 garages attenant à la maison, et un sous-sol de 58 m². Au rez-de-chaussée : Entrée spacieuse, salon-séjour lumineux avec poêle à bois, cuisine ouverte aménagée et équipée, WC indépendant. À l’étage : 3 chambres, bureau / dressing, ( 4,60 m²) salle d’eau à moderniser et WC indépendant. À l’extérieur, la terrasse et le jardin offrent un espace de vie agréable, tandis que la dépendance et les garages permettent de multiplier les possibilités (atelier, extension, …). Quelques travaux de mise au goût du jour et d’amélioration énergétique permettront de personnaliser la maison selon vos envies. Le prix proposé reflète cet état actuel, offrant ainsi une excellente opportunité pour un projet sur mesure, tout en conservant un rapport volume / prix rare pour ce quartier. Honoraires d'agence à la charge du vendeur. Information d'affichage énergétique sur ce bien : classe ENERGIE E indice 312 et classe CLIMAT E indice 63. Les informations sur les risques auxquels ce bien est exposé, y compris l'obligation légale de débroussaillement, sont disponibles sur le site Géorisques : http://www.georisques.gouv.fr. La présente annonce immobilière a été rédigée sous la responsabilité éditoriale de M Frank Lloyd mandataire indépendant en immobilier (sans détention de fonds), agent commercial de la SAS I@D France immatriculé au RSAC de beauvais sous le numéro 890965627, titulaire de la carte de démarchage immobilier pour le compte de la société I@D France SAS.
Ce mois
Cette annonce est récente
À proximité
Recherche des commodités à proximité...
Détails de l'annonce
Localisation
Ville
Beauvais
Pays
FR
Diagnostics / Énergie
Diagnostic DPE
312
Diagnostic GES
63
Surfaces / Pièces / Composition
Nombre d’étages
3
Chauffage et diagnostics
Diagnostic de performance énergétique (DPE)
a
b
c
d
e
f
g
Indice d'émission de gaz à effet de serre (GES)
a
b
c
d
e
f
g
