Type
Bien immobilierTarif
307 000 €Chambres
2Salles de bain
0Vente Appartement 3 pièces
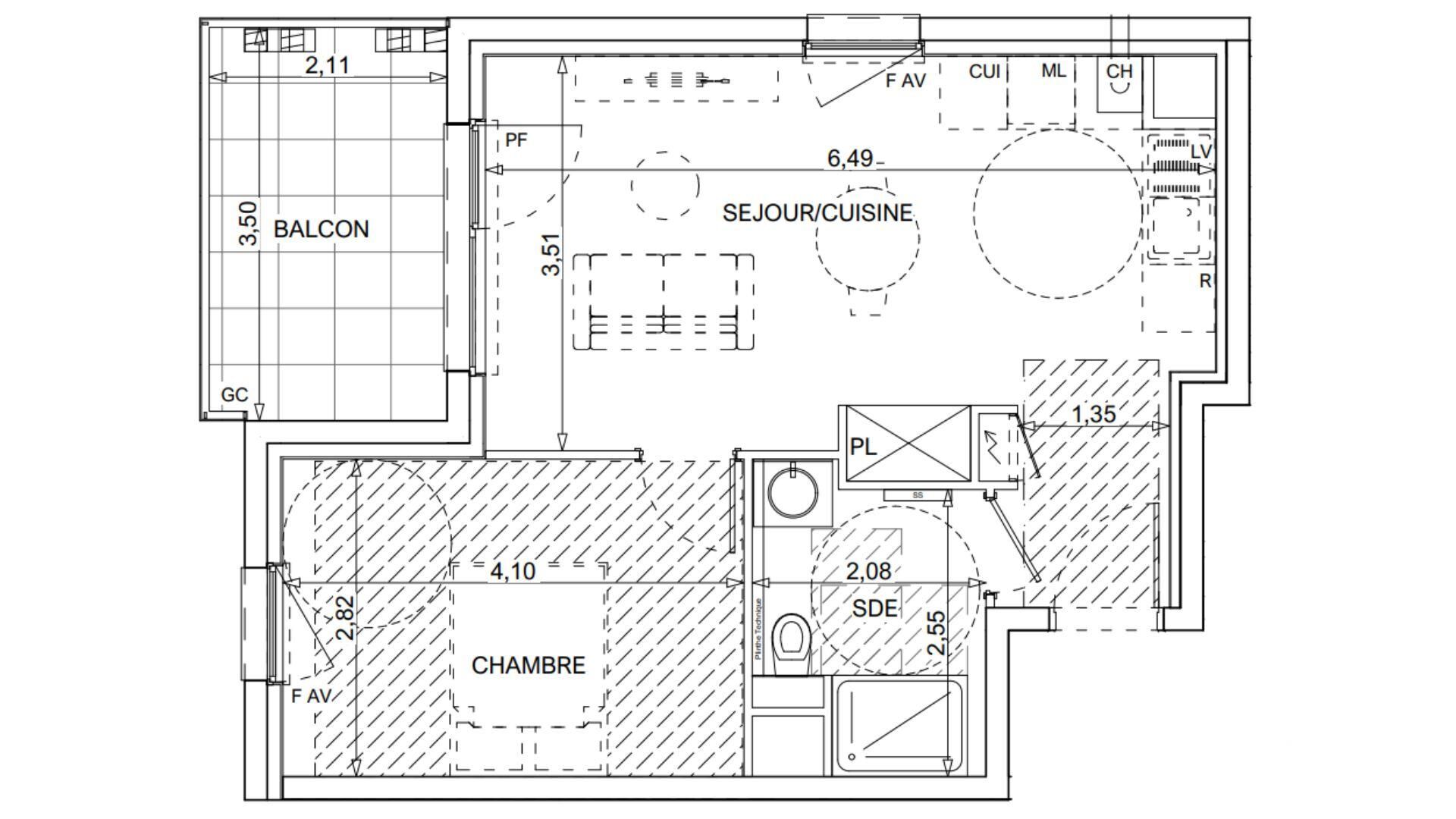
Iad France - Valerie Porcheron vous propose : Découvrez ce magnifique appartement T3 d'environ 57 m², situé au 1er étage avec ascenseur dans la résidence sécurisée ICONIC, au cOEur du Centre Port. Vous serez accueilli par une entrée avec placards, menant à une de vie spacieuse et lumineuse, agrémenté d'une belle cuisine américaine entièrement équipée. Un dégagement mène à deux chambres confortables dont l'une avec placard, une magnifique salle d'eau, un WC séparé et un cellier / buanderie. L'un des atouts majeurs de cet appartement est sa belle terrasse d'environ 22 m², orientée sud / ouest, idéale pour profiter des couchers de soleil. Un garage en sous-sol complète ce bien. Idéalement situé à proximité de tous les commerces, restaurants et boutiques, cet appartement vous garantit un cadre de vie paisible tout en étant à deux pas de toutes les commodités. Un lieu d'exception, parfait pour y vivre toute l'année ou pour des vacances au bord de la mer. Coup de cOEur assuré ! À visiter sans tarder ! La presente annonce immobiliere vise 2 lots situés dans une copropriété de 342 lots au total et ne faisant l'objet d'aucune procédure en cours citée à l'article L. 721-1 du code de la construction et de l'habitation. Montant moyen mensuel de charges déclaré par le vendeur : 250€ par mois (soit 3000 € annuel). Honoraires d'agence à la charge du vendeur. Information d'affichage énergétique sur ce bien : classe ENERGIE B indice 87 et classe CLIMAT A indice 2. Les informations sur les risques auxquels ce bien est exposé, y compris l'obligation légale de débroussaillement, sont disponibles sur le site Géorisques : http://www.georisques.gouv.fr. La présente annonce immobilière a été rédigée sous la responsabilité éditoriale de Mme Valerie Porcheron mandataire indépendant en immobilier (sans détention de fonds), agent commercial de la SAS I@D France immatriculé au RSAC de beziers sous le numéro 850548041, titulaire de la carte de démarchage immobilier pour le compte de la société I@D France SAS.
À proximité
Recherche des commodités à proximité...
Détails de l'annonce
Localisation
Ville
Le Cap d'Agde
Pays
FR
Diagnostics / Énergie
Diagnostic DPE
87
Diagnostic GES
2
Surfaces / Pièces / Composition
Nombre d’étages
8
Chauffage et diagnostics
Diagnostic de performance énergétique (DPE)
a
b
c
d
e
f
g
Indice d'émission de gaz à effet de serre (GES)
a
b
c
d
e
f
g
