Type
Bien immobilierTarif
335 000 €Chambres
2Salles de bain
0Vente Appartement 3 pièces
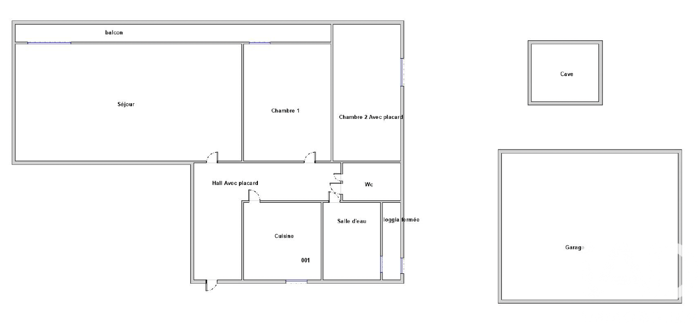
Iad France - Christophe Cuypers vous propose : Vivre la lumière, le calme et la hauteur… en plein cOEur de Saint-Raphaël. Situé dans une résidence sécurisée recherchée, à seulement 5 minutes à pied de l’Intermarché et de toutes les commodités du centre-ville, cet appartement offre un cadre de vie aussi pratique qu’agréable. Au 6ème et DERNIER étage avec ascenseur de la résidence fermée par portail électrique, ce bien traversant bénéficie d’une exposition plein sud, apportant une luminosité exceptionnelle tout au long de la journée, ainsi qu’une vue dégagée qui renforce la sensation d’espace et de sérénité. Entièrement rénové et climatisé, l’appartement se compose d’un salon-séjour ouvrant sur une terrasse couverte de 12 m², véritable pièce de vie supplémentaire pour profiter pleinement du soleil et de l’extérieur. La cuisine, moderne et entièrement équipée, a été pensée pour allier convivialité et fonctionnalité. L’espace nuit propose deux chambres, un toilette séparé, une salle d’eau et une buanderie attenante, particulièrement pratique pour le quotidien et l’installation de la machine à laver. L’appartement dispose également d’une CAVE et d’un GARAGE FERMÉ de 21 m², des atouts rares et très recherchés en centre-ville, offrant confort, rangement et tranquillité d’esprit. Un bien complet, rare par son dernier étage, son exposition, sa rénovation et ses annexes, idéal en résidence principale, pied-à-terre ou investissement de qualité à Saint-Raphaël. La presente annonce immobiliere vise 3 lots situés dans une copropriété de 85 lots au total et ne faisant l'objet d'aucune procédure en cours citée à l'article L. 721-1 du code de la construction et de l'habitation. Montant moyen mensuel de charges déclaré par le vendeur : 150€ par mois (soit 1800 € annuel). Honoraires d'agence à la charge du vendeur. Information d'affichage énergétique sur ce bien : classe ENERGIE D indice 244 et classe CLIMAT D indice 44. Les informations sur les risques auxquels ce bien est exposé, y compris l'obligation légale de débroussaillement, sont disponibles sur le site Géorisques : http://www.georisques.gouv.fr. La présente annonce immobilière a été rédigée sous la responsabilité éditoriale de M Christophe Cuypers mandataire indépendant en immobilier (sans détention de fonds), agent commercial de la SAS I@D France immatriculé au RSAC de fréjus sous le numéro 530797687, titulaire de la carte de démarchage immobilier pour le compte de la société I@D France SAS.
Ce mois
Cette annonce est récente
À proximité
Recherche des commodités à proximité...
Détails de l'annonce
Localisation
Ville
Saint-Raphaël
Pays
FR
Diagnostics / Énergie
Diagnostic DPE
244
Diagnostic GES
44
Surfaces / Pièces / Composition
Nombre d’étages
6
Étage
6
Chauffage et diagnostics
Diagnostic de performance énergétique (DPE)
a
b
c
d
e
f
g
Indice d'émission de gaz à effet de serre (GES)
a
b
c
d
e
f
g
