Type
Bien immobilierTarif
220 000 €Chambres
4Salles de bain
0Vente Maison traditionnelle 5 pièces
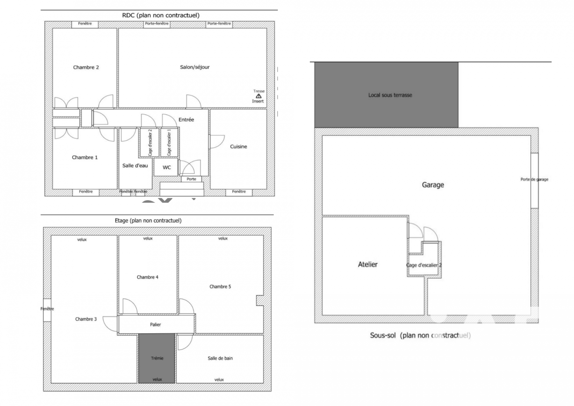
Iad France - Julien Feuillet vous propose : Située dans un lotissement calme, cette maison néo-bretonne de 111 m² est idéale pour une vie de famille. Au rez-de-chaussée, elle se compose d’une cuisine, d’une belle pièce de vie lumineuse avec accès à la terrasse exposée sud-ouest, d’une chambre, d’un bureau, d’une salle d’eau et de WC séparés. À l’étage, trois chambres supplémentaires ainsi qu’une salle de bains avec WC complètent l’espace nuit. Le sous-sol complet offre un vaste espace de rangement et conviendra parfaitement aux bricoleurs. La maison bénéficie du confort moderne avec des fenêtres récentes en double vitrage et un chauffage central au gaz de ville. Contactez-moi pour organiser une visite. Honoraires d'agence à la charge du vendeur. Information d'affichage énergétique sur ce bien : classe ENERGIE C indice 176 et classe CLIMAT C indice 24. Les informations sur les risques auxquels ce bien est exposé, y compris l'obligation légale de débroussaillement, sont disponibles sur le site Géorisques : http://www.georisques.gouv.fr. La présente annonce immobilière a été rédigée sous la responsabilité éditoriale de M Julien Feuillet mandataire indépendant en immobilier (sans détention de fonds), agent commercial de la SAS I@D France immatriculé au RSAC de SAINT-MALO sous le numéro 881929913, titulaire de la carte de démarchage immobilier pour le compte de la société I@D France SAS.
À proximité
Recherche des commodités à proximité...
Détails de l'annonce
Localisation
Ville
Plancoët
Pays
FR
Diagnostics / Énergie
Diagnostic DPE
176
Diagnostic GES
24
Surfaces / Pièces / Composition
Nombre d’étages
3
Chauffage et diagnostics
Diagnostic de performance énergétique (DPE)
a
b
c
d
e
f
g
Indice d'émission de gaz à effet de serre (GES)
a
b
c
d
e
f
g
